Yopa says ..
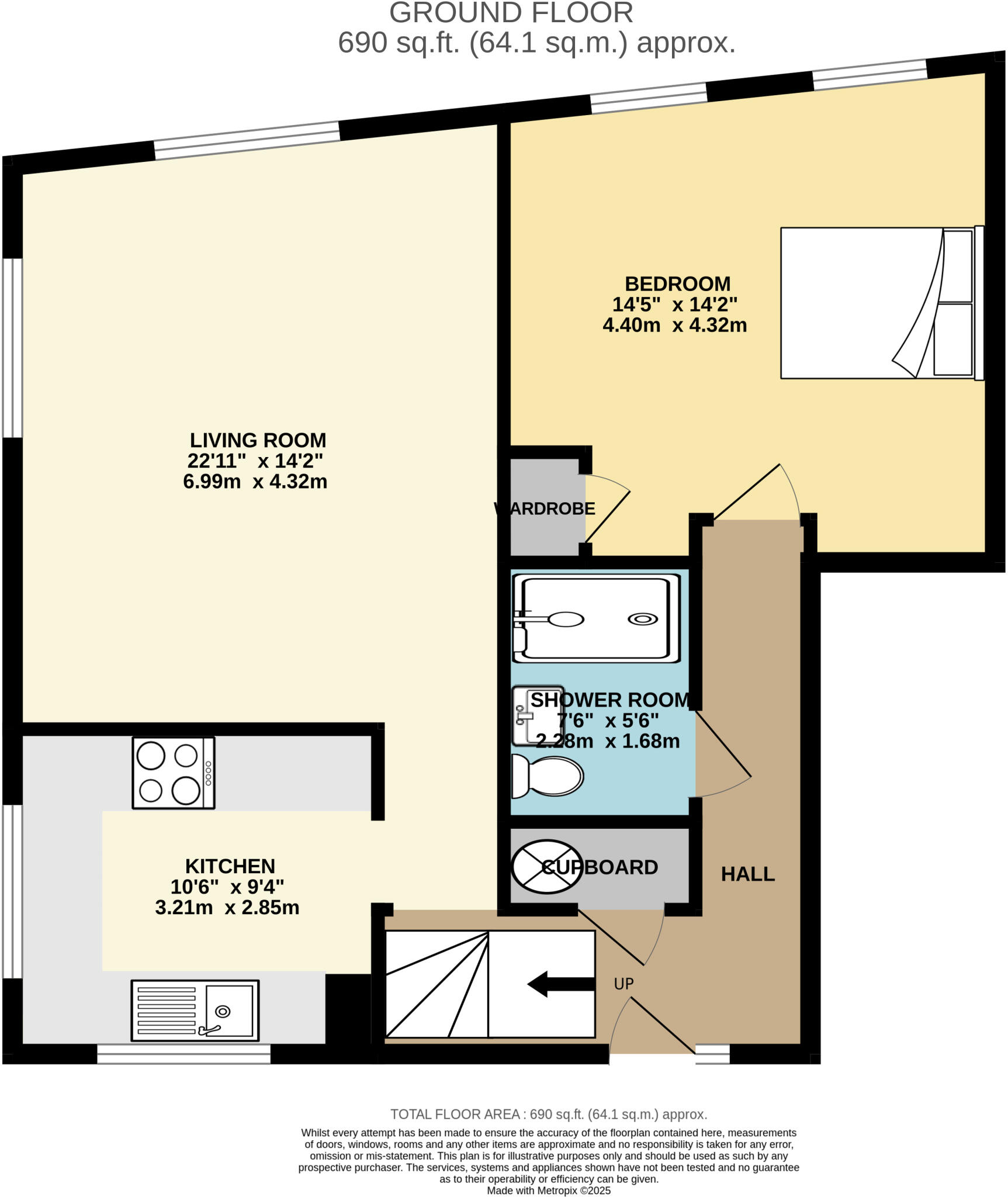
An end of terrace bungalow situated close to Wantage town centre with loads of character and comprising of an entrance hallway, large kitchen/living room with beamed ceiling, master bedroom, shower room and with outside courtyard garden and parking. The property benefits from secondary double glazin
Property Oracle says ..
This is a one-bedroom maisonette located in Wantage Charlton. The property benefits from its proximity to local schools and amenities. While the kitchen and bathroom have been updated, some areas of the property require further renovation, including the stairs. The property includes a small outdoor area. The asking price of £47,500 is significantly below the average price per square foot for the area, suggesting it offers good value, especially considering the need for some improvements.
Therefore, we give this property 6 / 10. *Disclaimer: This is our option and does constitute a recommendation or financial advice. Do your own research. *
- Price
- 9
- Condition
- 6
- Location
- 7
- Land
- 4
- Bedrooms
- 1
- Bathrooms
- 1
- Sqft (est)
- 665.96
The heatmap indicates the level of crime in the area. The color of the heatmap indicates the crime severity and recency.
Metrics Year-on-Year
- Average area value
- 382,443.00 £Decreased by 0.54 %
- Est sale value
- 316,331.00 £Increased by 51.27 %
- Average area rental value
- 1,581.00 £/moIncreased by 11.97 %
- Est letting value
- 665.96 £/moUnchanged by 0.00 %
- Est rental Yield
- 4.96 %Increased by 12.47 %
- Crime Rate
- 67.00 %Unchanged by 0.00 %
Agent Activity
Yopa created the listing.
Nearby Schools
| Name | Type | Ofsted | Distance |
|---|---|---|---|
| Wantage Church Of England Primary School | Academy Converter | Good | 0.29 KM |
| King Alfred'S | Academy Converter | Requires improvement | 0.43 KM |
| Fitzwaryn School | Academy Special Converter | Outstanding | 1.16 KM |
| Stockham Primary School | Community School | Outstanding | 1.34 KM |
| Huckleberry Therapeutic School | Other Independent Special School | 1.41 KM |
Images
Nearby Streets
| Name | Average Price | Average Sqft | Distance |
|---|---|---|---|
| Portway Mews | £ 0 | 0 | 0.00 KM |
| St Katherine's | £ 400,000 | 0 | 0.00 KM |
| The Ivies | £ 292,475 | 0 | 0.00 KM |
| Partridge Close | £ 0 | 0 | 0.00 KM |
| Campbell's Court | £ 0 | 0 | 0.00 KM |
Nearby Listings
| Address | Price | Type | Score | Distance |
|---|---|---|---|---|
| St. Mary's, Wantage, OX12 | £ 74,000 | BUY | 7 / 10 | 0.00 KM |
| St. Mary's, Wantage, OX12 | £ 47,500 | BUY | 6 / 10 | 0.00 KM |
| St. Mary's, Wantage | £ 195,000 | BUY | 7 / 10 | 0.00 KM |
| Newbury Street, Wantage | £ 175,000 | BUY | Unknown | 0.07 KM |
| St. Mary's, WANTAGE | £ 210,000 | BUY | Unknown | 0.09 KM |
Nearby Properties
| Address | Price | Distance |
|---|---|---|
| 17 St Marys | £ 78,750 | 0.01 KM |
| 14 St Marys | £ 78,000 | 0.01 KM |
| 20 St Marys | £ 187,500 | 0.04 KM |
| 18 St Marys | £ 60,000 | 0.04 KM |
| 30 St Marys | £ 46,250 | 0.04 KM |