Woodfield Road, Radlett, Hertfordshire, WD7
By Lumley Estates
£ 325,000
Reviews
3 out of 5 stars
Lumley Estates says ..
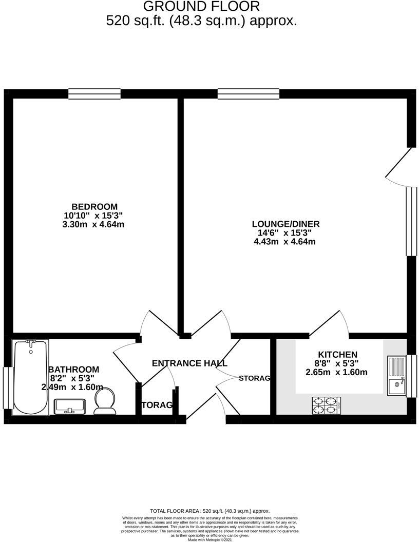
A beautifully presented one bedroom apartment located in a quiet location with just a short walk from Radlett Village Centre & the Mainline Railway Station. The property briefly comprises; welcoming entrance hall opening onto the 15' lounge / dining room with doors out to the comm...
Property Oracle says ..
This property is a one bedroom apartment located in Radlett, Hertfordshire. Radlett is a popular commuter town with good transport links to London. The property itself appears to be in good condition, with a modern bathroom and kitchen. There is a small garden area. The list price is significantly lower than the average price for the area, which is likely due to the smaller size of the property. However, considering the condition and location, the price appears reasonable.
Therefore, we give this property 7 / 10. *Disclaimer: This is our option and does constitute a recommendation or financial advice. Do your own research. *
- Price
- 7
- Condition
- 8
- Location
- 9
- Land
- 4
- Bedrooms
- 1
- Bathrooms
- 1
- Sqft (est)
- 480.00
- Lot (est)
- 520.00
The heatmap indicates the level of crime in the area. The color of the heatmap indicates the crime severity and recency.
Metrics Year-on-Year
- Average area value
- 1,789,286.00 £Increased by 29.50 %
- Est sale value
- 345,600.00 £Decreased by 13.25 %
- Average area rental value
- 3,753.00 £/moDecreased by 2.14 %
- Est letting value
- 480.00 £/moDecreased by 50.00 %
- Est rental Yield
- 2.52 %Decreased by 24.32 %
- Crime Rate
- 8.00 %Unchanged by 0.00 %
Agent Activity
Lumley Estates created the listing.
Nearby Schools
| Name | Type | Ofsted | Distance |
|---|---|---|---|
| H6 Radlett Link Family Centre | Children's Centre | 0.28 KM | |
| St John'S Church Of England Infant And Nursery School | Academy Converter | 0.80 KM | |
| Newberries Primary School | Community School | Good | 1.34 KM |
| Fair Field Junior School | Academy Converter | Good | 1.58 KM |
| Radlett Preparatory School Limited | Other Independent School | Good | 2.05 KM |
Images
Nearby Streets
| Name | Average Price | Average Sqft | Distance |
|---|---|---|---|
| Thelusson Court | £ 0 | 0 | 0.00 KM |
| Maytrees | £ 2,250,000 | 0 | 0.00 KM |
| Mornington Road | £ 0 | 0 | 0.00 KM |
| The Mews | £ 1,195,000 | 0 | 0.00 KM |
| Watling Street | £ 4,335,000 | 0 | 0.00 KM |
Nearby Transport
| Name | NLC | TLC | Distance |
|---|---|---|---|
| Radlett | 1546 | RDT | 0.41 KM |
| How Wood (Hertfordshire) | 1563 | HWW | 4.79 KM |
| Bricket Wood | 1560 | BWO | 5.03 KM |
| Park Street | 1561 | PKT | 5.29 KM |
| Elstree And Borehamwood | 1542 | ELS | 5.49 KM |
Nearby Listings
| Address | Price | Type | Score | Distance |
|---|---|---|---|---|
| Woodfield Road, Radlett, Hertfordshire, WD7 | £ 325,000 | BUY | 7 / 10 | 0.00 KM |
| Letchmore Road, Radlett | £ 1,595,000 | BUY | 6 / 10 | 0.10 KM |
| Slade Court, Radlett, WD7 | £ 385,000 | BUY | 6 / 10 | 0.21 KM |
| Watling Street, Radlett, Hertfordshire, WD7 | £ 395,000 | BUY | 7 / 10 | 0.21 KM |
| Watling Street, Radlett, Hertfordshire, WD7 | £ 250,000 | BUY | 6 / 10 | 0.21 KM |
Nearby Properties
| Address | Price | Distance |
|---|---|---|
| 13 The Crosspath | £ 872,500 | 0.08 KM |
| 5 The Crosspath | £ 870,000 | 0.08 KM |
| 27 The Crosspath | £ 800,000 | 0.08 KM |
| 29 The Crosspath | £ 650,000 | 0.08 KM |
| 15 The Crosspath | £ 1,330,000 | 0.08 KM |