Shipton Close, Milking Bank
By Taylors Estate Agents
£ 429,950
Reviews
3 out of 5 stars
Taylors Estate Agents says ..
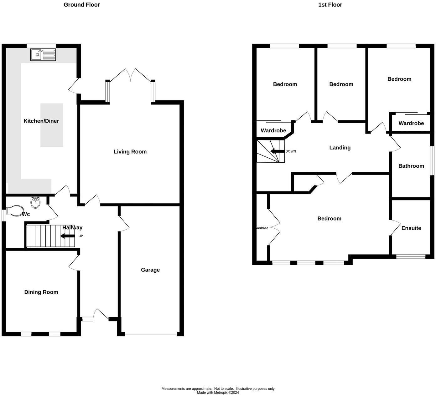
IMPRESSIVE DETACHED family home, on the enormously popular Milking Bank offering ease of access to sought after local schools, shops, parks & other amenities. This larger than average modern residence has been STYLISHLY presented throughout and boasts exceptionally spacious accommodation.
Property Oracle says ..
This four-bedroom, two-bathroom detached house in Milking Bank, Dudley, presents as a well-maintained and stylish family home. The property benefits from an updated interior, featuring a modern kitchen, contemporary bathrooms, and generously sized rooms. The provided photographs showcase a high standard of finish and décor throughout. The inclusion of a good-sized rear garden with decking adds significant appeal. Milking Bank is described as a sought-after location, and the proximity to schools rated ‘Good’ by Ofsted further enhances its value. While comparable properties are listed, a precise price-per-square-foot analysis is not possible due to missing square footage data for both this property and comparable listings. However, considering the property’s condition, features, and desirable location, the list price appears competitive within the context of the provided market information, potentially leaning slightly towards the higher end of the range depending on the actual size.
Therefore, we give this property 7 / 10. *Disclaimer: This is our option and does constitute a recommendation or financial advice. Do your own research. *
- Price
- 7
- Condition
- 9
- Location
- 8
- Land
- 7
- Bedrooms
- 4
- Bathrooms
- 2
The heatmap indicates the level of crime in the area. The color of the heatmap indicates the crime severity and recency.
Metrics Year-on-Year
- Average area value
- 231,400.00 £Decreased by 4.94 %
- Average area rental value
- 1,050.00 £/moIncreased by 7.03 %
- Est rental Yield
- 5.45 %Increased by 12.60 %
- Crime Rate
- 1.00 %Unchanged by 0.00 %
Agent Activity
Taylors Estate Agents created the listing.
Nearby Schools
| Name | Type | Ofsted | Distance |
|---|---|---|---|
| Milking Bank Primary School | Community School | Good | 0.48 KM |
| Gornal Children'S Centre | Children's Centre | 0.88 KM | |
| Roberts Primary School | Community School | Good | 0.93 KM |
| Wrens Nest Children'S Centre | Children's Centre | 1.01 KM | |
| Bishop Milner Catholic College | Academy Converter | Good | 1.09 KM |
Images
Nearby Streets
| Name | Average Price | Average Sqft | Distance |
|---|---|---|---|
| Winchcombe Close | £ 0 | 0 | 0.00 KM |
| Jew's Lane | £ 0 | 0 | 0.00 KM |
| Cricket Meadow | £ 156,650 | 0 | 0.00 KM |
| Rock Street | £ 107,499 | 0 | 0.00 KM |
| Russell's Hall Road | £ 0 | 0 | 0.00 KM |
Nearby Transport
| Name | NLC | TLC | Distance |
|---|---|---|---|
| Coseley | 1143 | CSY | 4.04 KM |
| Tipton | 1159 | TIP | 5.25 KM |
| Cradley Heath | 4639 | CRA | 6.05 KM |
| Lye (West Midlands) | 4640 | LYE | 6.67 KM |
| Dudley Port | 1212 | DDP | 6.92 KM |
Nearby Listings
| Address | Price | Type | Score | Distance |
|---|---|---|---|---|
| Shipton Close, Milking Bank, Dudley | £ 409,950 | BUY | 7 / 10 | 0.00 KM |
| Shipton Close, Milking Bank | £ 429,950 | BUY | 7 / 10 | 0.00 KM |
| Shipton Close, Milking Bank | £ 389,950 | BUY | Unknown | 0.10 KM |
| Dinham Gardens, Milking Bank, Dudley | £ 450,000 | BUY | 6 / 10 | 0.15 KM |
| Charlecote Drive, MILKING BANK, DY3 2EQ | £ 375,000 | BUY | 7 / 10 | 0.15 KM |
Nearby Properties
| Address | Price | Distance |
|---|---|---|
| 17 Shipton Close | £ 359,950 | 0.01 KM |
| 6 Shipton Close | £ 175,000 | 0.01 KM |
| 15 Shipton Close | £ 264,950 | 0.01 KM |
| 10 Shipton Close | £ 262,000 | 0.01 KM |
| 37 Shipton Close | £ 230,000 | 0.01 KM |