Lymington Avenue, Noel Park, N22
CO

Lymington Avenue, Noel Park, N22

By Coultons

£ 625,000

Reviews

3 out of 5 stars

Coultons says ..

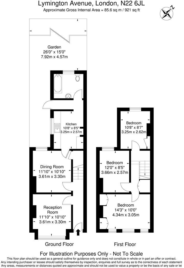
Situated in the ever popular and highly sort after conservation area of Noel Park in Wood Green is this three double bedroom mid terraced period house. Added benefits include two reception rooms, fitted kitchen, ground floor bathroom, sash windows, gas central heating and a private rear garden.

Property Oracle says ..

This is a three-bedroom terraced house located on Lymington Avenue in Noel Park, Haringey. The property offers 921.39 sqft of living space and includes a garden. While the location is convenient for schools and transportation, the property requires some renovation. The asking price of £625,000 appears a little high when compared to similar properties in the area, especially considering the condition of the house.

Therefore, we give this property 6 / 10. *Disclaimer: This is our option and does constitute a recommendation or financial advice. Do your own research. *

Price
6
Condition
5
Location
7
Land
7
Bedrooms
3
Bathrooms
1
Sqft (est)
921.39

The heatmap indicates the level of crime in the area. The color of the heatmap indicates the crime severity and recency.

Metrics Year-on-Year

Average area value
514,286.00 £
Decreased by 0.49 %
from 516,812.00 £
Est sale value
640,366.05 £
Increased by 4.83 %
from 610,881.57 £
Average area rental value
1,644.00 £/mo
Decreased by 18.33 %
from 2,013.00 £/mo
Est letting value
1,842.78 £/mo
Unchanged by 0.00 %
from 1,842.78 £/mo
Est rental Yield
3.84 %
Decreased by 17.77 %
from 4.67 %
Crime Rate
5.00 %
Unchanged by 0.00 %
from 5.00 %

Agent Activity

  • Coultons created the listing.

Nearby Schools

NameTypeOfstedDistance
Noel Park Children'S CentreChildren's Centre0.11 KM
Lordship Lane Primary SchoolCommunity SchoolGood0.23 KM
Belmont Junior SchoolCommunity SchoolOutstanding0.67 KM
Belmont Infant SchoolCommunity SchoolGood0.67 KM
Noel Park Primary SchoolAcademy Sponsor LedOutstanding0.75 KM

Images

DSC05754.jpg DSC05644.jpg DSC05648.jpg DSC05609.jpg DSC05664.jpg DSC05634.jpg DSC05653.jpg DSC05668.jpg DSC05673.jpg DSC05733.jpg DSC05679.jpg DSC05708.jpg DSC05720.jpg DSC05728.jpg DSC05618.jpg DSC05603.jpg DSC05713.jpg DSC05694.jpg DSC05684.jpg DSC05703.jpg DSC05739.jpg

Nearby Streets

NameAverage PriceAverage SqftDistance
Mosaic Circle £ 000.00 KM
Liberty Mews £ 000.00 KM
Erin Mews £ 650,00000.00 KM
Elm Road £ 525,00000.00 KM
Coldham Court £ 300,00000.00 KM

Nearby Transport

NameNLCTLCDistance
Hornsey6015HRN2.07 KM
Harringay Green Lanes7401HRY2.26 KM
Harringay6012HGY2.41 KM
Alexandra Palace6025AAP2.58 KM
Palmers Green6021PAL2.76 KM

Nearby Listings

AddressPriceTypeScoreDistance
Lymington Avenue, Noel Park, N22 £ 625,000BUY6 / 100.00 KM
Gladstone Avenue, Wood Green, London, N22 £ 625,000BUY8 / 100.08 KM
Hewitt Avenue, London, Haringey, N22 £ 575,000BUY7 / 100.08 KM
Gladstone Avenue, London, N22 £ 650,000BUY6 / 100.11 KM
Russell Avenue, London, N22 £ 795,000BUY7 / 100.12 KM

Nearby Properties

AddressPriceDistance
280 Lymington Avenue £ 434,9500.07 KM
284 Lymington Avenue £ 475,0000.07 KM
238 Lymington Avenue £ 567,0000.07 KM
240 Lymington Avenue £ 220,0000.07 KM
290 Lymington Avenue £ 523,0000.07 KM