Queen Victoria Street, Blackburn, BB2
By Stones Young Estate and Letting Agents
£ 65,000
Reviews
2 out of 5 stars
Stones Young Estate and Letting Agents says ..
Charming 2-bed Terraced House in Mill Hill, ideal for first-time buyers or investors. Spacious rooms, convenient location, and a delightful rear yard for relaxing or entertaining. Council Tax Band A. Great potential for customisation and comfort - don't miss out!
Property Oracle says ..
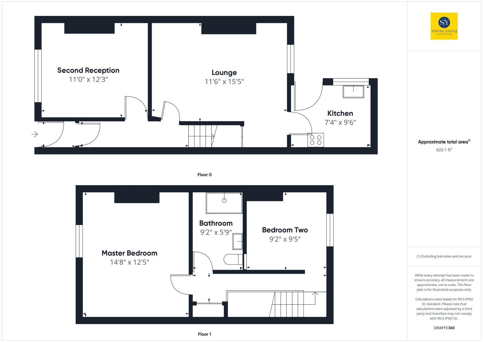
This terraced property is located on Queen Victoria Street in Blackburn, Lancashire. The area benefits from relatively close proximity to several primary schools, with St Peter’s Roman Catholic Primary School being the closest at 0.25km. Transport links are also reasonable, with Mill Hill train station only 0.42km away. The property itself is a two-bedroom, one-bathroom terraced house with a small yard. Based on the images provided, the property appears to be in need of some modernisation and updating. The kitchen and bathroom are particularly dated. The list price of £65,000 is significantly below the average house price for the area (£130,536), although this may reflect the condition of the property. Comparable properties on the same street have sold for between £40,000 and £60,000, suggesting the list price is within the range of similar properties, although further analysis of the specifics of those sales would be beneficial. The small yard provides some outside space, although it is relatively small.
Therefore, we give this property 5 / 10. *Disclaimer: This is our option and does constitute a recommendation or financial advice. Do your own research. *
- Price
- 7
- Condition
- 4
- Location
- 6
- Land
- 3
- Bedrooms
- 2
- Bathrooms
- 1
- Sqft (est)
- 703.00
- Lot (est)
- 820.10
The heatmap indicates the level of crime in the area. The color of the heatmap indicates the crime severity and recency.
Metrics Year-on-Year
- Average area value
- 114,433.00 £Decreased by 45.49 %
- Est sale value
- 91,390.00 £Decreased by 45.61 %
- Average area rental value
- 800.00 £/moIncreased by 5.96 %
- Est letting value
- 0.00 £/mo
- Est rental Yield
- 8.39 %Increased by 94.21 %
- Crime Rate
- 9.00 %Unchanged by 0.00 %
Agent Activity
Stones Young Estate and Letting Agents marked this listing as sold.
Stones Young Estate and Letting Agents created the listing.
Nearby Schools
| Name | Type | Ofsted | Distance |
|---|---|---|---|
| St Peter'S Roman Catholic Primary School, Blackburn | Voluntary Aided School | Good | 0.25 KM |
| Griffin Park Primary School | Community School | Requires improvement | 0.43 KM |
| St Aidan'S Primary School - A Church Of England Academy | Academy Sponsor Led | Good | 0.54 KM |
| Meadowhead Infant School | Community School | Good | 0.77 KM |
| Witton Park Academy | Academy Converter | Good | 0.83 KM |
Images
Nearby Streets
| Name | Average Price | Average Sqft | Distance |
|---|---|---|---|
| Primrose Close | £ 0 | 0 | 0.00 KM |
| Bower Fold | £ 0 | 0 | 0.00 KM |
| Gurney Street | £ 0 | 0 | 0.00 KM |
| Cave Street | £ 0 | 0 | 0.00 KM |
| Stirling Street | £ 0 | 0 | 0.00 KM |
Nearby Transport
| Name | NLC | TLC | Distance |
|---|---|---|---|
| Mill Hill (Lancs) | 2750 | MLH | 0.42 KM |
| Cherry Tree | 2573 | CYT | 1.56 KM |
| Blackburn | 2737 | BBN | 3.04 KM |
| Pleasington | 2752 | PLS | 4.39 KM |
| Ramsgreave And Wilpshire | 2734 | RGW | 5.57 KM |
Nearby Listings
| Address | Price | Type | Score | Distance |
|---|---|---|---|---|
| Queen Victoria Street, Blackburn, BB2 | £ 65,000 | BUY | 5 / 10 | 0.00 KM |
| Queen Victoria Street, Blackburn, BB2 | £ 60,000 | BUY | 4 / 10 | 0.01 KM |
| Queen Victoria Street, Blackburn, BB2 | £ 85,000 | BUY | 5 / 10 | 0.05 KM |
| Lindley Street, Blackburn | £ 89,950 | BUY | Unknown | 0.08 KM |
| Queen Victoria Street, Blackburn, BB2 | £ 74,950 | BUY | 5 / 10 | 0.09 KM |
Nearby Properties
| Address | Price | Distance |
|---|---|---|
| 73 Queen Victoria Street | £ 59,500 | 0.05 KM |
| 77 Queen Victoria Street | £ 18,400 | 0.05 KM |
| 58 Queen Victoria Street | £ 46,000 | 0.05 KM |
| 53 Queen Victoria Street | £ 40,000 | 0.05 KM |
| 65 Queen Victoria Street | £ 59,950 | 0.05 KM |