Sargeants says ..
Welcome to this three bedroom terraced house, ideally situated in the heart of Northfields, offering a perfect blend of modern living and convenience. Previously extended and thoughtfully renovated, the home features a striking, fully integrated open plan kitchen and dining area, ideal for bot...
Property Oracle says ..
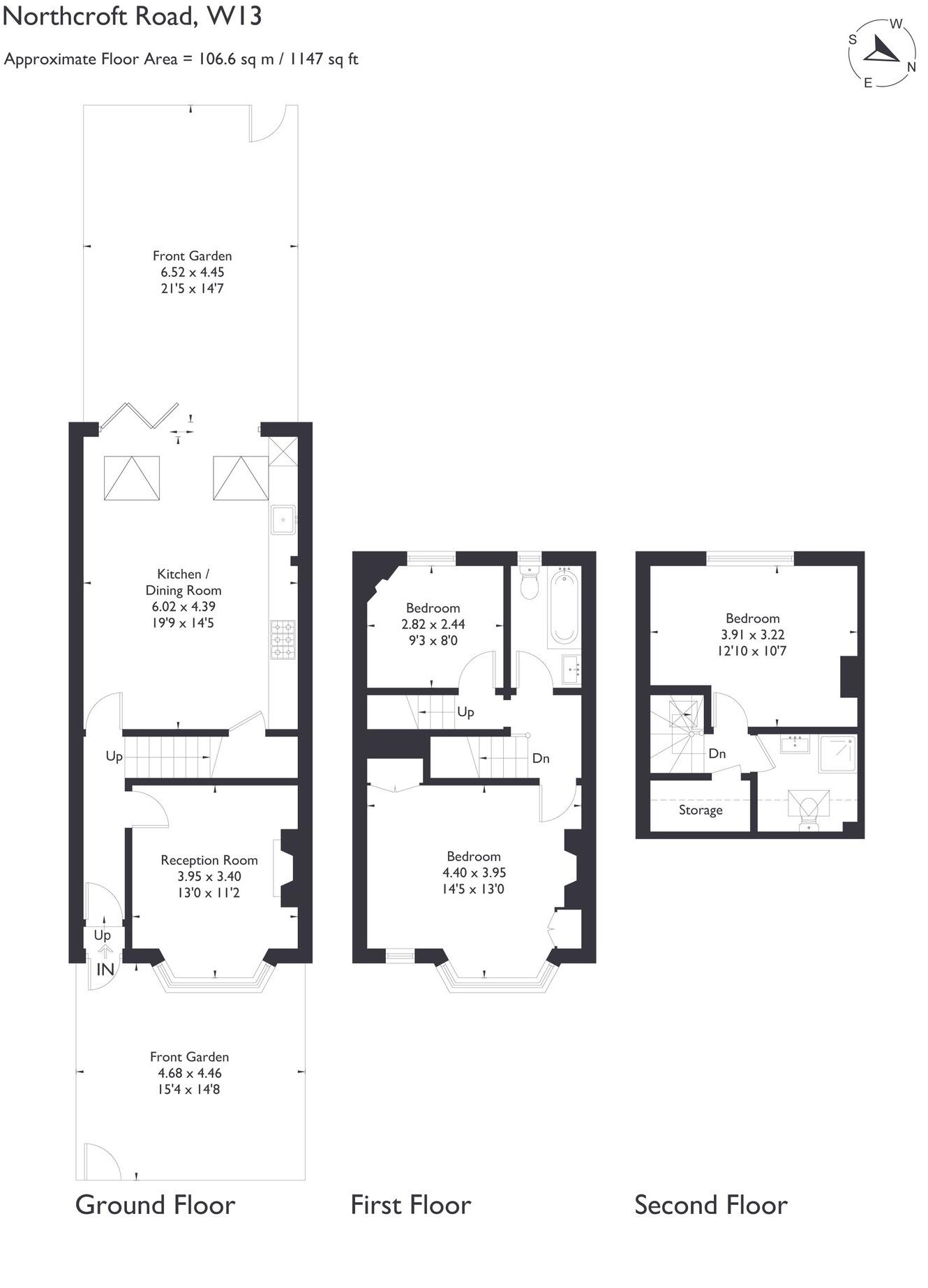
This property is a 3 bedroom, 2 bathroom terraced house located on Northcroft Road in Northfields, Ealing, London. It has a list price of £950,000 and is 826.56 sqft with a plot size of 1,147.43 sqft.
The property appears to be in excellent condition. The images show a recently renovated interior with a modern kitchen extension, updated bathrooms, and well-maintained rooms. There is evidence of tasteful and modern updates throughout.
The location in Northfields, Ealing is desirable. It’s within a reasonable distance of several highly-rated schools such as Fielding Primary School (Outstanding Ofsted rating) and Gunnersbury Catholic School (Outstanding Ofsted rating). The proximity to multiple TfL Rail and National Rail stations provides good transport links. The area itself seems to have a good mix of amenities and is a sought-after residential area in London.
The property benefits from a garden, adding to its appeal and value. The size of the garden is modest but provides outdoor space.
Considering the average price per sqft in the area is £432, and this property is listed at £950,000, the price seems reasonable given the property’s condition, location, and the inclusion of a garden. The average house price in the area is considerably lower at £561,961, but this property is larger and has been significantly improved. Nearby comparable properties support this pricing, although a lack of sqft data for these properties makes a precise comparison difficult. The list price reflects the premium associated with a renovated property in a desirable London location.
Based on the provided information, the property is well-presented and located in a sought-after area. The price appears justified given the condition and location.
Therefore, we give this property 8 / 10. *Disclaimer: This is our option and does constitute a recommendation or financial advice. Do your own research. *
- Price
- 8
- Condition
- 9
- Location
- 9
- Land
- 7
- Bedrooms
- 3
- Bathrooms
- 2
- Sqft (est)
- 826.56
- Lot (est)
- 1,147.43
The heatmap indicates the level of crime in the area. The color of the heatmap indicates the crime severity and recency.
Metrics Year-on-Year
- Average area value
- 448,325.00 £Decreased by 13.51 %
- Est sale value
- 426,504.96 £Increased by 0.98 %
- Average area rental value
- 1,480.00 £/moDecreased by 11.32 %
- Est letting value
- 826.56 £/moUnchanged by 0.00 %
- Est rental Yield
- 3.96 %Increased by 2.59 %
- Crime Rate
- 5.00 %Unchanged by 0.00 %
Agent Activity
Sargeants created the listing.
Nearby Schools
| Name | Type | Ofsted | Distance |
|---|---|---|---|
| Fielding Primary School | Community School | Outstanding | 0.16 KM |
| Log Cabin Children'S Centre | Children's Centre | 0.73 KM | |
| Ealing Fields High School | Free Schools | Good | 0.95 KM |
| Seva Special School | Other Independent Special School | 1.06 KM | |
| Gunnersbury Catholic School | Voluntary Aided School | Outstanding | 1.08 KM |
Images
Nearby Streets
| Name | Average Price | Average Sqft | Distance |
|---|---|---|---|
| Mayo Court | £ 739,950 | 0 | 0.00 KM |
| Burns Road | £ 0 | 0 | 0.00 KM |
| Dean Villas | £ 0 | 0 | 0.00 KM |
| Boston Manor Road | £ 0 | 0 | 0.00 KM |
| Bramley Road | £ 0 | 0 | 0.00 KM |
Nearby Transport
| Name | NLC | TLC | Distance |
|---|---|---|---|
| West Ealing | 3188 | WEA | 1.34 KM |
| Brentford | 5552 | BFD | 1.88 KM |
| Drayton Green | 3099 | DRG | 2.08 KM |
| Syon Lane | 5609 | SYL | 2.27 KM |
| Hanwell | 3191 | HAN | 2.43 KM |
Nearby Listings
| Address | Price | Type | Score | Distance |
|---|---|---|---|---|
| Northcroft Road, London, W13 | £ 950,000 | BUY | 8 / 10 | 0.00 KM |
| Northcroft Road, Ealing, London, W13 9SX | £ 899,950 | BUY | 6 / 10 | 0.04 KM |
| Wyndham Road, West Ealing | £ 1,250,000 | BUY | 8 / 10 | 0.10 KM |
| Wyndham Road, London, W13 | £ 1,000,000 | BUY | 7 / 10 | 0.10 KM |
| Northcroft Road, W13 | £ 925,000 | BUY | 6 / 10 | 0.15 KM |
Nearby Properties
| Address | Price | Distance |
|---|---|---|
| 85 Northcroft Road | £ 815,000 | 0.02 KM |
| 71 Northcroft Road | £ 248,000 | 0.02 KM |
| 79 Northcroft Road | £ 690,000 | 0.02 KM |
| 67 Northcroft Road | £ 438,000 | 0.02 KM |
| 73 Northcroft Road | £ 217,500 | 0.02 KM |