Nonhold Road, Pinley Green, Claverdon, Warwick
By Vaughan Reynolds
£ 950,000
Reviews
4 out of 5 stars
Vaughan Reynolds says ..
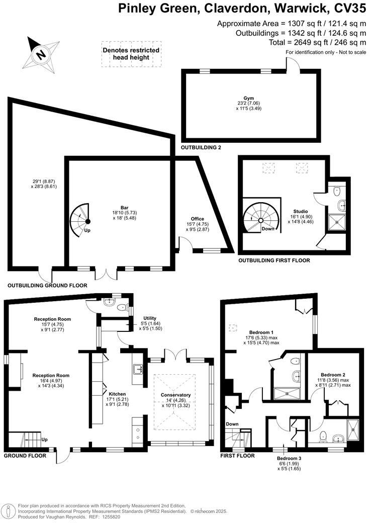
A charming cottage discreetly situated in a small hamlet midway between the larger villages of Claverdon and Shrewley. GIA 2649sqft * Entrance Porch * Living Room * Bespoke Kitchen * Orangery/Dining Room * Utility Room * Principal Bedroom with En-Suite * Be...
Property Oracle says ..
This property is a 3 bedroom, 3 bathroom detached house located in Pinley Green, Claverdon, Warwick. The property benefits from a large garden and what appears to be a detached annex or outbuilding. The house itself is presented in excellent condition and has been recently modernised whilst retaining some of its original character. The location is desirable being in a quiet village location yet within reasonable distance of Kenilworth and Warwick. Transport links are also good with several train stations within a reasonable distance. The asking price is high relative to the average price in the area, however, given the size, condition, and additional outbuildings, it may represent fair value.
Therefore, we give this property 8 / 10. *Disclaimer: This is our option and does constitute a recommendation or financial advice. Do your own research. *
- Price
- 7
- Condition
- 10
- Location
- 9
- Land
- 8
- Bedrooms
- 3
- Bathrooms
- 3
- Sqft (est)
- 2,251.25
- Lot (est)
- 2,649.00
The heatmap indicates the level of crime in the area. The color of the heatmap indicates the crime severity and recency.
Metrics Year-on-Year
- Average area value
- 607,500.00 £Increased by 4.15 %
- Est sale value
- 2,035,130.00 £Increased by 164.33 %
- Average area rental value
- 1,328.00 £/moDecreased by 13.15 %
- Est letting value
- 2,251.25 £/mo
- Est rental Yield
- 2.62 %Decreased by 16.83 %
- Crime Rate
- 33.00 %Unchanged by 0.00 %
Agent Activity
Vaughan Reynolds created the listing.
Nearby Schools
| Name | Type | Ofsted | Distance |
|---|---|---|---|
| Claverdon Primary School | Community School | Good | 3.01 KM |
| Wolverton Primary School | Foundation School | Good | 3.44 KM |
| Northleigh House School | Other Independent School | 3.90 KM | |
| The Ferncumbe Cofe Primary School | Academy Converter | 4.17 KM | |
| Lapworth Cofe Primary School | Voluntary Controlled School | Good | 5.84 KM |
Images
Nearby Streets
| Name | Average Price | Average Sqft | Distance |
|---|---|---|---|
| The Cumsey | £ 1,350,000 | 0 | 0.00 KM |
| Manor Lane | £ 0 | 0 | 0.00 KM |
| Holly Cottages | £ 850,000 | 0 | 0.00 KM |
| Back Lane | £ 0 | 0 | 0.00 KM |
Nearby Transport
| Name | NLC | TLC | Distance |
|---|---|---|---|
| Claverdon | 4593 | CLV | 2.01 KM |
| Hatton | 4594 | HTN | 2.49 KM |
| Lapworth | 4595 | LPW | 6.21 KM |
| Bearley | 2420 | BER | 8.28 KM |
| Warwick Parkway | 8530 | WRP | 9.28 KM |
Nearby Listings
| Address | Price | Type | Score | Distance |
|---|---|---|---|---|
| Nonhold Road, Pinley Green, Claverdon, Warwick | £ 950,000 | BUY | 8 / 10 | 0.00 KM |
| Pinley Green, Warwick, CV35 | £ 1,300,000 | BUY | 7 / 10 | 0.25 KM |
| Pinley Green, Claverdon | £ 1,250,000 | BUY | 7 / 10 | 0.34 KM |
| Shrewley Common, Shrewley, Warwick | £ 500,000 | BUY | 5 / 10 | 0.89 KM |
| Shrewley Common, Shrewley, Warwick | £ 500,000 | BUY | 6 / 10 | 0.89 KM |
Nearby Properties
| Address | Price | Distance |
|---|---|---|
| Hardrow House | £ 695,000 | 0.22 KM |
| Vyners | £ 925,000 | 0.35 KM |
| Hilltop | £ 455,000 | 0.35 KM |
| Lapwater | £ 335,000 | 0.35 KM |
| The Willows | £ 1,160,000 | 0.59 KM |