Gilson Bailey says ..
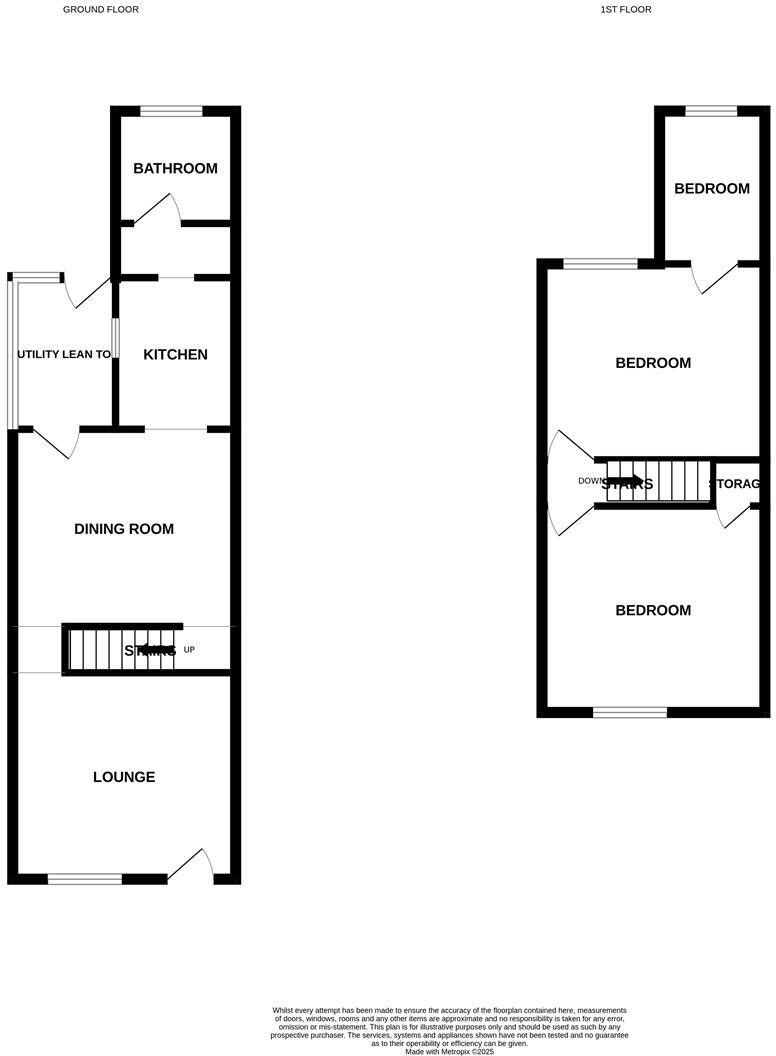
**GUIDE PRICE £230,000 - £240,000 LOVELY NR3 TERRACE JUST A SHORT WALK FROM THE CITY CENTRE** Gilson Bailey are delighted to offer this WELL PRESENTED, THREE BEDROOM, MID TERRACE HOUSE situated in the highly sought after NR3 area of Norwich. Accommodation comprising lounge, dining room, kitchen, ...
Property Oracle says ..
Therefore, we give this property 7 / 10. *Disclaimer: This is our option and does constitute a recommendation or financial advice. Do your own research. *
- Price
- 7
- Condition
- 8
- Location
- 8
- Land
- 7
- Bedrooms
- 3
- Bathrooms
- 1
- Sqft (est)
- 834.00
The heatmap indicates the level of crime in the area. The color of the heatmap indicates the crime severity and recency.
Metrics Year-on-Year
- Average area value
- 226,667.00 £Increased by 0.36 %
- Est sale value
- 259,374.00 £Increased by 16.48 %
- Average area rental value
- 1,053.00 £/moIncreased by 3.74 %
- Est letting value
- 834.00 £/moUnchanged by 0.00 %
- Est rental Yield
- 5.57 %Increased by 3.34 %
- Crime Rate
- 4.00 %Unchanged by 0.00 %
from 225,863.00 £
from 222,678.00 £
from 1,015.00 £/mo
from 834.00 £/mo
from 5.39 %
from 4.00 %
Agent Activity
Gilson Bailey marked this listing as sold.
Gilson Bailey created the listing.
Nearby Schools
| Name | Type | Ofsted | Distance |
|---|---|---|---|
| Magdalen Gates Primary School | Community School | Good | 0.31 KM |
| Angel Road Junior School | Academy Sponsor Led | 0.45 KM | |
| Angel Road Infant School | Academy Converter | 0.53 KM | |
| North City Children'S Centre | Children's Centre | 0.54 KM | |
| Jane Austen College | Free Schools | Good | 0.79 KM |
Images
Nearby Streets
| Name | Average Price | Average Sqft | Distance |
|---|---|---|---|
| Magpie Road | £ 225,000 | 0 | 0.00 KM |
| Old Whitings Court | £ 0 | 0 | 0.00 KM |
| Taylors Buildings | £ 0 | 0 | 0.00 KM |
| Saint Pauls Square | £ 0 | 0 | 0.00 KM |
| Sackville Place | £ 0 | 0 | 0.00 KM |
Nearby Transport
| Name | NLC | TLC | Distance |
|---|---|---|---|
| Norwich | 7309 | NRW | 1.87 KM |
Nearby Listings
| Address | Price | Type | Score | Distance |
|---|---|---|---|---|
| Stacy Road, Norwich | £ 230,000 | BUY | 7 / 10 | 0.00 KM |
| Stacy Road, Norwich | £ 240,000 | BUY | 6 / 10 | 0.01 KM |
| Stacy Road, Norwich, NR3 | £ 230,000 | BUY | 5 / 10 | 0.01 KM |
| Guernsey Road, Norwich | £ 165,000 | BUY | 5 / 10 | 0.03 KM |
| Guernsey Road, Norwich | £ 210,000 | BUY | Unknown | 0.04 KM |
Nearby Properties
| Address | Price | Distance |
|---|---|---|
| 15 Stacy Road | £ 250,000 | 0.02 KM |
| 48 Stacy Road | £ 128,750 | 0.02 KM |
| 29 Stacy Road | £ 125,000 | 0.02 KM |
| 13 Stacy Road | £ 120,000 | 0.02 KM |
| 12 Stacy Road | £ 132,000 | 0.02 KM |