Pilgrims Way, Bisley, Woking, Surrey, GU24
By Seymours Estate Agents
£ 525,000
Reviews
3 out of 5 stars
Seymours Estate Agents says ..
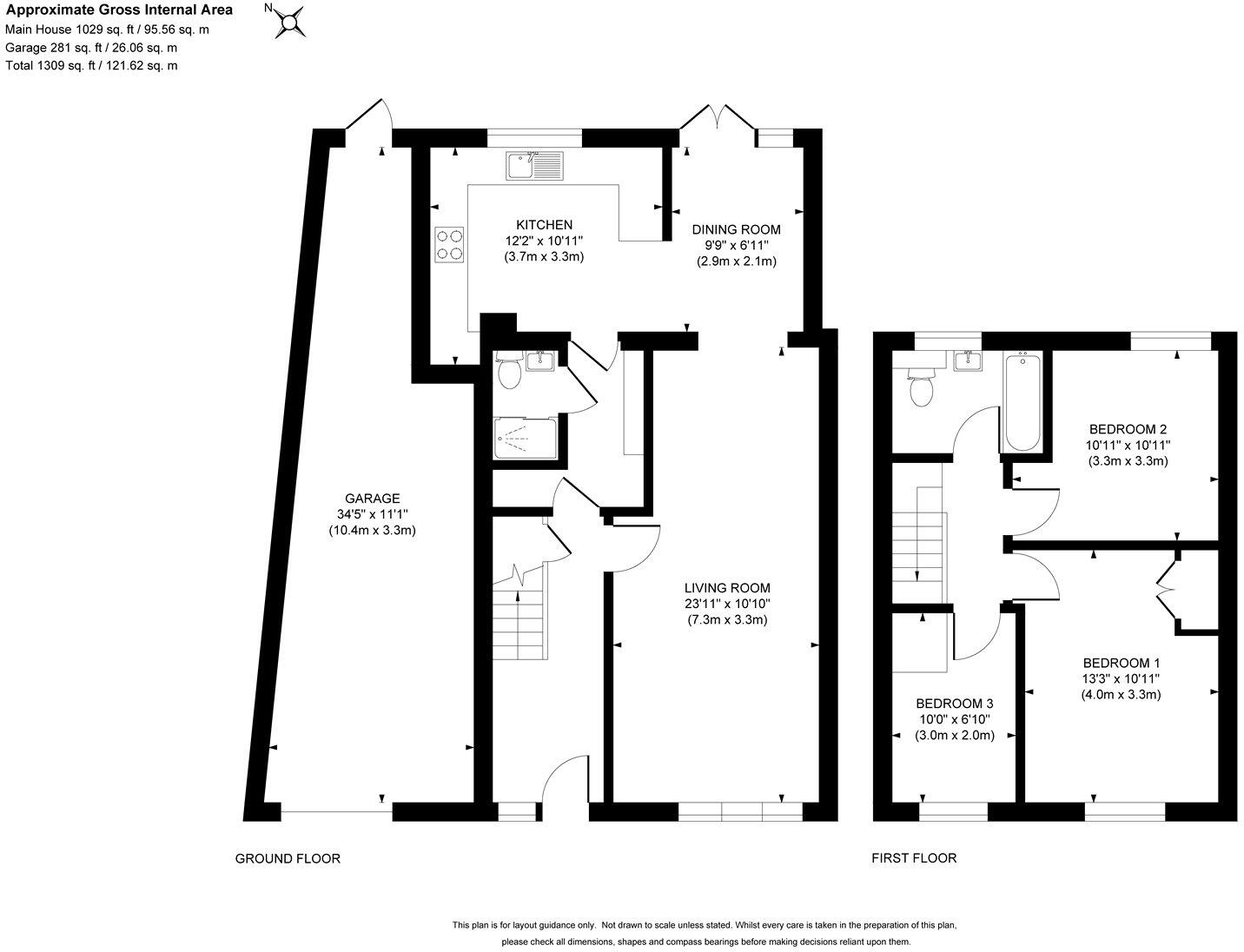
** NO ONWARD CHAIN ** An extremely well-presented semi-detached family home, recently refurbished and located in a very popular position a short walk from Bisley Primary School. The property has been extended and rearranged downstairs to create an appealing layout that includes a full w...
Property Oracle says ..
The property is located in Bisley, Surrey, a village with a good reputation for its schools and proximity to transport links. The property itself appears to be in good condition, having undergone recent renovations or refurbishment as evidenced by the modern kitchen and flooring. While the garden is present, it seems relatively small and may require some landscaping. The asking price of £525,000 seems reasonable considering the location and condition, but further analysis of comparable properties in the area and the property’s square footage would be needed to confirm this. The lack of plot size information in the provided data makes a definitive assessment of land value difficult.
Therefore, we give this property 7 / 10. *Disclaimer: This is our option and does constitute a recommendation or financial advice. Do your own research. *
- Price
- 7
- Condition
- 8
- Location
- 9
- Land
- 4
- Bedrooms
- 3
- Bathrooms
- 2
- Sqft (est)
- 1,309.11
The heatmap indicates the level of crime in the area. The color of the heatmap indicates the crime severity and recency.
Metrics Year-on-Year
- Average area value
- 644,188.00 £Increased by 3.54 %
- Est sale value
- 555,062.64 £Decreased by 26.64 %
- Average area rental value
- 2,466.00 £/moDecreased by 21.84 %
- Est letting value
- 1,309.11 £/moDecreased by 50.00 %
- Est rental Yield
- 4.59 %Decreased by 24.63 %
- Crime Rate
- 7.00 %Unchanged by 0.00 %
Agent Activity
Seymours Estate Agents created the listing.
Nearby Schools
| Name | Type | Ofsted | Distance |
|---|---|---|---|
| Bisley Cofe Primary School | Voluntary Aided School | Good | 0.25 KM |
| Knaphill School | Academy Converter | 1.44 KM | |
| The Knaphill Lower School | Academy Converter | 1.46 KM | |
| Holy Trinity Cofe Primary School | Academy Converter | 1.73 KM | |
| Brookwood Primary School | Academy Sponsor Led | Good | 2.28 KM |
Images
Nearby Streets
| Name | Average Price | Average Sqft | Distance |
|---|---|---|---|
| Iris Drive | £ 0 | 0 | 0.00 KM |
| Strawberry Fields | £ 925,000 | 0 | 0.00 KM |
| Stafford Lake | £ 0 | 0 | 0.00 KM |
| Trinity Road | £ 660,000 | 0 | 0.00 KM |
| Queens Place | £ 0 | 0 | 0.00 KM |
Nearby Transport
| Name | NLC | TLC | Distance |
|---|---|---|---|
| Brookwood | 5687 | BKO | 2.43 KM |
| Worplesdon | 5686 | WPL | 6.90 KM |
| Sunningdale | 5671 | SNG | 7.41 KM |
| Bagshot | 5681 | BAG | 7.52 KM |
| Longcross | 5674 | LNG | 7.90 KM |
Nearby Listings
| Address | Price | Type | Score | Distance |
|---|---|---|---|---|
| Pilgrims Way, Bisley, Woking, Surrey, GU24 | £ 525,000 | BUY | 7 / 10 | 0.00 KM |
| Germander Drive, Bisley, Woking, Surrey, GU24 | £ 330,000 | BUY | 6 / 10 | 0.13 KM |
| Pilgrims Way, Bisley, Woking, Surrey, GU24 | £ 575,000 | BUY | 7 / 10 | 0.14 KM |
| Germander Drive, Bisley, Woking, GU24 | £ 315,000 | BUY | 5 / 10 | 0.15 KM |
| Elm Grove, Bisley, Woking, Surrey, GU24 | £ 579,950 | BUY | 8 / 10 | 0.17 KM |
Nearby Properties
| Address | Price | Distance |
|---|---|---|
| 39 Pilgrims Way | £ 190,000 | 0.01 KM |
| 53 Pilgrims Way | £ 530,000 | 0.01 KM |
| 31 Pilgrims Way | £ 358,000 | 0.01 KM |
| 21 Pilgrims Way | £ 500,000 | 0.01 KM |
| 6 Pilgrims Way | £ 575,000 | 0.01 KM |