Sargeants says ..
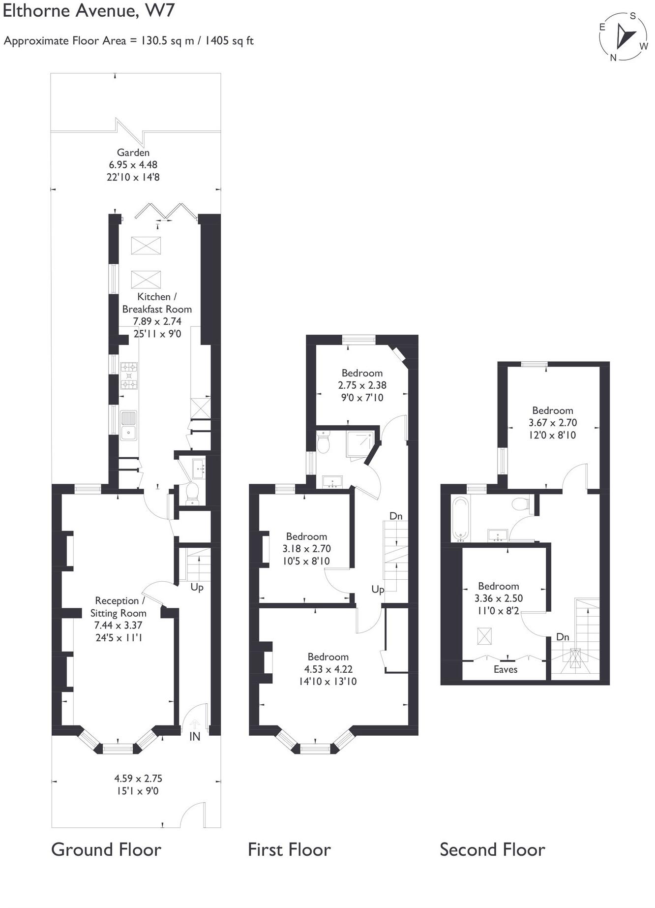
Welcome to this beautifully presented five-bedroom, two-bathroom family home, complete with a convenient downstairs WC. Situated on a sought-after residential road in Hanwell, this spacious property offers versatile living across three floors. The ground floor features a generous open-plan rec...
Property Oracle says ..
This property is a 5 bedroom, 3 bathroom terraced house located on Elthorne Avenue, Hanwell, W7. The property benefits from being close to well-regarded schools such as Oaklands Primary School (Good Ofsted rating) and Elthorne Park High School (Outstanding Ofsted rating), both within a short distance. Transport links are also convenient, with several train stations within a reasonable distance, including West Ealing (TfL Rail) and Drayton Green (Great Western Railway). The property itself appears to be well-maintained and modernised, with a contemporary kitchen and bathrooms. There is also a garden, adding to its appeal. The list price of £995,000 is higher than the average price for the area (£617,418), but considering the size, condition, and location, it may be justifiable. However, further investigation into comparable properties in the immediate vicinity would be beneficial to determine its true market value.
Therefore, we give this property 8 / 10. *Disclaimer: This is our option and does constitute a recommendation or financial advice. Do your own research. *
- Price
- 7
- Condition
- 9
- Location
- 9
- Land
- 7
- Bedrooms
- 5
- Bathrooms
- 3
- Sqft (est)
- 171.99
- Lot (est)
- 1,405.00
The heatmap indicates the level of crime in the area. The color of the heatmap indicates the crime severity and recency.
Metrics Year-on-Year
- Average area value
- 526,250.00 £Increased by 3.90 %
- Est sale value
- 137,420.01 £Increased by 15.30 %
- Average area rental value
- 1,876.00 £/moIncreased by 3.25 %
- Est letting value
- 343.98 £/moUnchanged by 0.00 %
- Est rental Yield
- 4.28 %Decreased by 0.47 %
- Crime Rate
- 3.00 %Unchanged by 0.00 %
Agent Activity
Sargeants created the listing.
Nearby Schools
| Name | Type | Ofsted | Distance |
|---|---|---|---|
| Oaklands Primary School | Community School | Good | 0.52 KM |
| Elthorne Park High School | Community School | Outstanding | 0.58 KM |
| Fielding Primary School | Community School | Outstanding | 0.75 KM |
| St John'S Primary School | Community School | Good | 0.91 KM |
| Jubilee Hall Children'S Centre | Children's Centre Linked Site | 0.91 KM |
Images
Nearby Streets
| Name | Average Price | Average Sqft | Distance |
|---|---|---|---|
| Burns Road | £ 0 | 0 | 0.00 KM |
| Edinburgh Road | £ 799,950 | 0 | 0.00 KM |
| Aria Mews | £ 0 | 0 | 0.00 KM |
| Rosedale Close | £ 0 | 0 | 0.00 KM |
| Filanco Court | £ 600,000 | 0 | 0.00 KM |
Nearby Transport
| Name | NLC | TLC | Distance |
|---|---|---|---|
| West Ealing | 3188 | WEA | 1.25 KM |
| Drayton Green | 3099 | DRG | 1.42 KM |
| Hanwell | 3191 | HAN | 1.56 KM |
| Castle Bar Park | 3098 | CBP | 2.14 KM |
| Syon Lane | 5609 | SYL | 2.52 KM |
Nearby Listings
| Address | Price | Type | Score | Distance |
|---|---|---|---|---|
| Elthorne Avenue, Hanwell, W7 | £ 995,000 | BUY | 8 / 10 | 0.00 KM |
| Seward Road, Northfields | £ 1,025,000 | BUY | Unknown | 0.05 KM |
| Seward Road, Hanwell | £ 399,950 | BUY | 5 / 10 | 0.07 KM |
| Seward Road, London | £ 450,000 | BUY | 5 / 10 | 0.07 KM |
| Elthorne Avenue, Hanwell | £ 499,950 | BUY | 6 / 10 | 0.10 KM |
Nearby Properties
| Address | Price | Distance |
|---|---|---|
| 73 Seward Road | £ 627,000 | 0.04 KM |
| 75 Seward Road | £ 470,000 | 0.04 KM |
| 49a Seward Road | £ 250,000 | 0.04 KM |
| 53 Seward Road | £ 485,000 | 0.04 KM |
| 65 Seward Road | £ 418,000 | 0.04 KM |