HE
Barfield Road, Dolton, EX19
By Helmores
£ 360,000
Helmores says ..
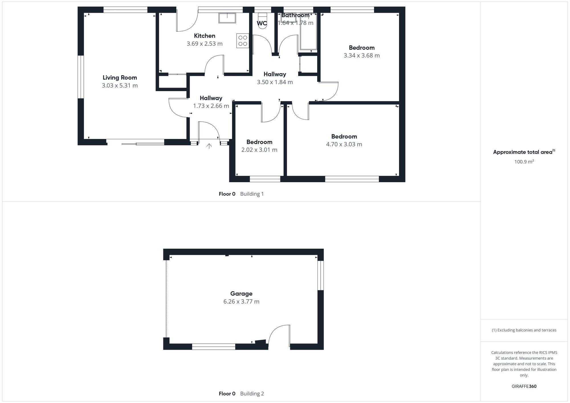
Detached bungalow on a quarter acre plot with great potential. Enjoy a large garden or choose to utilize the planning permission to build an annex at the bottom of the garden. This is a property of great interest for a range of buyers. Parking and garage and with no onward chain.
- Bedrooms
- 3
- Bathrooms
- 1
The heatmap indicates the level of crime in the area. The color of the heatmap indicates the crime severity and recency.
Metrics Year-on-Year
- Average area value
- 445,667.00 £Increased by 22.12 %
- Average area rental value
- 1,100.00 £/moIncreased by 37.50 %
- Est rental Yield
- 2.96 %Increased by 12.55 %
- Crime Rate
- 206.00 %Unchanged by 0.00 %
from 364,940.00 £
from 800.00 £/mo
from 2.63 %
from 206.00 %
Agent Activity
Helmores created the listing.
Nearby Schools
| Name | Type | Ofsted | Distance |
|---|---|---|---|
| Dolton Church Of England Primary School | Academy Converter | 0.81 KM | |
| Beaford Community Primary & Nursery School | Community School | Outstanding | 4.01 KM |
| The Clinton Church Of England Primary School | Academy Sponsor Led | 7.51 KM | |
| High Bickington Church Of England Primary Academy | Academy Converter | Good | 8.92 KM |
| Acorn School | Other Independent Special School | Good | 9.07 KM |
Images
Nearby Listings
| Address | Price | Type | Score | Distance |
|---|---|---|---|---|
| Barfield Road, Dolton, EX19 | £ 360,000 | BUY | Unknown | 0.00 KM |
| Dolton, Winkleigh | £ 400,000 | BUY | 7 / 10 | 0.01 KM |
| Rectory Road, Dolton | £ 280,000 | BUY | 6 / 10 | 0.04 KM |
| Rectory Road, Dolton, Winkleigh, Devon, EX19 | £ 360,000 | BUY | 8 / 10 | 0.07 KM |
| Barfield Close, Dolton, Devon | £ 290,000 | BUY | 6 / 10 | 0.17 KM |
Nearby Properties
| Address | Price | Distance |
|---|---|---|
| Westlea | £ 144,000 | 0.05 KM |
| Meadow View | £ 170,000 | 0.05 KM |
| Fairways | £ 220,000 | 0.05 KM |
| West Barlands | £ 375,000 | 0.05 KM |
| 2 Rectory Road | £ 207,500 | 0.05 KM |