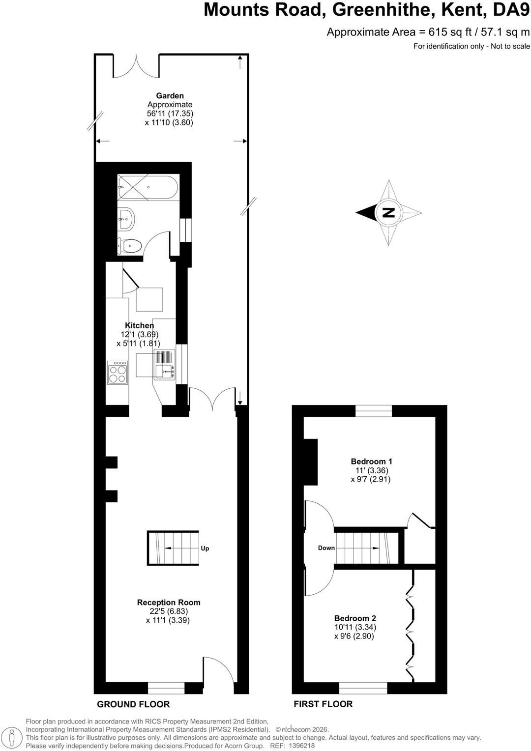
Mounts Road, Greenhithe, Kent
AC

Mounts Road, Greenhithe, Kent

By Acorn

£ 325,000

Reviews

3 out of 5 stars

Acorn says ..

A well-presented two bedroom house offered to the market at offers over £325,000, ideally suited to first-time buyers, downsizers or investors alike. Located on Mounts Road, this home provides comfortable and practical living space with a welcoming feel throughout. The property o...

Property Oracle says ..

This is a two-bedroom terraced house on Mounts Road, Greenhithe. The property benefits from a modern kitchen and bathroom, and a garden. The property is located close to local amenities and transport links, including Greenhithe For Bluewater station. The asking price of £325,000 appears competitive given the property’s condition and location. The property is well-suited for first-time buyers, small families, or investors.

Therefore, we give this property 6 / 10. *Disclaimer: This is our option and does constitute a recommendation or financial advice. Do your own research. *

Price
7
Condition
7
Location
6
Land
6
Bedrooms
2
Bathrooms
1
Sqft (est)
615.00

The heatmap indicates the level of crime in the area. The color of the heatmap indicates the crime severity and recency.

Metrics Year-on-Year

Average area value
395,000.00 £
Increased by 17.02 %
from 337,563.00 £
Est sale value
214,020.00 £
Decreased by 15.33 %
from 252,765.00 £
Average area rental value
1,855.00 £/mo
Increased by 13.87 %
from 1,629.00 £/mo
Est letting value
615.00 £/mo
Unchanged by 0.00 %
from 615.00 £/mo
Est rental Yield
5.64 %
Decreased by 2.59 %
from 5.79 %
Crime Rate
3.00 %
Unchanged by 0.00 %
from 3.00 %

Agent Activity

  • Acorn created the listing.

Nearby Schools

NameTypeOfstedDistance
Knockhall Primary SchoolAcademy Sponsor LedRequires improvement0.57 KM
Knockhall Children'S CentreChildren's Centre0.65 KM
The Craylands SchoolCommunity SchoolGood1.69 KM
Bean Primary SchoolCommunity SchoolGood2.11 KM
Cherry Orchard Primary AcademyAcademy Sponsor Led2.21 KM

Images

1396218-16-695d2a... 1396218-15-695d2a... 1396218-18-695d2a... 1396218-1-695d2a3... 1396218-14-695d2a... 1396218-22-695d2a... 1396218-12-695d2a... 1396218-17-695d2a... 1396218-6-695d2a5... 1396218-4-695d2a4... 1396218-3-695d2a4... 1396218-9-695d2a6... 1396218-8-695d2a6... 1396218-5-695d2a5... 1396218-20-695d2a... 1396218-24-695d2a... 1396218-23-695d2a... 1396218-11-695d2a... 1396218-10-695d2a... 1396218-21-695d2a... 1396218-19-695d2a... 1396218-13-695d2a... 1396218-25-695d2a... 1396218-2-695d2a3... Google Maps Image

Nearby Streets

NameAverage PriceAverage SqftDistance
Harpur Hill £ 000.00 KM
Eastern Avenue £ 262,00000.00 KM
Cherry Hinton Close £ 000.00 KM
Ecclestone Road £ 458,57100.00 KM
Cawdor Close £ 542,00000.00 KM

Nearby Transport

NameNLCTLCDistance
Greenhithe For Bluewater5138GNH0.99 KM
Swanscombe5156SWM2.59 KM
Stone Crossing5248SCG2.66 KM
Ebbsfleet International5566EBD3.79 KM
Northfleet5120NFL4.17 KM

Nearby Listings

AddressPriceTypeScoreDistance
Mounts Road, Greenhithe, Kent £ 325,000BUY6 / 100.00 KM
Mounts Road, Greenhithe, Kent, DA9 £ 375,000BUY7 / 100.00 KM
Mounts Road, Greenhithe, Kent, DA9 £ 280,000BUY7 / 100.04 KM
Mounts Road, Greenhithe, Kent, DA9 £ 300,000BUYUnknown0.06 KM
Johnsons Way, Greenhithe, Kent, DA9 £ 350,000BUYUnknown0.11 KM

Nearby Properties

AddressPriceDistance
19 Mounts Road £ 328,0000.01 KM
16 Mounts Road £ 172,5000.01 KM
20d Mounts Road £ 205,0000.01 KM
5 Mounts Road £ 265,0000.01 KM
17 Mounts Road £ 330,0000.01 KM