Sanford Place, Exeter, EX2
By Smart Estate Agent
£ 400,000
Reviews
3 out of 5 stars
Smart Estate Agent says ..
5 Bedrooms/4 Doubles, 2 Allocated parking spaces, Enclosed SOUTH FACING garden & balcony, Motivated sellers, Train station/bus route close by
Property Oracle says ..
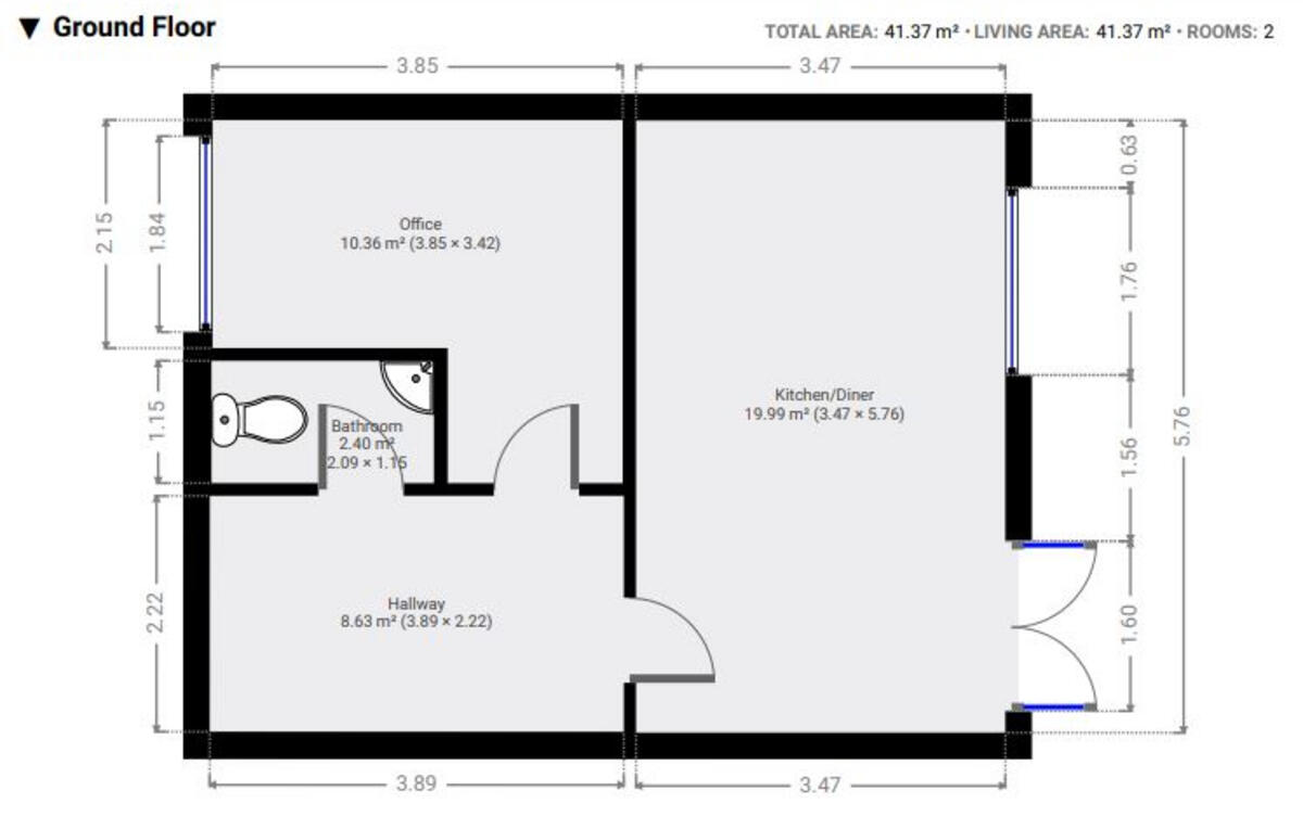
This property is a five bedroom terraced house located in St Thomas, Exeter. It benefits from being close to local amenities and transport links, with Exeter St Thomas train station just a short walk away. The property itself appears to be in good condition, with modern fixtures and fittings throughout. The images show a well-maintained garden, adding to its appeal. The list price of £400,000 is slightly above the average price for the area, but considering the size (1,076.71 sqft) and number of bedrooms, it could be considered reasonable, especially given the lack of comparable properties with similar specifications in the immediate vicinity. The average price per sqft in the area is £374, but the lack of sqft data for nearby listings makes a precise comparison difficult.
Therefore, we give this property 7 / 10. *Disclaimer: This is our option and does constitute a recommendation or financial advice. Do your own research. *
- Price
- 7
- Condition
- 9
- Location
- 8
- Land
- 7
- Bedrooms
- 5
- Bathrooms
- 1
- Sqft (est)
- 1,076.71
- Lot (est)
- 1,474.66
The heatmap indicates the level of crime in the area. The color of the heatmap indicates the crime severity and recency.
Metrics Year-on-Year
- Average area value
- 421,780.00 £Increased by 21.83 %
- Est sale value
- 607,264.44 £Increased by 75.70 %
- Average area rental value
- 1,390.00 £/moDecreased by 6.33 %
- Est letting value
- 1,076.71 £/moUnchanged by 0.00 %
- Est rental Yield
- 3.95 %Decreased by 23.15 %
- Crime Rate
- 12.00 %Unchanged by 0.00 %
Agent Activity
Smart Estate Agent created the listing.
Nearby Schools
| Name | Type | Ofsted | Distance |
|---|---|---|---|
| West Exe Nursery School | Local Authority Nursery School | Outstanding | 0.32 KM |
| St Thomas Primary School | Academy Converter | Good | 0.43 KM |
| West Exe Children'S Centre | Children's Centre | 0.44 KM | |
| Montgomery Primary School | Foundation School | Good | 0.45 KM |
| Bowhill Primary School | Academy Converter | Good | 0.69 KM |
Images
Nearby Streets
| Name | Average Price | Average Sqft | Distance |
|---|---|---|---|
| Clarence Road | £ 0 | 0 | 0.00 KM |
| St Edmunds Court | £ 0 | 0 | 0.00 KM |
| Emmanuel Close | £ 0 | 0 | 0.00 KM |
| Waterloo Road | £ 0 | 0 | 0.00 KM |
| Shelley Close | £ 375,000 | 0 | 0.00 KM |
Nearby Transport
| Name | NLC | TLC | Distance |
|---|---|---|---|
| Exeter St Thomas | 3414 | EXT | 0.53 KM |
| Exeter St David'S | 3410 | EXD | 1.63 KM |
| Exeter Central | 5755 | EXC | 1.69 KM |
| St James Park (Exeter) | 5751 | SJP | 2.95 KM |
| Polsloe Bridge | 3422 | POL | 4.89 KM |
Nearby Listings
| Address | Price | Type | Score | Distance |
|---|---|---|---|---|
| Sanford Place, Exeter, EX2 | £ 400,000 | BUY | 7 / 10 | 0.00 KM |
| Sanford Place, Exeter, Devon | £ 400,000 | BUY | 7 / 10 | 0.04 KM |
| Sanford Place, St Thomas, Exeter | £ 395,000 | BUY | Unknown | 0.05 KM |
| Sanford Place, Exeter, Devon, EX2 | £ 400,000 | BUY | 7 / 10 | 0.06 KM |
| Sandford Place, St Thomas, EX2 | £ 385,000 | BUY | 6 / 10 | 0.06 KM |
Nearby Properties
| Address | Price | Distance |
|---|---|---|
| 2 Sanford Place | £ 275,000 | 0.04 KM |
| 32 Sanford Place | £ 265,000 | 0.04 KM |
| 17 Sanford Place | £ 277,500 | 0.04 KM |
| 21 Sanford Place | £ 279,950 | 0.04 KM |
| 12 Sanford Place | £ 283,000 | 0.06 KM |