Dourish & Day says ..
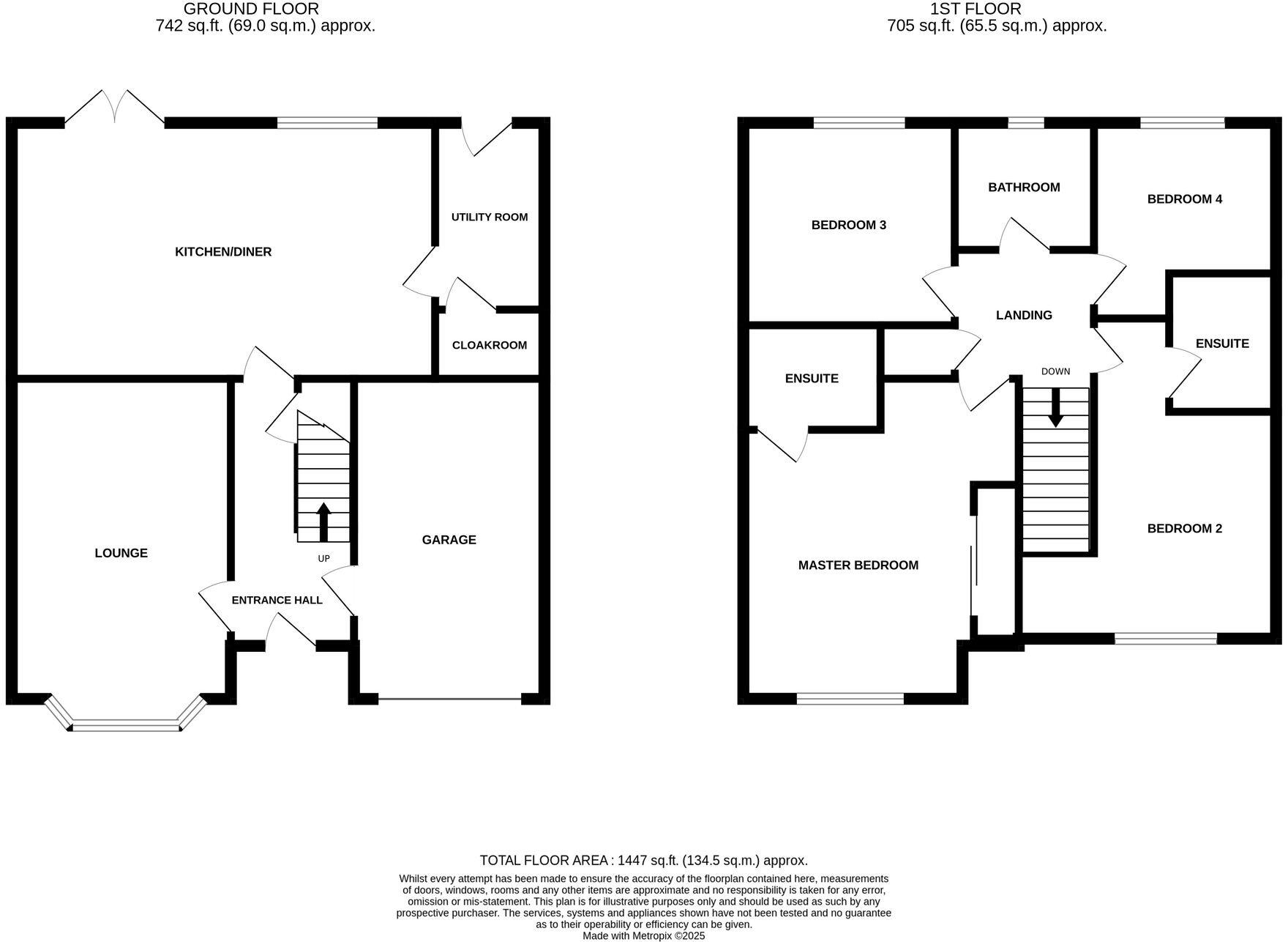
Call us 9AM - 9PM -7 days a week, 365 days a year! Not content with just one en-suite shower room, one of the reasons our client chose this spacious family home is because it has 4 good sized bedrooms with 2 en-suite shower rooms, as well as having a family bathroom! Downstairs, the comfortable l...
Property Oracle says ..
Therefore, we give this property 6 / 10. *Disclaimer: This is our option and does constitute a recommendation or financial advice. Do your own research. *
- Price
- 5
- Condition
- 8
- Location
- 7
- Land
- 7
- Bedrooms
- 4
- Bathrooms
- 3
- Sqft (est)
- 1,447.00
The heatmap indicates the level of crime in the area. The color of the heatmap indicates the crime severity and recency.
Metrics Year-on-Year
- Average area value
- 258,571.00 £Decreased by 18.16 %
- Est sale value
- 474,616.00 £Increased by 11.95 %
- Average area rental value
- 1,230.00 £/moIncreased by 21.30 %
- Est letting value
- 1,447.00 £/mo
- Est rental Yield
- 5.71 %Increased by 48.31 %
- Crime Rate
- 58.00 %Unchanged by 0.00 %
from 315,930.00 £
from 423,971.00 £
from 1,014.00 £/mo
from 0.00 £/mo
from 3.85 %
from 58.00 %
Agent Activity
Dourish & Day created the listing.
Nearby Schools
| Name | Type | Ofsted | Distance |
|---|---|---|---|
| Malpas Alport Endowed Primary School | Community School | Good | 0.53 KM |
| Bishop Heber High School | Foundation School | Outstanding | 0.66 KM |
| Tushingham With Grindley Cofe Primary School | Voluntary Controlled School | Outstanding | 5.61 KM |
| Tilston Parochial Cofe Primary School | Voluntary Controlled School | Good | 6.34 KM |
| Bickerton Holy Trinity Cofe Primary School | Voluntary Controlled School | Good | 6.67 KM |
Images
Nearby Streets
| Name | Average Price | Average Sqft | Distance |
|---|---|---|---|
| Craddock Court | £ 0 | 0 | 0.00 KM |
| Sandstone Gate Estate | £ 0 | 0 | 0.00 KM |
| Ash Close | £ 0 | 0 | 0.00 KM |
| The Cottages | £ 0 | 0 | 0.00 KM |
| Love Lane | £ 800,000 | 0 | 0.00 KM |
Nearby Listings
| Address | Price | Type | Score | Distance |
|---|---|---|---|---|
| Lynchet Road, Malpas, SY14 | £ 415,000 | BUY | 6 / 10 | 0.00 KM |
| Lynchet Road, Malpas, Cheshire | £ 230,000 | BUY | 7 / 10 | 0.04 KM |
| Lynchet Road, Malpas, SY14 | £ 300,000 | BUY | 7 / 10 | 0.05 KM |
| Lynchet Road, Malpas | £ 285,000 | BUY | 6 / 10 | 0.05 KM |
| Lynchet Road, Malpas | £ 365,000 | BUY | 8 / 10 | 0.13 KM |
Nearby Properties
| Address | Price | Distance |
|---|---|---|
| 5 Lynchet Road | £ 249,995 | 0.06 KM |
| 41 Lynchet Road | £ 265,995 | 0.07 KM |
| 2 Lynchet Road | £ 248,000 | 0.08 KM |
| 6 Lynchet Road | £ 311,655 | 0.12 KM |
| 29 Depenbech Close | £ 246,000 | 0.18 KM |