Falmer Road, London, N15
WI

Falmer Road, London, N15

By Winkworth

£ 775,000

Reviews

3 out of 5 stars

Winkworth says ..

This spacious and stylish home offers a superb opportunity in one of Harringay’s most popular residential pockets. Chain Free.

Property Oracle says ..

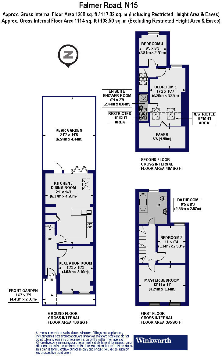
This four-bedroom terraced house on Falmer Road, London, is located in the St Ann’s area of Haringey. The property benefits from a good location, with nearby primary schools rated as ‘Good’ or ‘Outstanding’ by Ofsted, and several overground stations within a reasonable distance. The house itself appears to be in good condition, having undergone some modernisation while retaining some traditional character. Images show a modern kitchen and bathrooms, and a well-maintained garden. The list price of £775,000 is slightly below the average price for the area (£1,128,824), and while the average price per sqft is £725, the property’s size (1,207.28 sqft) and features suggest it could be a reasonable price, although further details on the plot size would be needed for a more definitive assessment. Nearby comparable properties range from £240,000 to £1,000,000, indicating some price variability in the area. The lack of plot size information prevents a full evaluation of land value.

Therefore, we give this property 7 / 10. *Disclaimer: This is our option and does constitute a recommendation or financial advice. Do your own research. *

Price
7
Condition
8
Location
9
Land
7
Bedrooms
4
Bathrooms
2
Sqft (est)
1,207.28

The heatmap indicates the level of crime in the area. The color of the heatmap indicates the crime severity and recency.

Metrics Year-on-Year

Average area value
789,000.00 £
Increased by 13.27 %
from 696,574.00 £
Est sale value
1,402,859.36 £
Increased by 105.66 %
from 682,113.20 £
Average area rental value
2,233.00 £/mo
Increased by 4.05 %
from 2,146.00 £/mo
Est letting value
3,621.84 £/mo
Increased by 200.00 %
from 1,207.28 £/mo
Est rental Yield
3.40 %
Decreased by 8.11 %
from 3.70 %
Crime Rate
3.00 %
Unchanged by 0.00 %
from 3.00 %

Agent Activity

  • Winkworth created the listing.

Nearby Schools

NameTypeOfstedDistance
Chestnuts Primary SchoolFoundation SchoolGood0.34 KM
St Ann'S Ce Primary SchoolAcademy ConverterRequires improvement0.39 KM
Harris Primary Academy Philip LaneAcademy Sponsor LedOutstanding0.44 KM
Park View SchoolCommunity SchoolGood0.46 KM
Islamic Shakhsiyah FoundationOther Independent School0.48 KM

Images

Picture No. 13 Picture No. 23 Picture No. 15 Picture No. 12 Picture No. 21 Picture No. 01 Picture No. 20 Picture No. 07 Picture No. 03 Picture No. 04 Picture No. 05 Picture No. 11 Picture No. 06 Picture No. 02 Picture No. 09 Picture No. 22 Picture No. 16 Picture No. 24 Picture No. 17 Picture No. 18 Picture No. 14 Picture No. 10 Picture No. 08 Picture No. 19

Nearby Streets

NameAverage PriceAverage SqftDistance
Alexandra Road £ 596,65000.00 KM
Newsam Avenue £ 000.00 KM
Cleveland Gardens £ 677,50000.00 KM
Anstey Walk £ 000.00 KM
Overbury Road £ 000.00 KM

Nearby Transport

NameNLCTLCDistance
Harringay Green Lanes7401HRY1.28 KM
Seven Sisters6931SVS1.47 KM
Stamford Hill6968SMH1.66 KM
South Tottenham7404STO1.85 KM
Harringay6012HGY1.97 KM

Nearby Listings

AddressPriceTypeScoreDistance
Falmer Road, London, N15 £ 775,000BUY7 / 100.00 KM
Falmer Road, South Tottenham, Harringay, N15 £ 600,000BUY5 / 100.00 KM
Clarence Road, London £ 625,000BUY6 / 100.06 KM
Clarence Road, London, N15 £ 735,000BUY7 / 100.06 KM
Clarence Road, Tottenham London, N15 £ 825,000BUY7 / 100.07 KM

Nearby Properties

AddressPriceDistance
38 Falmer Road £ 487,6500.01 KM
18 Falmer Road £ 330,0000.01 KM
6 Falmer Road £ 530,0000.01 KM
54 Falmer Road £ 775,0000.01 KM
16 Falmer Road £ 250,0000.01 KM