BT
Cudham Lane South, Sevenoaks, Kent, TN14
By BTF Partnership
£ 2,450,000
BTF Partnership says ..
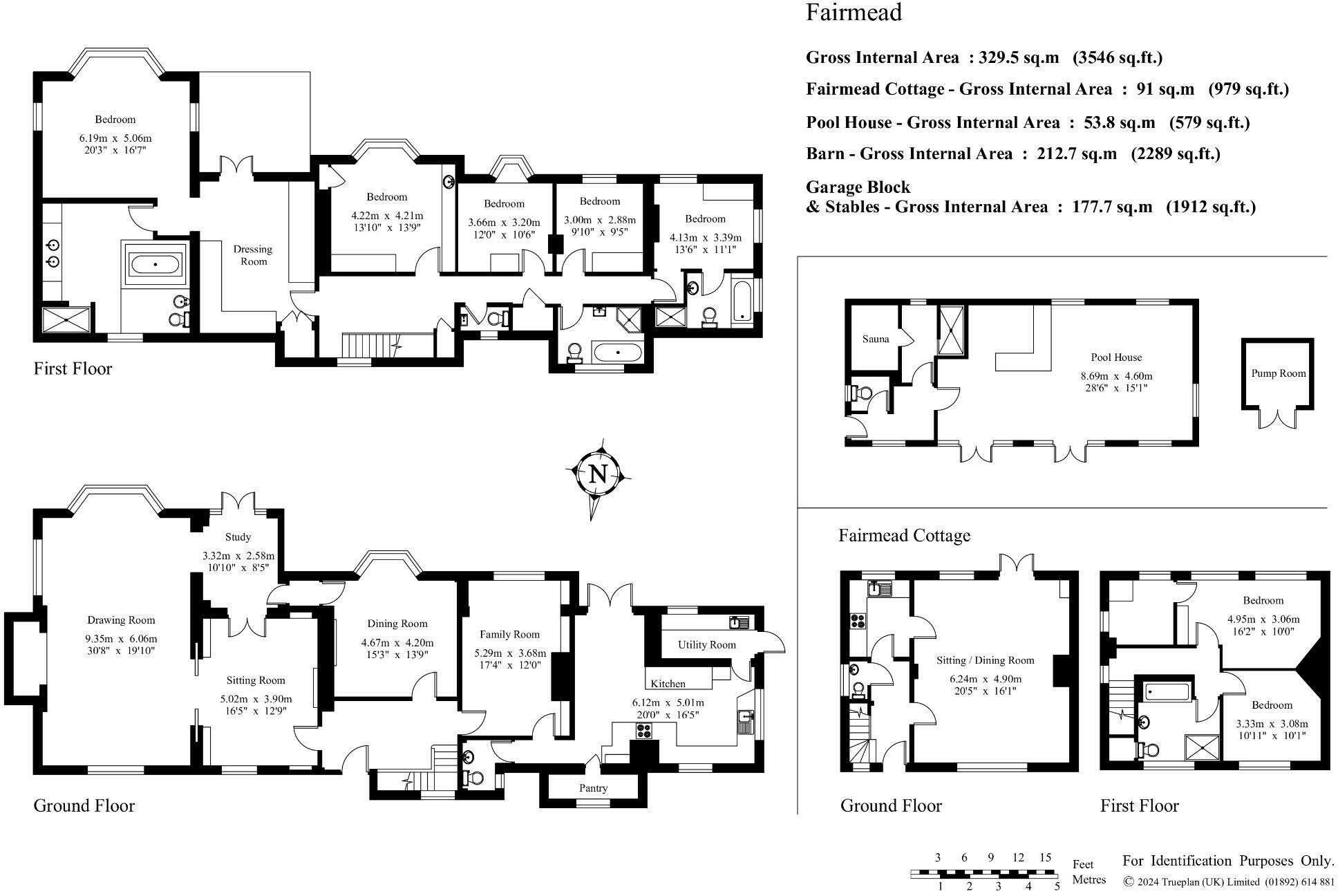
Fairmead has been in the same ownership for over 50 years and is a comfortable family home on the outskirts of the village of Knockholt in the North Downs. It has well maintained landscaped gardens and grounds.. In all 11.57 acres with over 4000sqft of property.
- Bedrooms
- 8
- Bathrooms
- 5
The heatmap indicates the level of crime in the area. The color of the heatmap indicates the crime severity and recency.
Metrics Year-on-Year
- Average area value
- 770,000.00 £Increased by 1.19 %
- Average area rental value
- 1,713.00 £/moDecreased by 7.36 %
- Est rental Yield
- 2.67 %Decreased by 8.56 %
- Crime Rate
- 0.00 %
from 760,920.00 £
from 1,849.00 £/mo
from 2.92 %
from 0.00 %
Agent Activity
BTF Partnership created the listing.
Nearby Schools
| Name | Type | Ofsted | Distance |
|---|---|---|---|
| St Katharine'S Knockholt Church Of England Voluntary Aided Primary School | Voluntary Aided School | Good | 2.44 KM |
| Cudham Church Of England Primary School | Academy Converter | Good | 3.20 KM |
| Churchill Church Of England Voluntary Controlled Primary School | Voluntary Controlled School | Good | 4.09 KM |
| Valence School | Foundation Special School | Good | 4.20 KM |
| Charles Darwin School | Academy Converter | Good | 4.22 KM |
Images
Nearby Transport
| Name | NLC | TLC | Distance |
|---|---|---|---|
| Chelsfield | 5098 | CLD | 6.36 KM |
| Knockholt | 5109 | KCK | 6.99 KM |
| Orpington | 5122 | ORP | 7.56 KM |
| Petts Wood | 5123 | PET | 9.27 KM |
| Dunton Green | 5102 | DNG | 9.86 KM |
Nearby Listings
| Address | Price | Type | Score | Distance |
|---|---|---|---|---|
| Cudham Lane South, Sevenoaks, Kent, TN14 | £ 2,450,000 | BUY | Unknown | 0.00 KM |
| Cudham Lane South, Knockholt, Sevenoaks | £ 1,400,000 | BUY | 7 / 10 | 0.08 KM |
| Cudham Lane South, Knockholt, TN14 | £ 1,400,000 | BUY | Unknown | 0.15 KM |
| Cudham Lane South, Cudham | £ 1,000,000 | BUY | 7 / 10 | 0.39 KM |
| Cudham Lane South, Knockholt, TN14 | £ 1,950,000 | BUY | 7 / 10 | 0.40 KM |
Nearby Properties
| Address | Price | Distance |
|---|---|---|
| Greenwood | £ 927,500 | 0.43 KM |
| Foxcroft | £ 785,000 | 0.43 KM |
| Bymede | £ 345,000 | 0.43 KM |
| Rowan Cottage | £ 555,000 | 0.43 KM |
| Ivy Cottage | £ 685,000 | 0.73 KM |