Pemberton Close, Staines-upon-Thames, TW19
By Gregory Brown
£ 415,000
Reviews
3 out of 5 stars
Gregory Brown says ..
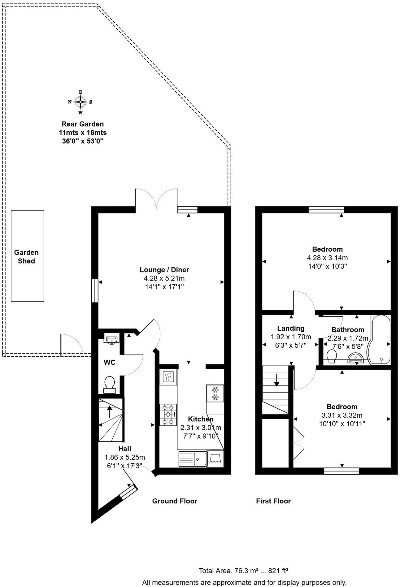
WELL PRESENTED AND SPACIOUS TWO BEDROOM END-TERRACED PROPERTY SITUATED AT THE REAR OF THIS MUCH SOUGHT AFTER NO-THROUGH ROAD IDEALLY LOCATED FOR EASY ACCESS TO BOTH STAINES & ASHFORD TOWN CENTRES, LOCAL MOTORWAY NETWORKS & HEATHROW AIRPORT. The property benefits from a spacious lounge/...
Property Oracle says ..
This two-bedroom property in Pemberton Close, Staines-upon-Thames, is presented as a well-maintained home suitable for families or couples. Its location offers a good balance between access to amenities and a quieter residential setting. The proximity to multiple train stations and the proximity of Heathrow Airport could be particularly attractive to commuters and travellers. The garden provides a valuable addition, offering outdoor space. The internal photos reveal a modern kitchen and living spaces that appear clean and well-presented. There is a noticeable garden and a garden shed, giving added storage capacity and space for outdoor activities. The property is presented in a satisfactory condition. However, buyers should independently verify and assess property details before making purchasing decisions. Overall, the property offers a relatively attractive package for its area but independent investigation into the local market is always strongly recommended. Potential buyers will want to confirm the precise size of the garden and property square footage to make a well-informed decision. The price is competitive, but further analysis on a property-by-property basis is needed to gauge whether it is the absolute best value. The lack of explicit plot size information leaves a degree of uncertainty in property evaluation.
Therefore, we give this property 6 / 10. *Disclaimer: This is our option and does constitute a recommendation or financial advice. Do your own research. *
- Price
- 7
- Condition
- 7
- Location
- 7
- Land
- 6
- Bedrooms
- 2
- Bathrooms
- 1
- Sqft (est)
- 821.29
The heatmap indicates the level of crime in the area. The color of the heatmap indicates the crime severity and recency.
Metrics Year-on-Year
- Average area value
- 459,000.00 £Increased by 3.89 %
- Est sale value
- 367,937.92 £Decreased by 7.25 %
- Average area rental value
- 1,736.00 £/moDecreased by 7.31 %
- Est letting value
- 821.29 £/moDecreased by 50.00 %
- Est rental Yield
- 4.54 %Decreased by 10.81 %
- Crime Rate
- 4.00 %Unchanged by 0.00 %
Agent Activity
Gregory Brown created the listing.
Nearby Schools
| Name | Type | Ofsted | Distance |
|---|---|---|---|
| Stanwell Sure Start Children'S Centre | Children's Centre | 0.55 KM | |
| Stanwell Fields Cofe Primary School | Academy Converter | Good | 0.75 KM |
| Town Farm Primary School & Nursery | Foundation School | Good | 0.83 KM |
| Thomas Knyvett College | Academy Converter | Good | 1.03 KM |
| Fordway Centre | Academy Alternative Provision Converter | 1.11 KM |
Images
Nearby Streets
| Name | Average Price | Average Sqft | Distance |
|---|---|---|---|
| Holywell Close | £ 200,000 | 0 | 0.00 KM |
| Cranford Close | £ 0 | 0 | 0.00 KM |
| Vernon Close | £ 0 | 0 | 0.00 KM |
| A30 | £ 0 | 0 | 0.00 KM |
| Greenway Terrace | £ 210,000 | 0 | 0.00 KM |
Nearby Transport
| Name | NLC | TLC | Distance |
|---|---|---|---|
| Ashford (Surrey) | 5667 | AFS | 1.50 KM |
| Heathrow Terminal 5 | 9846 | HWV | 3.00 KM |
| Heathrow Terminal 4 | 7091 | HAF | 3.40 KM |
| Heathrow Terminals 2 And 3 (Rail Station Only) | 7090 | HXX | 3.40 KM |
| Staines | 5670 | SNS | 3.63 KM |
Nearby Listings
| Address | Price | Type | Score | Distance |
|---|---|---|---|---|
| Pemberton Close, Stanwell, Surrey, TW19 | £ 400,000 | BUY | 6 / 10 | 0.00 KM |
| Pemberton Close, Staines-upon-Thames, TW19 | £ 415,000 | BUY | 6 / 10 | 0.00 KM |
| Clare Road, Staines-Upon-Thames | £ 225,000 | BUY | 4 / 10 | 0.10 KM |
| Kingsway, Staines-Upon-Thames | £ 475,000 | BUY | 6 / 10 | 0.11 KM |
| 14 Mulberry Avenue, Stanwell, Staines-Upon-Thames, TW19 | £ 285,000 | BUY | 7 / 10 | 0.11 KM |
Nearby Properties
| Address | Price | Distance |
|---|---|---|
| 3 Nares Close | £ 275,000 | 0.06 KM |
| 2 Nares Close | £ 289,950 | 0.06 KM |
| 2a Mulberry Avenue | £ 161,000 | 0.10 KM |
| 4 Mulberry Avenue | £ 435,000 | 0.12 KM |
| 12 Mulberry Avenue | £ 445,000 | 0.12 KM |