Lambert & Foster Ltd says ..
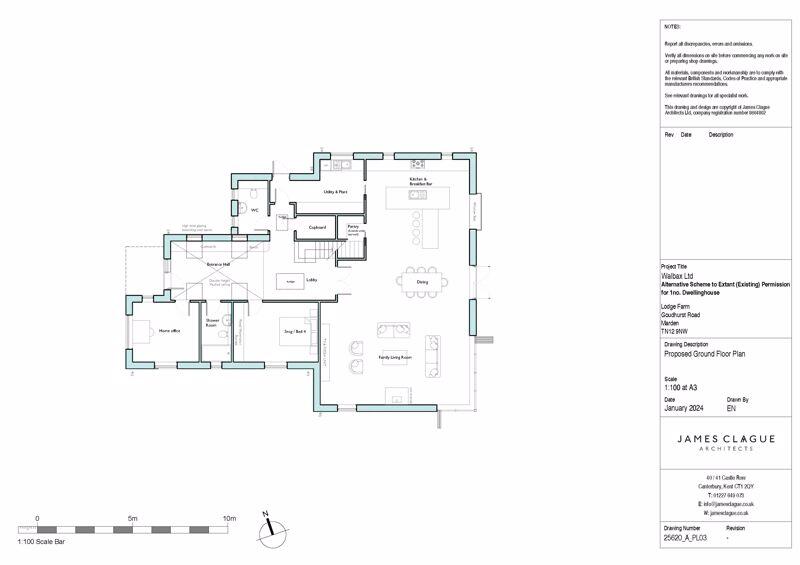
A building plot with planning permission for TWO SEPARATE SCHEMES, in a conveniently located position on the outskirts of the village of Marden in Kent. The land UNUSUALLY COMES WITH THE BENEFIT OF PLANNING PERMISSION FOR TWO SEPARATE SCHEMES (Scheme A & Scheme B) for the demolition of the existi...
Property Oracle says ..
This property is a plot of land with planning permission for a new dwelling in Marden, Kent. The existing structure on the land is a barn in a state of disrepair. The location offers a balance between rural living and accessibility, with a train station providing direct links to London. The plot appears to be a good size with an ‘enhanced biodiversity area’. The asking price seems reasonable considering the location and potential, but prospective buyers should factor in the cost of demolition and construction.
Therefore, we give this property 5 / 10. *Disclaimer: This is our option and does constitute a recommendation or financial advice. Do your own research. *
- Price
- 6
- Condition
- 3
- Location
- 7
- Land
- 7
- Bedrooms
- 0
- Bathrooms
- 0
The heatmap indicates the level of crime in the area. The color of the heatmap indicates the crime severity and recency.
Metrics Year-on-Year
- Average area value
- 465,167.00 £Decreased by 23.15 %
- Average area rental value
- 1,248.00 £/moDecreased by 11.36 %
- Est rental Yield
- 3.22 %Increased by 15.41 %
- Crime Rate
- 9.00 %Unchanged by 0.00 %
Agent Activity
Lambert & Foster Ltd created the listing.
Nearby Schools
| Name | Type | Ofsted | Distance |
|---|---|---|---|
| Marden Primary Academy | Academy Converter | 0.54 KM | |
| Bethany School | Other Independent School | 3.60 KM | |
| St Margaret'S, Collier Street Church Of England Voluntary Controlled School | Voluntary Controlled School | Good | 4.21 KM |
| Colliers Green Church Of England Primary School | Voluntary Aided School | Good | 5.93 KM |
| Hunton Church Of England Primary School | Voluntary Aided School | Good | 6.26 KM |
Images
Nearby Streets
| Name | Average Price | Average Sqft | Distance |
|---|---|---|---|
| Gravel Pit Lane | £ 85,000 | 0 | 0.00 KM |
| Church Green | £ 995,000 | 0 | 0.00 KM |
| The Wickets | £ 0 | 0 | 0.00 KM |
| South Road | £ 0 | 0 | 0.00 KM |
Nearby Transport
| Name | NLC | TLC | Distance |
|---|---|---|---|
| Marden (Kent) | 5223 | MRN | 1.00 KM |
| Staplehurst | 5228 | SPU | 7.01 KM |
| East Farleigh | 5234 | EFL | 9.66 KM |
Nearby Listings
| Address | Price | Type | Score | Distance |
|---|---|---|---|---|
| Goudhurst Road, Marden | £ 395,000 | BUY | 5 / 10 | 0.00 KM |
| Goudhurst Road, Marden | £ 425,000 | BUY | 6 / 10 | 0.00 KM |
| Goudhurst Road, Marden, Tonbridge, Kent, TN12 | £ 475,000 | BUY | 7 / 10 | 0.12 KM |
| Goudhurst Road, Marden | £ 375,000 | BUY | 7 / 10 | 0.20 KM |
| Heasman Close, Marden, Kent, TN12 9FH | £ 425,000 | BUY | 5 / 10 | 0.28 KM |
Nearby Properties
| Address | Price | Distance |
|---|---|---|
| Moleside | £ 137,500 | 0.01 KM |
| Spring Grove | £ 14,000 | 0.01 KM |
| The Lodge | £ 495,000 | 0.01 KM |
| Oast Cottage | £ 742,500 | 0.01 KM |
| Branns Farmhouse | £ 725,000 | 0.19 KM |