Crystal Palace Road, East Dulwich, London, SE22
By Winkworth
£ 2,000,000
Reviews
3 out of 5 stars
Winkworth says ..
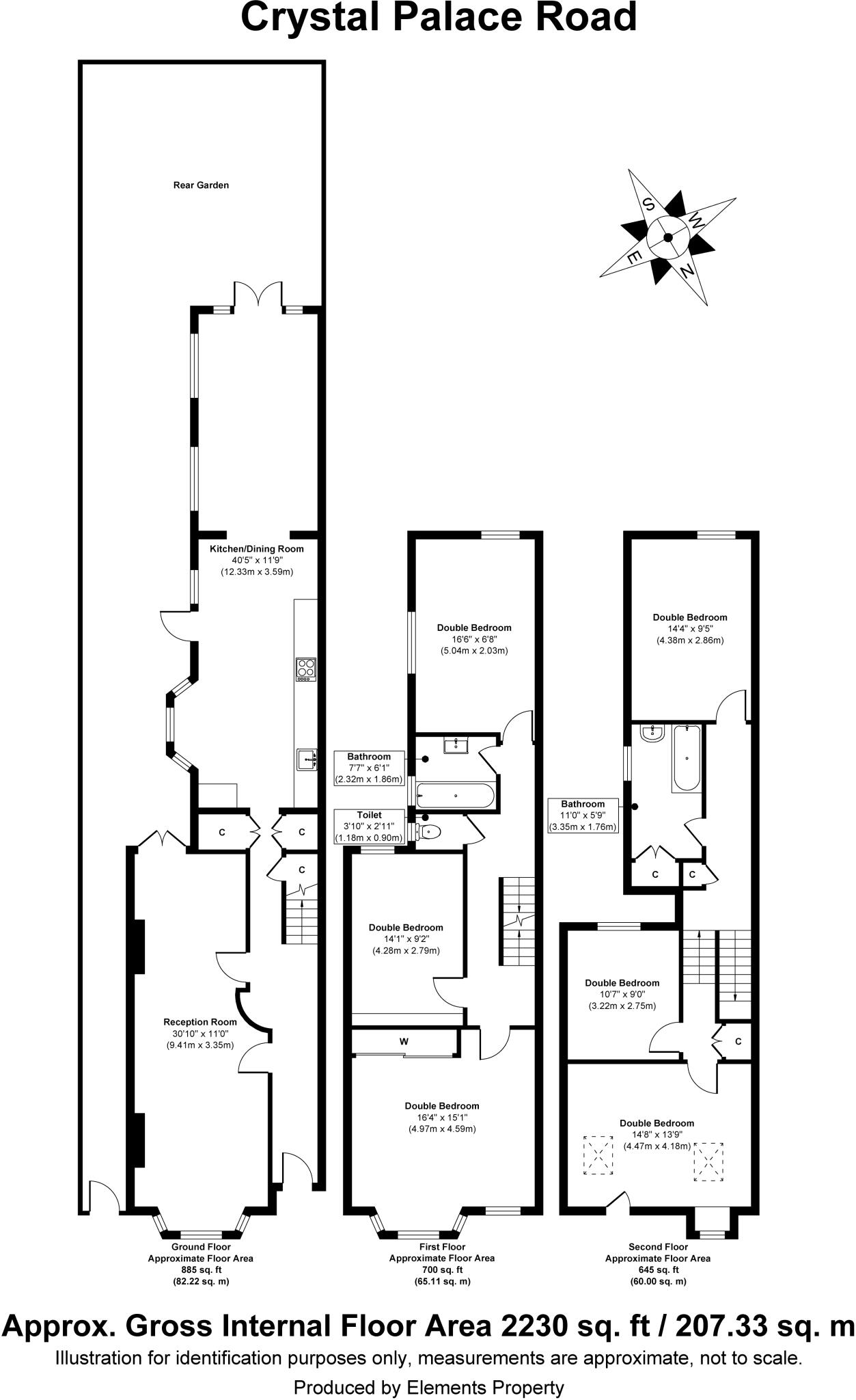
Set on the highly sought-after Crystal Palace Road, this impressive six-bedroom detached family home offers over 2,200 sq ft of versatile living space and provides an exceptional opportunity to create a dream residence.
Property Oracle says ..
This detached property on Crystal Palace Road, East Dulwich, offers substantial living space with six bedrooms and two bathrooms. The house retains period features and includes a modern kitchen and a large garden. While the property is in generally good condition, some areas could benefit from updating. Located in a sought-after area with good transport links and schools, the asking price of £2,000,000 appears high compared to the average price per square foot in the area.
Therefore, we give this property 7 / 10. *Disclaimer: This is our option and does constitute a recommendation or financial advice. Do your own research. *
- Price
- 6
- Condition
- 7
- Location
- 8
- Land
- 9
- Bedrooms
- 6
- Bathrooms
- 2
- Sqft (est)
- 1,875.00
The heatmap indicates the level of crime in the area. The color of the heatmap indicates the crime severity and recency.
Metrics Year-on-Year
- Average area value
- 559,500.00 £Decreased by 37.24 %
- Est sale value
- 1,162,500.00 £Decreased by 22.50 %
- Average area rental value
- 2,150.00 £/moDecreased by 18.34 %
- Est letting value
- 3,750.00 £/moUnchanged by 0.00 %
- Est rental Yield
- 4.61 %Increased by 30.23 %
- Crime Rate
- 2.00 %Unchanged by 0.00 %
Agent Activity
Winkworth created the listing.
Nearby Schools
| Name | Type | Ofsted | Distance |
|---|---|---|---|
| St John'S And St Clement'S Church Of England Primary School | Voluntary Aided School | Good | 0.54 KM |
| St John'S And St Clement'S Primary School Co Hearing Impaired Unit | Miscellaneous | 0.54 KM | |
| Harris Boys' Academy East Dulwich | Academy Sponsor Led | Outstanding | 0.63 KM |
| Harris Primary Academy East Dulwich | Free Schools | Outstanding | 0.68 KM |
| Heber Primary School | Community School | Good | 0.69 KM |
Images
Nearby Streets
| Name | Average Price | Average Sqft | Distance |
|---|---|---|---|
| Shawbury Road | £ 0 | 0 | 0.00 KM |
| Jennings Road | £ 525,000 | 0 | 0.00 KM |
| McDermott Road | £ 0 | 0 | 0.00 KM |
| Rye Passage | £ 0 | 0 | 0.00 KM |
| Quorn Road | £ 0 | 0 | 0.00 KM |
Nearby Transport
| Name | NLC | TLC | Distance |
|---|---|---|---|
| East Dulwich | 5358 | EDW | 1.13 KM |
| Peckham Rye | 5423 | PMR | 1.31 KM |
| North Dulwich | 5429 | NDL | 1.94 KM |
| Queens Road Peckham | 5424 | QRP | 2.26 KM |
| Nunhead | 5068 | NHD | 2.26 KM |
Nearby Listings
| Address | Price | Type | Score | Distance |
|---|---|---|---|---|
| Crystal Palace Road, East Dulwich, London, SE22 | £ 2,000,000 | BUY | 7 / 10 | 0.00 KM |
| Palace Road, London, SW2 3 | £ 325,000 | BUY | 6 / 10 | 0.06 KM |
| Crystal Palace Road, East Dulwich, London, SE22 | £ 2,400,000 | BUY | 7 / 10 | 0.06 KM |
| Crystal Palace Road, East Dulwich, London, SE22 | £ 550,000 | BUY | Unknown | 0.07 KM |
| Crawthew Grove, East Dulwich, London, SE22 | £ 1,500,000 | BUY | 7 / 10 | 0.13 KM |
Nearby Properties
| Address | Price | Distance |
|---|---|---|
| 65a Crystal Palace Road | £ 737,000 | 0.08 KM |
| 93 Crystal Palace Road | £ 283,000 | 0.08 KM |
| 79 Crystal Palace Road | £ 565,000 | 0.08 KM |
| 93b Crystal Palace Road | £ 212,000 | 0.08 KM |
| 76 Crystal Palace Road | £ 1,340,000 | 0.08 KM |