Somerton Road, Compton Dundon
HO

Somerton Road, Compton Dundon

By holland & odam

£ 375,000

Reviews

3 out of 5 stars

holland & odam says ..

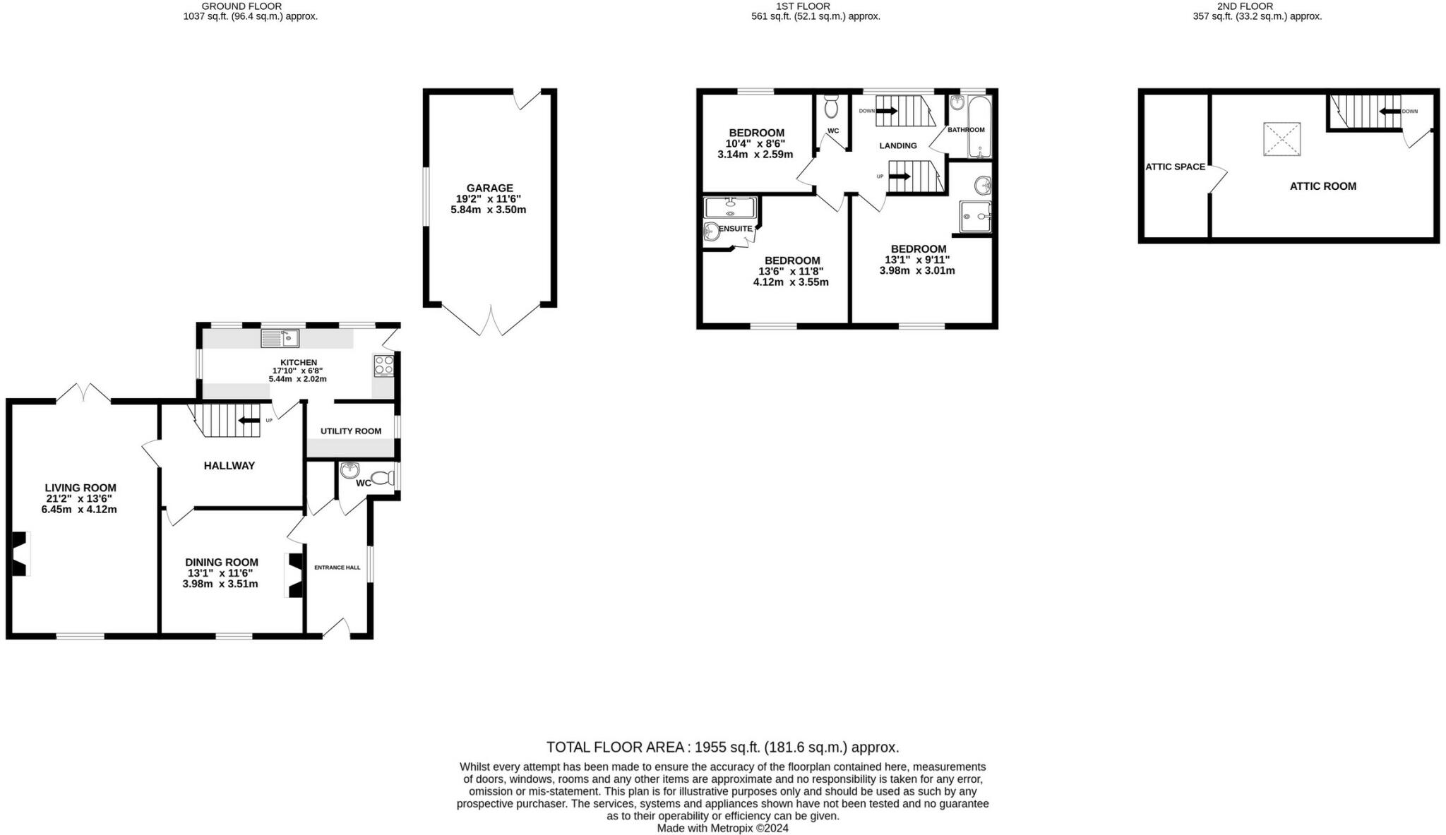
Pre-1900s charming characterful home in need of modernising, situated in Compton Dundon, offering immense potential for extension, subject to the necessary planning permission consents. The property presents a spacious entrance hallway with storage and a convenient WC, large living room featuring...

Property Oracle says ..

This three-bedroom, three-bathroom property located in Somerton Road, Compton Dundon, presents a mixed bag of attributes. Its main strengths lie in its location within a desirable village setting and the inclusion of a garden and shed. The proximity to Compton Dundon School, rated ‘Good’ by Ofsted, adds to its family-friendly appeal. However, the property requires some level of modernisation. While structurally sound, the kitchen and bathrooms present a dated aesthetic that could deter buyers looking for move-in ready accommodation. The lack of specific plot size data prevents a definitive assessment of land value. The price, while seemingly within the range of comparable properties in the area, needs careful consideration by potential buyers who should factor in the cost of renovations and improvements to achieve desired aesthetics. Those willing to undertake a refurbishment project could potentially find good value in the overall package.

Therefore, we give this property 6 / 10. *Disclaimer: This is our option and does constitute a recommendation or financial advice. Do your own research. *

Price
7
Condition
6
Location
7
Land
4
Bedrooms
3
Bathrooms
3
Sqft (est)
1,955.00

The heatmap indicates the level of crime in the area. The color of the heatmap indicates the crime severity and recency.

Metrics Year-on-Year

Average area value
1,000,000.00 £
Increased by 113.64 %
from 468,087.00 £
Est sale value
830,875.00 £
Increased by 66.02 %
from 500,480.00 £
Average area rental value
1,063.00 £/mo
Decreased by 28.32 %
from 1,483.00 £/mo
Est letting value
0.00 £/mo
from 0.00 £/mo
Est rental Yield
1.28 %
Decreased by 66.32 %
from 3.80 %
Crime Rate
0.00 %
from 0.00 %

Agent Activity

  • holland & odam created the listing.

Nearby Schools

NameTypeOfstedDistance
Compton Dundon SchoolOther Independent Special SchoolGood1.47 KM
Avalon SchoolCommunity Special SchoolGood3.37 KM
Millfield SchoolOther Independent School3.45 KM
Street BuildingChildren's Centre Linked Site3.46 KM
Brookside Community Primary SchoolAcademy ConverterGood3.51 KM

Images

Garden Garage Kitchen Kitchen Living Room Bedroom Bedroom Front Elevation Kitchen Dining Room Living Room Drive/ Garage Bedroom En-suite Bedroom Bedroom Landing Attic Room Garden Living Room Bathroom Attic Room Garden Rear Elevation

Nearby Streets

NameAverage PriceAverage SqftDistance
Home Field Close £ 000.00 KM

Nearby Listings

AddressPriceTypeScoreDistance
Castlebrook, Compton Dundon £ 750,000BUY7 / 100.00 KM
Castlebrook, Compton Dundon £ 550,000BUYUnknown0.04 KM
Eco-home building plot, Compton Dundon £ 300,000BUY6 / 100.04 KM
Compton Dundon, Somerton £ 625,000BUY8 / 100.14 KM
Compton Street, Compton Dundon £ 495,000BUYUnknown0.15 KM

Nearby Properties

AddressPriceDistance
Brook Cottage £ 420,0000.01 KM
Compton Randle £ 650,0000.01 KM
Brook Barn Cottage £ 266,5000.01 KM
Castlebrook House £ 1,082,5000.01 KM
Long Orchard £ 279,9500.04 KM