Church Road, Roch, Haverfordwest
West Wales Properties logo

Church Road, Roch, Haverfordwest

By West Wales Properties

£ 475,000

Reviews

3 out of 5 stars

West Wales Properties says ..

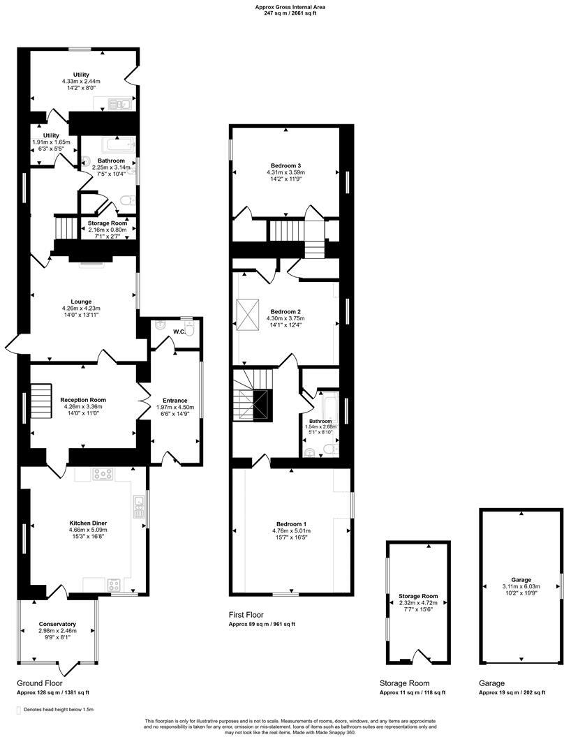
Welcome to The Old Post Office, a piece of local history located on Church Road in Roch, Haverfordwest. This well presented detached house presents an excellent opportunity for those seeking a comfortable family home in a friendly village within an easy drive of Haverfordwest. The layout...

Property Oracle says ..

The property located at Church Road, Roch, Haverfordwest, Pembrokeshire, SA62 6BG is a 3 bedroom, 3 bathroom detached house with a list price of £475,000. The property has 2,094.02 sqft of living space and is situated on a 2,661.00 sqft plot. Based on the images provided the property appears to be in good condition, although some modernisation may be desired by some buyers. The property benefits from a good size garden, which is well maintained. The average price for properties in the area is £290,250 with an average price per sqft of £288. This property is significantly larger than the average property in the area at 2,094.02 sqft compared to the average of 1,005 sqft. The list price of £475,000 is higher than the average price, however, given the size of the property and the size of the plot, the price may be considered reasonable. Further analysis of comparable properties in the area would be needed to confirm if this is good value for money. The property is located close to Roch C.P. School, which is approximately 1.69 km away. The proximity to a primary school is likely to be a positive factor for families. However, further information on the quality of the school and other amenities in the area would be needed to fully assess the location score.

Therefore, we give this property 7 / 10. *Disclaimer: This is our option and does constitute a recommendation or financial advice. Do your own research. *

Price
7
Condition
8
Location
6
Land
7
Bedrooms
3
Bathrooms
3
Sqft (est)
2,094.02
Lot (est)
2,661.00

The heatmap indicates the level of crime in the area. The color of the heatmap indicates the crime severity and recency.

Metrics Year-on-Year

Average area value
278,905.00 £
Increased by 2.67 %
from 271,663.00 £
Est sale value
575,855.50 £
Increased by 50.27 %
from 383,205.66 £
Average area rental value
800.00 £/mo
Decreased by 34.53 %
from 1,222.00 £/mo
Est letting value
0.00 £/mo
from 0.00 £/mo
Est rental Yield
3.44 %
Decreased by 36.30 %
from 5.40 %
Crime Rate
0.00 %
from 0.00 %

Agent Activity

  • West Wales Properties created the listing.

Nearby Schools

NameTypeOfstedDistance
Roch C.P. SchoolWelsh Establishment1.69 KM
Marlowe St David'S Education UnitWelsh Establishment6.93 KM
Broad Haven C.P. SchoolWelsh Establishment8.07 KM

Images

28 (1).jpg 14 (17).jpg 9 (23).jpg 26 (3).jpg 18 (11).jpg 12 (18).jpg 8 (22).jpg 6 (25).jpg 4 (25).jpg 2 (26).jpg 1 (25).jpg 19 (11).jpg 20 (10).jpg 23 (7).jpg 22 (9).jpg 29.jpg 15 (17).jpg 13 (19).jpg 17 (14).jpg 10 (23).jpg 27 (2).jpg 21 (9).jpg 24 (5).jpg

Nearby Listings

AddressPriceTypeScoreDistance
Church Road, Roch, Haverfordwest £ 475,000BUY7 / 100.00 KM
Church Road, Roch, Haverfordwest £ 165,000BUYUnknown0.19 KM
Church Road, Roch, Haverfordwest £ 310,000BUY7 / 100.21 KM
Church Road, Roch, Haverfordwest £ 625,000BUY7 / 100.27 KM
Maes Ffynnon, Roch, SA62 £ 575,000BUY7 / 100.56 KM

Nearby Properties

AddressPriceDistance
Glebelands £ 280,0000.15 KM
7 Castle Close £ 295,0000.20 KM
5 Castle Close £ 255,0000.20 KM
12 Castle Close £ 222,5000.20 KM
16 Castle Close £ 230,0000.20 KM