Portsmouth Avenue, Thames Ditton
HJ

Portsmouth Avenue, Thames Ditton

By HJC

£ 1,175,000

Reviews

4 out of 5 stars

HJC says ..

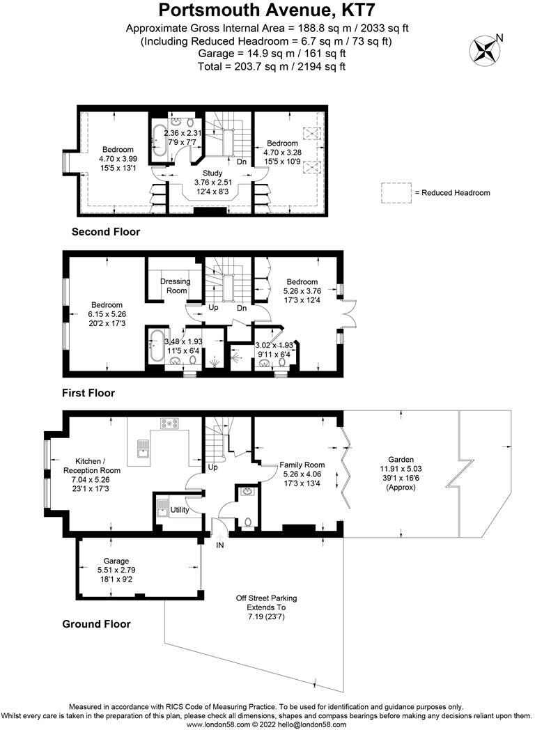
Hingham House is a magnificently proportioned end of terrace townhouse in Thames Ditton. Two impressive rooms dominate the ground floor with utility between - an open plan high specification kitchen/dining room to front and a large reception room with bi-folding doors opening to the garden at rea...

Property Oracle says ..

This property is a 4 bedroom, 3 bathroom end of terrace house located in Thames Ditton, Surrey. The property is newly built and is in excellent condition throughout. It benefits from a good size rear garden and is located close to local amenities and transport links. The asking price of £1,175,000 is slightly above the average price for the area, but given the size, condition and location of the property, it represents good value for money.

Therefore, we give this property 8 / 10. *Disclaimer: This is our option and does constitute a recommendation or financial advice. Do your own research. *

Price
8
Condition
10
Location
9
Land
7
Bedrooms
4
Bathrooms
3
Sqft (est)
1,791.11
Lot (est)
2,192.61

The heatmap indicates the level of crime in the area. The color of the heatmap indicates the crime severity and recency.

Metrics Year-on-Year

Average area value
781,990.00 £
Decreased by 16.87 %
from 940,702.00 £
Est sale value
1,375,572.48 £
Increased by 10.50 %
from 1,244,821.45 £
Average area rental value
2,910.00 £/mo
Increased by 3.34 %
from 2,816.00 £/mo
Est letting value
3,582.22 £/mo
Unchanged by 0.00 %
from 3,582.22 £/mo
Est rental Yield
4.47 %
Increased by 24.51 %
from 3.59 %
Crime Rate
11.00 %
Unchanged by 0.00 %
from 11.00 %

Agent Activity

  • HJC created the listing.

Nearby Schools

NameTypeOfstedDistance
The Ditton'S Sure Start Children'S CentreChildren's Centre0.59 KM
Long Ditton St Mary'S Cofe (Aided) Junior SchoolVoluntary Aided SchoolGood0.92 KM
Thames Ditton Infant SchoolFoundation SchoolOutstanding1.01 KM
Hinchley Wood SchoolAcademy Converter1.04 KM
Hinchley Wood Primary SchoolAcademy Converter1.08 KM

Images

Hingham-house-0006 (no20sign).jpg Hingham-house-0026.jpg Hingham-house-0060.jpg Hingham-house-0028.jpg Hingham-house-0029.jpg Hingham-house-0017.jpg Hingham-house-0031.jpg Hingham-house-0034.jpg Hingham-hhttps://login2.vebraalto.com/#ouse-0032.j Hingham-house-0020.jpg Hingham-house-0023.jpg Hingham-house-0010.jpg Hingham-house-0039.jpg Hingham-house-0042.jpg Hingham-house-0045.jpg Hingham-house-0037.jpg stairwell retouched.jpg Hingham-house-0058.jpg Hingham-house-0057.jpg Hingham-house-0054.jpg

Nearby Streets

NameAverage PriceAverage SqftDistance
Ashdown Place £ 000.00 KM
Basing Close £ 1,650,00000.00 KM
Long Acre Place £ 1,233,33300.00 KM
Taggs Boatyard £ 904,15800.00 KM
Prospect Road £ 1,033,75000.00 KM

Nearby Transport

NameNLCTLCDistance
Thames Ditton5610THD1.13 KM
Hinchley Wood5591HYW1.88 KM
Hampton Court5561HMC2.26 KM
Esher5558ESH2.81 KM
Surbiton5571SUR2.83 KM

Nearby Listings

AddressPriceTypeScoreDistance
Portsmouth Avenue, Thames Ditton £ 1,175,000BUY8 / 100.00 KM
Portsmouth Road, Thames Ditton, KT7 £ 1,500,000BUYUnknown0.07 KM
Giggs Hill Villas, Portsmouth Road, Thames Ditton, KT7 £ 899,950BUY7 / 100.08 KM
Portsmouth Road, Thames Ditton, KT7 £ 375,000BUY7 / 100.09 KM
Portsmouth Road, Thames Ditton, KT7 £ 925,000BUY6 / 100.09 KM

Nearby Properties

AddressPriceDistance
Oriel House £ 1,175,0000.15 KM
Wayside £ 385,0000.15 KM
Kingsdown £ 900,0000.15 KM
Springview £ 776,1000.15 KM
Tranby £ 800,0000.15 KM