Chancellors says ..
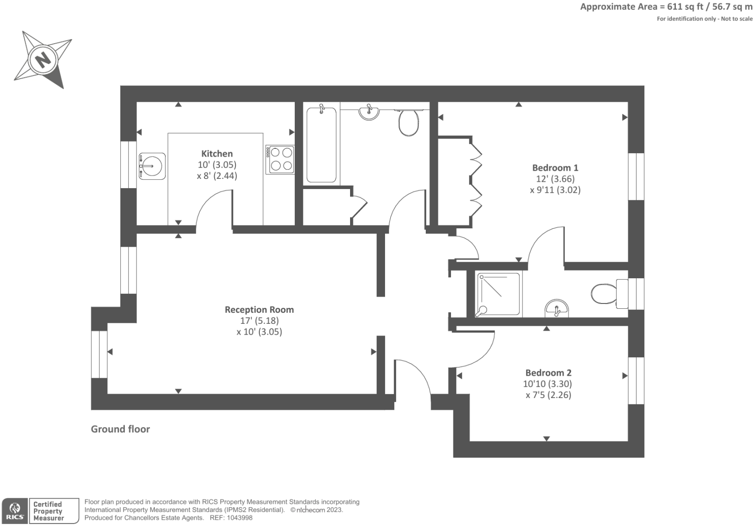
This two bedroom ground floor 'Charles Church' built apartment situated 0.5 miles to Camberley town centre and railway station. The property boasts two double bedrooms, with an en-suite to master bedroom. Externally there is allocated and visitor parking as well as communal grounds
Property Oracle says ..
This 2-bedroom, 2-bathroom flat in Camberley, Surrey is listed at £260,000. The property is located in Markham Court and is relatively close to Camberley train station (0.71km) providing convenient access to London and other areas. There are also several schools within a reasonable distance, including Lorraine Infant School (0.93km) and South Camberley Sure Start Children’s Centre (0.55km). The flat itself appears to be in reasonable condition, though some minor cosmetic upgrades might enhance its appeal. The kitchen and bathrooms seem functional, but could benefit from some modernisation. The property has a relatively small plot size, typical for a flat. Comparing the list price to the average price per square foot in the area (£446), the asking price appears slightly lower than the average for the area. However, this needs to be considered in the context of the property type and size. Nearby similar properties on Markham Court have sold for between £240,000 and £275,000, suggesting the list price is within a reasonable range.
Therefore, we give this property 5 / 10. *Disclaimer: This is our option and does constitute a recommendation or financial advice. Do your own research. *
- Price
- 7
- Condition
- 7
- Location
- 8
- Land
- 1
- Bedrooms
- 2
- Bathrooms
- 2
- Sqft (est)
- 611.00
The heatmap indicates the level of crime in the area. The color of the heatmap indicates the crime severity and recency.
Metrics Year-on-Year
- Average area value
- 371,130.00 £Increased by 2.62 %
- Est sale value
- 261,508.00 £Increased by 32.10 %
- Average area rental value
- 1,597.00 £/moIncreased by 9.08 %
- Est letting value
- 611.00 £/moUnchanged by 0.00 %
- Est rental Yield
- 5.16 %Increased by 6.17 %
- Crime Rate
- 4.00 %Unchanged by 0.00 %
Agent Activity
Chancellors created the listing.
Nearby Schools
| Name | Type | Ofsted | Distance |
|---|---|---|---|
| South Camberley Sure Start Children'S Centre | Children's Centre Linked Site | 0.55 KM | |
| Lorraine Infant School | Academy Converter | Good | 0.93 KM |
| Crawley Ridge Infant School | Academy Converter | 1.71 KM | |
| Crawley Ridge Junior School | Academy Converter | 1.71 KM | |
| Lyndhurst School | Other Independent School | 1.87 KM |
Images
Nearby Streets
| Name | Average Price | Average Sqft | Distance |
|---|---|---|---|
| West Road | £ 250,000 | 0 | 0.00 KM |
| York Place | £ 0 | 0 | 0.00 KM |
| London Road cycle path | £ 0 | 0 | 0.00 KM |
| High Street | £ 140,000 | 0 | 0.00 KM |
| The Bowlings | £ 357,500 | 0 | 0.00 KM |
Nearby Transport
| Name | NLC | TLC | Distance |
|---|---|---|---|
| Camberley | 5682 | CAM | 0.71 KM |
| Frimley | 5683 | FML | 3.25 KM |
| Farnborough North | 5688 | FNN | 4.25 KM |
| Blackwater | 5625 | BAW | 4.28 KM |
| Farnborough (Main) | 5521 | FNB | 5.17 KM |
Nearby Listings
| Address | Price | Type | Score | Distance |
|---|---|---|---|---|
| Camberley, Surrey, GU15 | £ 260,000 | BUY | 5 / 10 | 0.00 KM |
| The Manor House, Portesbery Hill Drive, Camberley | £ 290,000 | BUY | 6 / 10 | 0.14 KM |
| Markham Court, Camberley | £ 275,000 | BUY | 5 / 10 | 0.15 KM |
| Lancaster Drive, Camberley, Surrey, GU15 | £ 280,000 | BUY | 6 / 10 | 0.17 KM |
| Hillside, Camberley, GU15 | £ 675,000 | BUY | Unknown | 0.17 KM |
Nearby Properties
| Address | Price | Distance |
|---|---|---|
| Foxhaven | £ 750,000 | 0.09 KM |
| Grantchester | £ 905,000 | 0.09 KM |
| 10 Langley Drive | £ 673,500 | 0.11 KM |
| 27 Langley Drive | £ 395,000 | 0.11 KM |
| 14 Langley Drive | £ 710,000 | 0.11 KM |