MA
Somerset Road, Farnborough, Hampshire, GU14
By Mackenzie Smith
£ 475,000
Reviews
3 out of 5 stars
Mackenzie Smith says ..
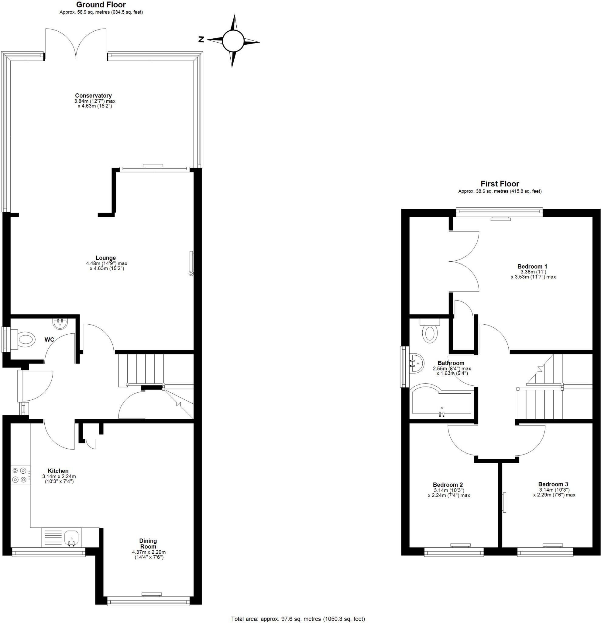
** Viewing Launch Day Saturday 16th August 2025 ** Revealed behind the exterior is an amazing extended family home that really delivers, including 3 good sized bedrooms, a living room, large conservatory, kitchen to dining room and a stunning rear garden over 100ft. in depth. Centrally locat...
Property Oracle says ..
Therefore, we give this property 7 / 10. *Disclaimer: This is our option and does constitute a recommendation or financial advice. Do your own research. *
- Price
- 7
- Condition
- 8
- Location
- 8
- Land
- 7
- Bedrooms
- 3
- Bathrooms
- 1
- Sqft (est)
- 1,050.56
The heatmap indicates the level of crime in the area. The color of the heatmap indicates the crime severity and recency.
Metrics Year-on-Year
- Average area value
- 401,729.00 £Decreased by 10.51 %
- Est sale value
- 542,088.96 £Increased by 7.28 %
- Average area rental value
- 1,630.00 £/moDecreased by 14.30 %
- Est letting value
- 2,101.12 £/moUnchanged by 0.00 %
- Est rental Yield
- 4.87 %Decreased by 4.13 %
- Crime Rate
- 4.00 %Unchanged by 0.00 %
from 448,918.00 £
from 505,319.36 £
from 1,902.00 £/mo
from 2,101.12 £/mo
from 5.08 %
from 4.00 %
Agent Activity
Mackenzie Smith created the listing.
Nearby Schools
| Name | Type | Ofsted | Distance |
|---|---|---|---|
| St Mark'S Church Of England Aided Primary School | Voluntary Aided School | Outstanding | 0.23 KM |
| Salesian College | Other Independent School | 0.54 KM | |
| South Farnborough Infant School | Community School | Outstanding | 0.58 KM |
| Marlborough Infant School | Community School | Good | 0.68 KM |
| Farnborough College Of Technology | Further Education | Outstanding | 0.93 KM |
Images
Nearby Streets
| Name | Average Price | Average Sqft | Distance |
|---|---|---|---|
| Canterbury Walk | £ 630,000 | 0 | 0.00 KM |
| RAE Road | £ 0 | 0 | 0.00 KM |
| Bedford Court | £ 0 | 0 | 0.00 KM |
| Trenchard Way | £ 135,000 | 0 | 0.00 KM |
| Queens Gate Roundabout | £ 226,667 | 0 | 0.00 KM |
Nearby Transport
| Name | NLC | TLC | Distance |
|---|---|---|---|
| North Camp | 5636 | NCM | 1.85 KM |
| Farnborough (Main) | 5521 | FNB | 2.25 KM |
| Farnborough North | 5688 | FNN | 2.73 KM |
| Ash Vale | 5547 | AHV | 2.96 KM |
| Aldershot | 5623 | AHT | 3.76 KM |
Nearby Listings
| Address | Price | Type | Score | Distance |
|---|---|---|---|---|
| Somerset Road, Farnborough, Hampshire, GU14 | £ 475,000 | BUY | 7 / 10 | 0.00 KM |
| Somerset Road, Farnborough, Hampshire, GU14 | £ 350,000 | BUY | Unknown | 0.03 KM |
| Somerset Road, Farnborough, GU14 | £ 290,000 | BUY | 6 / 10 | 0.05 KM |
| Somerset Road, Farnborough, Hampshire, GU14 | £ 399,950 | BUY | 7 / 10 | 0.06 KM |
| Somerset Road, Farnborough, Hampshire, GU14 | £ 325,000 | BUY | 7 / 10 | 0.07 KM |
Nearby Properties
| Address | Price | Distance |
|---|---|---|
| 23 Somerset Road | £ 159,950 | 0.03 KM |
| 43 Somerset Road | £ 405,000 | 0.03 KM |
| 7 Somerset Road | £ 216,000 | 0.03 KM |
| 45 Somerset Road | £ 367,500 | 0.03 KM |
| 21 Somerset Road | £ 280,000 | 0.03 KM |