Ashley King says ..
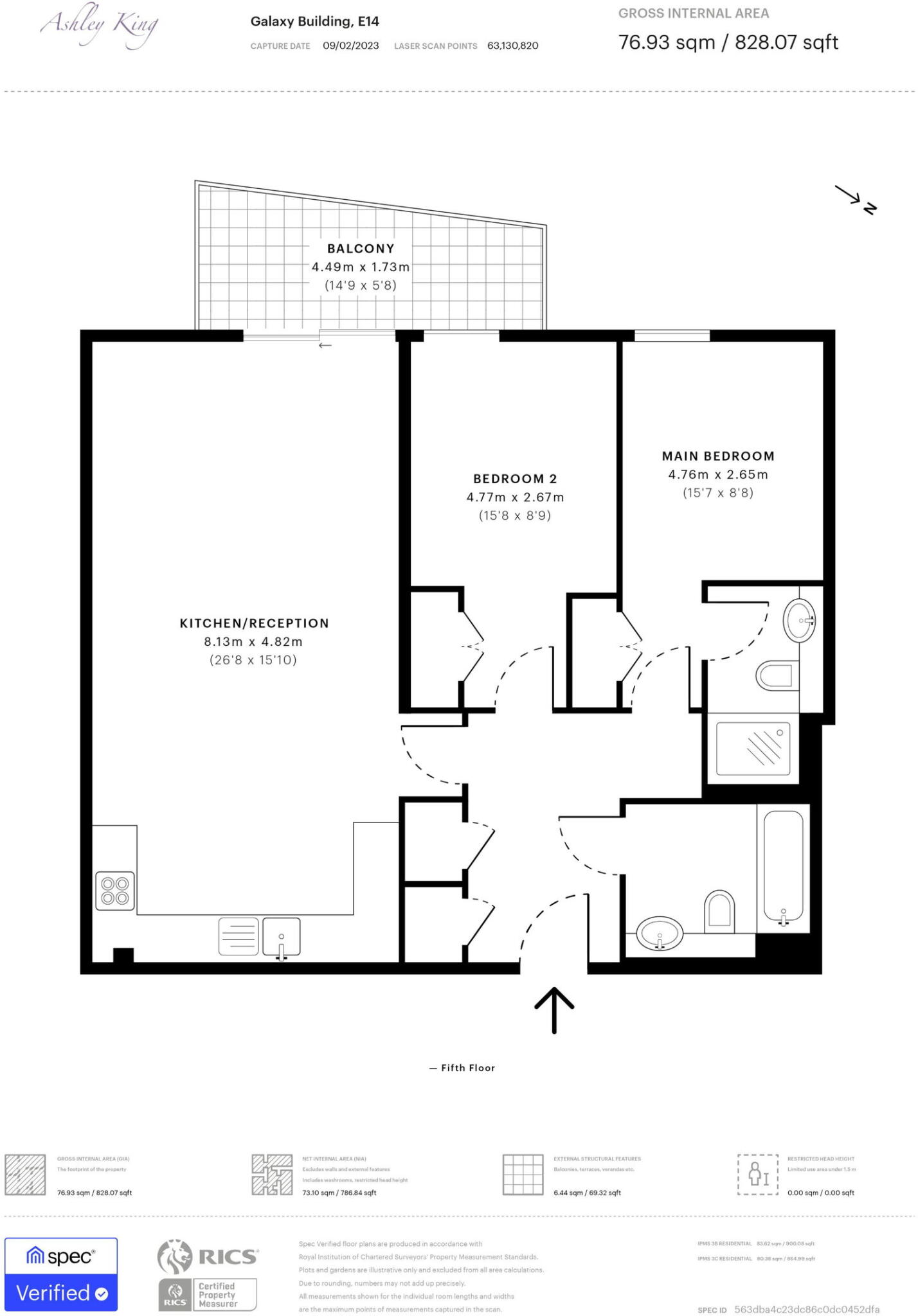
Situated on the fifth floor of an impressive Thames side development on the Isle of Dogs, this two bedroomed apartment benefits from a bright living space, underground parking, a sought-after Canary Wharf location and balcony with superb panoramic views.
Property Oracle says ..
This is a modern two-bedroom flat in Island Gardens, London. The property benefits from two bathrooms and a balcony with city views. The flat appears to be in good condition, with a modern kitchen and bathrooms. While it lacks a garden, its location offers convenient access to local amenities, transport links, and green spaces. The asking price is competitive for the area, making it an attractive option for buyers looking for a well-located and modern property.
Therefore, we give this property 6 / 10. *Disclaimer: This is our option and does constitute a recommendation or financial advice. Do your own research. *
- Price
- 8
- Condition
- 7
- Location
- 7
- Land
- 3
- Bedrooms
- 2
- Bathrooms
- 2
- Sqft (est)
- 778.45
The heatmap indicates the level of crime in the area. The color of the heatmap indicates the crime severity and recency.
Metrics Year-on-Year
- Average area value
- 508,333.00 £Decreased by 5.19 %
- Est sale value
- 653,898.00 £Increased by 33.33 %
- Average area rental value
- 2,031.00 £/moIncreased by 42.63 %
- Est letting value
- 2,335.35 £/moIncreased by 200.00 %
- Est rental Yield
- 4.79 %Increased by 50.16 %
- Crime Rate
- 4.00 %Unchanged by 0.00 %
Agent Activity
Ashley King created the listing.
Nearby Schools
| Name | Type | Ofsted | Distance |
|---|---|---|---|
| St Edmund'S Catholic School | Voluntary Aided School | Good | 0.32 KM |
| Arnhem Wharf Primary School | Community School | Good | 0.38 KM |
| Harbinger Primary School | Community School | Requires improvement | 0.67 KM |
| Seven Mills Primary School | Community School | Good | 0.69 KM |
| South Quay College | Free Schools Alternative Provision | 0.95 KM |
Images
Nearby Streets
| Name | Average Price | Average Sqft | Distance |
|---|---|---|---|
| Millwall Slipway | £ 0 | 0 | 0.00 KM |
| Old Bellgate Place | £ 0 | 0 | 0.00 KM |
| Deptford Strand | £ 325,000 | 0 | 0.00 KM |
| Watergate Steps | £ 0 | 0 | 0.00 KM |
| St Georges Square | £ 0 | 0 | 0.00 KM |
Nearby Transport
| Name | NLC | TLC | Distance |
|---|---|---|---|
| Deptford | 5145 | DEP | 1.48 KM |
| Greenwich | 5146 | GNW | 2.05 KM |
| Surrey Quays | 1083 | SQE | 2.44 KM |
| New Cross Gate | 5345 | NXG | 2.51 KM |
| St Johns | 5059 | SAJ | 2.55 KM |
Nearby Listings
| Address | Price | Type | Score | Distance |
|---|---|---|---|---|
| Crews Street, London, E14 3SP | £ 475,000 | BUY | 6 / 10 | 0.00 KM |
| Galaxy Building, 5 Crews Street, E14 | £ 325,000 | BUY | 6 / 10 | 0.00 KM |
| Crews Street, London, E14 3SP | £ 500,000 | BUY | 5 / 10 | 0.00 KM |
| Crews Street,London,E14 3SP | £ 475,000 | BUY | 6 / 10 | 0.00 KM |
| Galaxy Building, Crews Street, London, E14 | £ 415,000 | BUY | 6 / 10 | 0.00 KM |
Nearby Properties
| Address | Price | Distance |
|---|---|---|
| 7 Homer Drive | £ 285,000 | 0.07 KM |
| 6 Homer Drive | £ 201,000 | 0.07 KM |
| 8 Homer Drive | £ 259,999 | 0.07 KM |
| 2 Homer Drive | £ 183,000 | 0.07 KM |
| 5 Homer Drive | £ 375,000 | 0.09 KM |