Cold Bath Road, Harrogate
By Nicholls Tyreman
£ 1,300,000
Reviews
3 out of 5 stars
Nicholls Tyreman says ..
Agent’s Note: This is currently a commercial property with planning consent for change of use back to a residential private home. A stunning, Grade II Listed, Georgian stone property situated within the very heart of Harrogate, in this beautiful location on Cold Bath Road close to its...
Property Oracle says ..
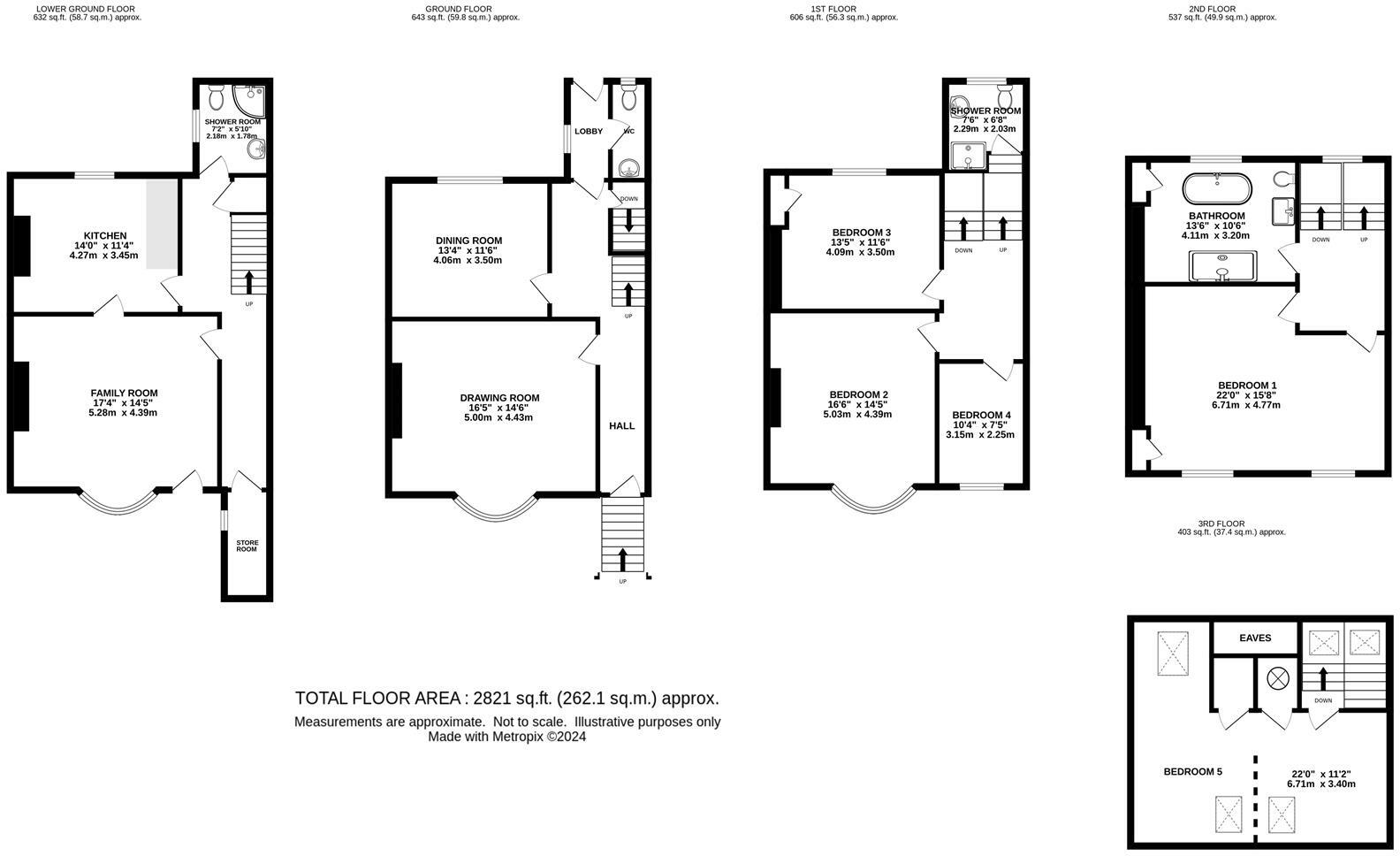
This 5-bedroom, 2-bathroom property situated on Cold Bath Road in Harrogate presents a blend of period charm and modern updates. The exterior maintains the classic Georgian architectural style common to the area. While precise plot size isn’t specified, there is a compact, enclosed rear yard, more of a gravelled area than a substantial garden. Internally, the property showcases a tasteful blend of modern conveniences and original features. Newly installed fittings, including contemporary flooring and lighting fixtures, indicate recent renovations. However, some areas would likely benefit from further upgrades and modernisation to reach a completely contemporary standard. The location is a significant advantage. Cold Bath Road’s proximity to Valley Gardens and several top-rated schools is highly desirable. The excellent transport links via the nearby Harrogate train station provide further convenience. Buyers should note that the property was originally a commercial property, meaning potential buyers should review the full planning permissions and conversion details carefully before purchasing. Overall, this property would appeal to families or individuals seeking a well-located home with character in a highly sought-after location, and who are willing to undertake further modernisation as needed.
Therefore, we give this property 6 / 10. *Disclaimer: This is our option and does constitute a recommendation or financial advice. Do your own research. *
- Price
- 7
- Condition
- 7
- Location
- 9
- Land
- 4
- Bedrooms
- 5
- Bathrooms
- 2
- Sqft (est)
- 2,821.00
The heatmap indicates the level of crime in the area. The color of the heatmap indicates the crime severity and recency.
Metrics Year-on-Year
- Average area value
- 577,492.00 £Decreased by 7.84 %
- Est sale value
- 1,430,247.00 £Increased by 11.18 %
- Average area rental value
- 1,475.00 £/moIncreased by 28.15 %
- Est letting value
- 2,821.00 £/mo
- Est rental Yield
- 3.06 %Increased by 39.09 %
- Crime Rate
- 13.00 %Unchanged by 0.00 %
Agent Activity
Nicholls Tyreman created the listing.
Nearby Schools
| Name | Type | Ofsted | Distance |
|---|---|---|---|
| Western Primary School | Academy Converter | Outstanding | 0.21 KM |
| Harrogate Language Academy | Miscellaneous | 0.22 KM | |
| Harrogate Ladies' College | Other Independent School | 0.71 KM | |
| St Peter'S Church Of England Primary School | Academy Converter | Good | 0.90 KM |
| Harrogate Grammar School | Academy Converter | 0.92 KM |
Images
Nearby Streets
| Name | Average Price | Average Sqft | Distance |
|---|---|---|---|
| Crown Roundabout | £ 0 | 0 | 0.00 KM |
| Saint Mary's Walk Rear | £ 0 | 0 | 0.00 KM |
| Cold Bath Road Rear | £ 0 | 0 | 0.00 KM |
| Glebe Road Rear | £ 118,800 | 0 | 0.00 KM |
| Cygnet Court | £ 330,000 | 0 | 0.00 KM |
Nearby Transport
| Name | NLC | TLC | Distance |
|---|---|---|---|
| Harrogate | 8213 | HGT | 1.06 KM |
| Hornbeam Park | 8212 | HBP | 2.57 KM |
| Pannal | 8479 | PNL | 3.96 KM |
| Starbeck | 8221 | SBE | 5.15 KM |
| Weeton | 8509 | WET | 8.46 KM |
Nearby Listings
| Address | Price | Type | Score | Distance |
|---|---|---|---|---|
| Cold Bath Road, Harrogate | £ 1,300,000 | BUY | 6 / 10 | 0.00 KM |
| St. Marys Avenue, Harrogate, HG2 0LP | £ 160,000 | BUY | 6 / 10 | 0.04 KM |
| Belmont Road, Harrogate, HG2 | £ 139,950 | BUY | 6 / 10 | 0.05 KM |
| Cold Bath Road, Harrogate | £ 165,000 | BUY | 6 / 10 | 0.05 KM |
| Cold Bath Road, Harrogate | £ 165,000 | BUY | 7 / 10 | 0.05 KM |
Nearby Properties
| Address | Price | Distance |
|---|---|---|
| 22 Cold Bath Road | £ 520,000 | 0.04 KM |
| 12 Cold Bath Road | £ 615,000 | 0.04 KM |
| 16 Cold Bath Road | £ 750,000 | 0.04 KM |
| 18 Cold Bath Road | £ 250,000 | 0.04 KM |
| 24 Cold Bath Road | £ 825,000 | 0.05 KM |