Watsons says ..
A superb refurbished family home occupying a corner plot, convenient for the local schools, park and bus stop with the benefit of off road parking.
Property Oracle says ..
Therefore, we give this property 7 / 10. *Disclaimer: This is our option and does constitute a recommendation or financial advice. Do your own research. *
- Price
- 6
- Condition
- 8
- Location
- 9
- Land
- 7
- Bedrooms
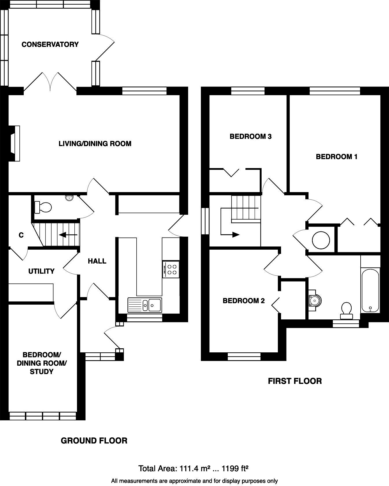
- 4
- Bathrooms
- 1
- Sqft (est)
- 1,199.00
The heatmap indicates the level of crime in the area. The color of the heatmap indicates the crime severity and recency.
Metrics Year-on-Year
- Average area value
- 337,772.00 £Decreased by 14.97 %
- Est sale value
- 324,929.00 £Decreased by 19.35 %
- Average area rental value
- 950.00 £/moIncreased by 2.70 %
- Est letting value
- 0.00 £/mo
- Est rental Yield
- 3.38 %Increased by 21.15 %
- Crime Rate
- 25.00 %Unchanged by 0.00 %
from 397,237.00 £
from 402,864.00 £
from 925.00 £/mo
from 0.00 £/mo
from 2.79 %
from 25.00 %
Agent Activity
Watsons created the listing.
Nearby Schools
| Name | Type | Ofsted | Distance |
|---|---|---|---|
| Sheringham Community Primary School | Community School | Good | 0.25 KM |
| Sheringham Woodfields School | Foundation Special School | Outstanding | 0.51 KM |
| Sheringham High School | Academy Converter | Good | 0.58 KM |
| St Andrew'S School | Other Independent Special School | Good | 3.08 KM |
| Beeston Hall School | Other Independent School | 3.38 KM |
Images
Nearby Streets
| Name | Average Price | Average Sqft | Distance |
|---|---|---|---|
| Birch Grove | £ 0 | 0 | 0.00 KM |
| Abbey Road | £ 170,000 | 0 | 0.00 KM |
| Garden Road | £ 0 | 0 | 0.00 KM |
| Chestnut Grove | £ 390,000 | 0 | 0.00 KM |
| Meadowsweet Drive | £ 0 | 0 | 0.00 KM |
Nearby Transport
| Name | NLC | TLC | Distance |
|---|---|---|---|
| Sheringham | 7319 | SHM | 1.00 KM |
| West Runton | 7329 | WRN | 4.65 KM |
| Cromer | 7295 | CMR | 9.91 KM |
Nearby Listings
| Address | Price | Type | Score | Distance |
|---|---|---|---|---|
| Sheringham | £ 345,000 | BUY | 7 / 10 | 0.00 KM |
| Childs Way, Sheringham | £ 165,000 | BUY | 6 / 10 | 0.10 KM |
| Pegg Road, Sheringham | £ 250,000 | BUY | Unknown | 0.10 KM |
| Childs Way, Sheringham | £ 230,000 | BUY | 6 / 10 | 0.12 KM |
| Childs Way, Sheringham | £ 130,000 | BUY | 6 / 10 | 0.13 KM |
Nearby Properties
| Address | Price | Distance |
|---|---|---|
| 23 Lusher Close | £ 235,000 | 0.03 KM |
| 2 Lusher Close | £ 310,000 | 0.03 KM |
| 20 Lusher Close | £ 249,500 | 0.03 KM |
| 19 Lusher Close | £ 185,000 | 0.03 KM |
| 1 Lusher Close | £ 194,000 | 0.03 KM |