Specialist Property Solutions says ..
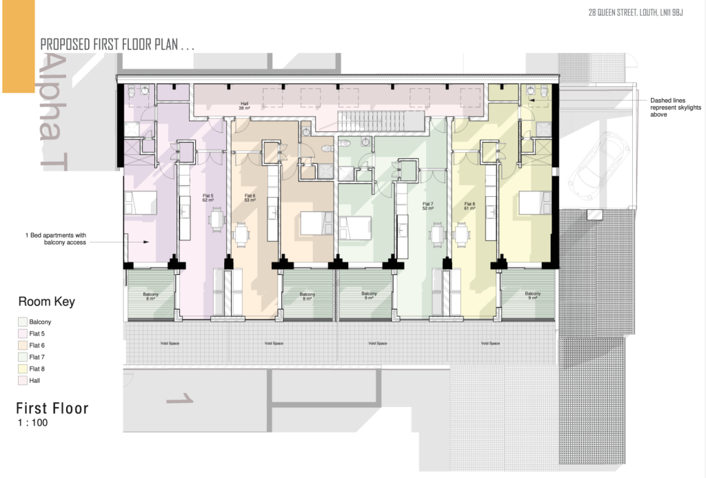
Parcel A – Title LL119952A cleared site in a key town-centre position on Queen Street.The site is ready for redevelopment, offering a “blank canvas” with
Property Oracle says ..
This property is a redevelopment project located on Queen Street in Louth. The plans suggest a modern design with retail and residential units. The location is central, with good access to local amenities and schools. However, the list price seems very high compared to the local market. The property is currently undergoing renovation, so the condition is not yet complete.
Therefore, we give this property 5 / 10. *Disclaimer: This is our option and does constitute a recommendation or financial advice. Do your own research. *
- Price
- 2
- Condition
- 7
- Location
- 7
- Land
- 6
- Bedrooms
- 0
- Bathrooms
- 0
The heatmap indicates the level of crime in the area. The color of the heatmap indicates the crime severity and recency.
Metrics Year-on-Year
- Average area value
- 197,200.00 £Decreased by 6.39 %
- Average area rental value
- 547.00 £/moDecreased by 9.88 %
- Est rental Yield
- 3.33 %Decreased by 3.76 %
- Crime Rate
- 44.00 %Unchanged by 0.00 %
Agent Activity
Specialist Property Solutions created the listing.
Nearby Schools
| Name | Type | Ofsted | Distance |
|---|---|---|---|
| Louth Kidgate Primary Academy | Academy Converter | Outstanding | 0.16 KM |
| Greenwich House School | Other Independent School | Good | 0.60 KM |
| St Michael'S Church Of England School, Louth | Voluntary Controlled School | Good | 0.67 KM |
| Louth Academy | Academy Sponsor Led | 0.76 KM | |
| King Edward Vi Grammar School | Academy Converter | 0.82 KM |
Images
Nearby Streets
| Name | Average Price | Average Sqft | Distance |
|---|---|---|---|
| Pawnshop Passage | £ 105,000 | 0 | 0.00 KM |
| Butcher Lane | £ 0 | 0 | 0.00 KM |
| Millers Court | £ 0 | 0 | 0.00 KM |
| Orme Lane | £ 256,424 | 0 | 0.00 KM |
| Westgate | £ 0 | 0 | 0.00 KM |
Nearby Listings
| Address | Price | Type | Score | Distance |
|---|---|---|---|---|
| Louth, LN11 | £ 1,200,000 | BUY | 5 / 10 | 0.00 KM |
| The Gatherums, Queen Street Place, Louth | £ 160,000 | BUY | 6 / 10 | 0.04 KM |
| 4 Alpha Terrace Queen Street Place Louth LN11 9BD | £ 220,000 | BUY | 8 / 10 | 0.07 KM |
| QUEEN STREET PLACE, LOUTH | £ 230,000 | BUY | 7 / 10 | 0.07 KM |
| Queen Street Place, Louth | £ 230,000 | BUY | 7 / 10 | 0.09 KM |
Nearby Properties
| Address | Price | Distance |
|---|---|---|
| 14 Queen Street Place | £ 200,000 | 0.06 KM |
| 16c Queen Street | £ 82,500 | 0.10 KM |
| 24 Queen Street | £ 100,000 | 0.10 KM |
| 16b Queen Street | £ 95,000 | 0.10 KM |
| 16a Queen Street | £ 150,000 | 0.10 KM |