Winkworth says ..
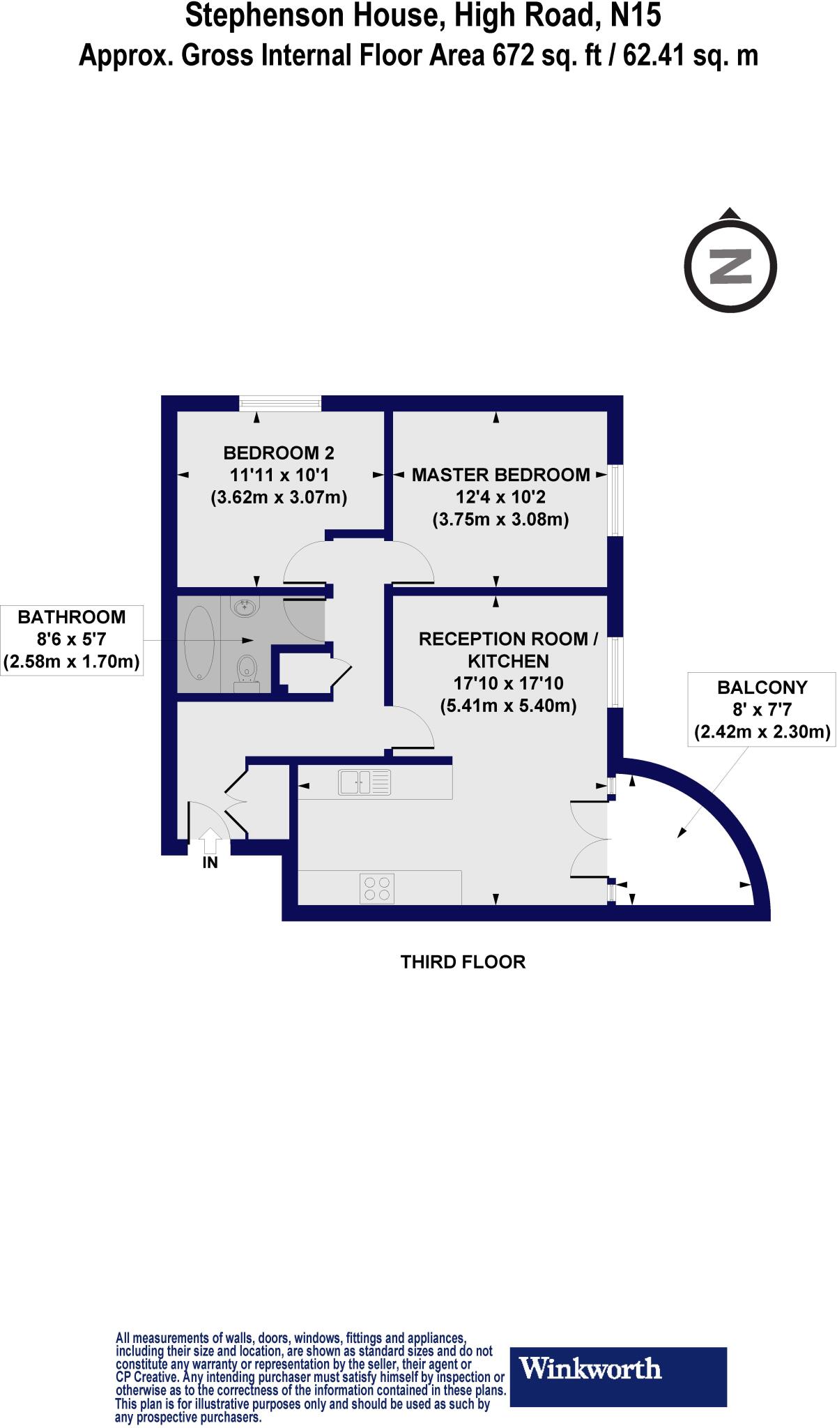
Set within a gated development, this two-bedroom apartment is located on the third floor of a purpose-built building. Sole Agents.
Property Oracle says ..
This two-bedroom apartment in Page Green, Seven Sisters, N15 is located in a convenient area with good access to transport links such as South Tottenham and Seven Sisters Overground stations. This makes commuting relatively easy. The property itself is presented in good condition, with modern finishes. The kitchen and bathroom appear clean and updated, and the living spaces are bright and airy. While the apartment does boast a small balcony, it lacks a garden, a common feature for apartments. The price of £410,000 requires further analysis due to lack of complete price per square foot data for comparable properties, making it hard to confirm the value proposition. The listing mentions the apartment being in a gated development, which may add to the security and desirability for some buyers. The nearby schools such as Crowland Primary School (Outstanding Ofsted) adds to its family-friendly appeal. Overall, this is a well-maintained apartment in a reasonably convenient location, but buyers should carefully consider the price relative to other properties in the area and their personal needs and preferences. The lack of sufficient data on pricing limits the property’s price-to-value assessment.
Therefore, we give this property 5 / 10. *Disclaimer: This is our option and does constitute a recommendation or financial advice. Do your own research. *
- Price
- 6
- Condition
- 7
- Location
- 7
- Land
- 2
- Bedrooms
- 2
- Bathrooms
- 1
- Sqft (est)
- 671.78
The heatmap indicates the level of crime in the area. The color of the heatmap indicates the crime severity and recency.
Metrics Year-on-Year
- Average area value
- 789,000.00 £Increased by 13.27 %
- Est sale value
- 780,608.36 £Increased by 105.66 %
- Average area rental value
- 2,233.00 £/moIncreased by 4.05 %
- Est letting value
- 2,015.34 £/moIncreased by 200.00 %
- Est rental Yield
- 3.40 %Decreased by 8.11 %
- Crime Rate
- 10.00 %Unchanged by 0.00 %
Agent Activity
Winkworth created the listing.
Nearby Schools
| Name | Type | Ofsted | Distance |
|---|---|---|---|
| St Ignatius Rc Primary School | Voluntary Aided School | Good | 0.45 KM |
| Earlsmead Primary School | Community School | Good | 0.51 KM |
| Earlsmead Children'S Centre | Children's Centre | 0.51 KM | |
| Crowland Primary School | Community School | Outstanding | 0.52 KM |
| Ambitious College | Special Post 16 Institution | Good | 0.62 KM |
Images
Nearby Streets
| Name | Average Price | Average Sqft | Distance |
|---|---|---|---|
| Platinum Mews | £ 700,000 | 0 | 0.00 KM |
| A10 | £ 0 | 0 | 0.00 KM |
| Fairview Road | £ 0 | 0 | 0.00 KM |
| Houghton Road | £ 0 | 0 | 0.00 KM |
| Barry Avenue | £ 0 | 0 | 0.00 KM |
Nearby Transport
| Name | NLC | TLC | Distance |
|---|---|---|---|
| South Tottenham | 7404 | STO | 0.05 KM |
| Seven Sisters | 6931 | SVS | 0.42 KM |
| Stamford Hill | 6968 | SMH | 0.88 KM |
| Bruce Grove | 6958 | BCV | 1.50 KM |
| Tottenham Hale | 6951 | TOM | 1.56 KM |
Nearby Listings
| Address | Price | Type | Score | Distance |
|---|---|---|---|---|
| Page Green, Seven Sisters, N15 | £ 410,000 | BUY | 5 / 10 | 0.00 KM |
| Page Green, Seven Sisters, N15 | £ 410,000 | BUY | 5 / 10 | 0.03 KM |
| Crowland Road, London | £ 1,200,000 | BUY | 4 / 10 | 0.07 KM |
| Page Green Terrace, London, N15 | £ 350,000 | BUY | 5 / 10 | 0.10 KM |
| Townsend Road, London, N15 | £ 300,000 | BUY | 5 / 10 | 0.10 KM |
Nearby Properties
| Address | Price | Distance |
|---|---|---|
| 14b Townsend Road | £ 107,000 | 0.10 KM |
| 31a Townsend Road | £ 213,250 | 0.10 KM |
| 34 Townsend Road | £ 133,000 | 0.10 KM |
| 24 Crowland Road | £ 980,000 | 0.10 KM |
| 31b Townsend Road | £ 180,000 | 0.10 KM |