Rachel J Homes says ..
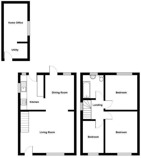
Rachel J Homes is delighted to market this Well Presented Semi Detached House ideally situated in the popular village of Hutton. If you are looking for a family home that is close to amenities and schools then make sure this is on your list to view. The accommodation briefly comprises of Loung...
Property Oracle says ..
This is a three-bedroom house located on Farm Road, Hutton. The property is in good condition and benefits from a modern interior, a good-sized garden, and off-street parking. The property is located close to local schools and transportation links. Overall, this property represents a good opportunity for families and commuters looking for a well-maintained home in a convenient location.
Therefore, we give this property 7 / 10. *Disclaimer: This is our option and does constitute a recommendation or financial advice. Do your own research. *
- Price
- 8
- Condition
- 7
- Location
- 7
- Land
- 7
- Bedrooms
- 3
- Bathrooms
- 0
- Sqft (est)
- 900.00
The heatmap indicates the level of crime in the area. The color of the heatmap indicates the crime severity and recency.
Metrics Year-on-Year
- Average area value
- 881,250.00 £Increased by 10.74 %
- Est sale value
- 621,000.00 £Increased by 54.71 %
- Average area rental value
- 1,300.00 £/moDecreased by 43.36 %
- Est letting value
- 900.00 £/moUnchanged by 0.00 %
- Est rental Yield
- 1.77 %Decreased by 48.84 %
- Crime Rate
- 25.00 %Unchanged by 0.00 %
Agent Activity
Rachel J Homes created the listing.
Nearby Schools
| Name | Type | Ofsted | Distance |
|---|---|---|---|
| Hutton Church Of England Primary School | Academy Converter | 0.20 KM | |
| Winterstoke Hundred Academy | Free Schools | 1.81 KM | |
| Haywood Village Academy | Academy Sponsor Led | Outstanding | 2.18 KM |
| Locking Primary School | Academy Converter | 2.62 KM | |
| Oldmixon Primary School | Academy Converter | 2.66 KM |
Images
Nearby Streets
| Name | Average Price | Average Sqft | Distance |
|---|---|---|---|
| Elmhurst Road | £ 0 | 0 | 0.00 KM |
| Windmill Hill | £ 0 | 0 | 0.00 KM |
| Boston Road | £ 0 | 0 | 0.00 KM |
| Lancaster Crescent | £ 0 | 0 | 0.00 KM |
| Westland Road | £ 183,000 | 0 | 0.00 KM |
Nearby Transport
| Name | NLC | TLC | Distance |
|---|---|---|---|
| Weston Milton | 3388 | WNM | 2.79 KM |
| Worle | 3390 | WOR | 4.37 KM |
| Weston-Super-Mare | 3391 | WSM | 4.87 KM |
Nearby Listings
| Address | Price | Type | Score | Distance |
|---|---|---|---|---|
| Farm Road, Hutton - VILLAGE LOCATION | £ 315,000 | BUY | 7 / 10 | 0.00 KM |
| Farm Road, Hutton | £ 315,000 | BUY | 7 / 10 | 0.00 KM |
| Farm Road, Hutton, Weston-super-Mare, Somerset, BS24 | £ 525,000 | BUY | 6 / 10 | 0.02 KM |
| Farm Road, Hutton - CONVERTED GARAGE | £ 310,000 | BUY | 7 / 10 | 0.04 KM |
| Farm Road, Hutton, BS24 | £ 325,000 | BUY | 7 / 10 | 0.04 KM |
Nearby Properties
| Address | Price | Distance |
|---|---|---|
| 8 Farm Road | £ 335,000 | 0.06 KM |
| 24 Farm Road | £ 151,500 | 0.06 KM |
| 1 Farm Road | £ 332,000 | 0.06 KM |
| 18 Farm Road | £ 197,000 | 0.06 KM |
| 20 Farm Road | £ 320,000 | 0.06 KM |