VI
Brackendale Road, Camberley, Surrey, GU15
By Vickery
£ 1,200,000
Reviews
3 out of 5 stars
Vickery says ..
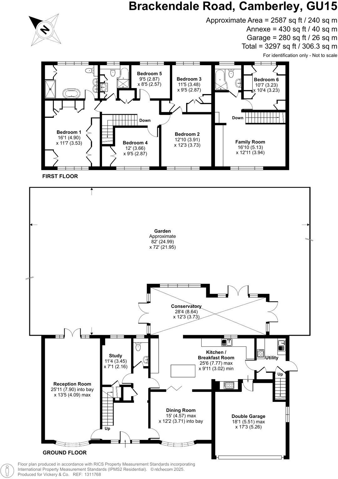
Vickery offer a unique opportunity to acquire this detached property, with six bedrooms, situated in one of Camberley's most prestigious non-estate locations, in a prime central location on Brackendale Road, within walking distance of the town centre. The property has undergone a programme of ref...
Property Oracle says ..
Therefore, we give this property 7 / 10. *Disclaimer: This is our option and does constitute a recommendation or financial advice. Do your own research. *
- Price
- 7
- Condition
- 8
- Location
- 8
- Land
- 8
- Bedrooms
- 6
- Bathrooms
- 4
- Sqft (est)
- 3,297.00
- Lot (est)
- 5,904.00
The heatmap indicates the level of crime in the area. The color of the heatmap indicates the crime severity and recency.
Metrics Year-on-Year
- Average area value
- 753,333.00 £Increased by 10.51 %
- Est sale value
- 1,816,647.00 £Increased by 20.83 %
- Average area rental value
- 1,548.00 £/moDecreased by 16.95 %
- Est letting value
- 3,297.00 £/moUnchanged by 0.00 %
- Est rental Yield
- 2.47 %Decreased by 24.70 %
- Crime Rate
- 1.00 %Unchanged by 0.00 %
from 681,667.00 £
from 1,503,432.00 £
from 1,864.00 £/mo
from 3,297.00 £/mo
from 3.28 %
from 1.00 %
Agent Activity
Vickery created the listing.
Nearby Schools
| Name | Type | Ofsted | Distance |
|---|---|---|---|
| South Camberley Sure Start Children'S Centre | Children's Centre Linked Site | 1.02 KM | |
| Kings International College | Foundation School | Good | 1.25 KM |
| The Grove Primary Academy | Academy Converter | Good | 1.52 KM |
| South Camberley Primary And Nursery School | Academy Converter | 1.52 KM | |
| Lyndhurst School | Other Independent School | 1.54 KM |
Images
Nearby Streets
| Name | Average Price | Average Sqft | Distance |
|---|---|---|---|
| Tekels Avenue | £ 1,100,000 | 0 | 0.00 KM |
| Beech Avenue | £ 0 | 0 | 0.00 KM |
| Firlands Avenue | £ 735,000 | 0 | 0.00 KM |
| West Road | £ 250,000 | 0 | 0.00 KM |
| Shelley Court | £ 0 | 0 | 0.00 KM |
Nearby Transport
| Name | NLC | TLC | Distance |
|---|---|---|---|
| Camberley | 5682 | CAM | 0.75 KM |
| Frimley | 5683 | FML | 2.13 KM |
| Farnborough North | 5688 | FNN | 3.14 KM |
| Blackwater | 5625 | BAW | 3.90 KM |
| Farnborough (Main) | 5521 | FNB | 4.06 KM |
Nearby Listings
| Address | Price | Type | Score | Distance |
|---|---|---|---|---|
| Brackendale Road, Camberley, Surrey, GU15 | £ 1,200,000 | BUY | 7 / 10 | 0.00 KM |
| Heatherdale Road, Camberley, Surrey | £ 1,250,000 | BUY | 7 / 10 | 0.05 KM |
| Brackendale Road, Camberley, Surrey, GU15 | £ 160,000 | BUY | 5 / 10 | 0.16 KM |
| Heatherdale Road, Camberley | £ 800,000 | BUY | 7 / 10 | 0.20 KM |
| Brackendale Road, Camberley | £ 1,100,000 | BUY | 7 / 10 | 0.20 KM |
Nearby Properties
| Address | Price | Distance |
|---|---|---|
| 1 Longford Close | £ 1,020,000 | 0.06 KM |
| 3 Longford Close | £ 450,000 | 0.06 KM |
| 4 Longford Close | £ 550,000 | 0.06 KM |
| 11 Oriel Hill | £ 250,000 | 0.09 KM |
| 1 Oriel Hill | £ 687,500 | 0.09 KM |