Mwrog Street, Ruthin
By Cavendish Residential
£ 190,000
Reviews
3 out of 5 stars
Cavendish Residential says ..
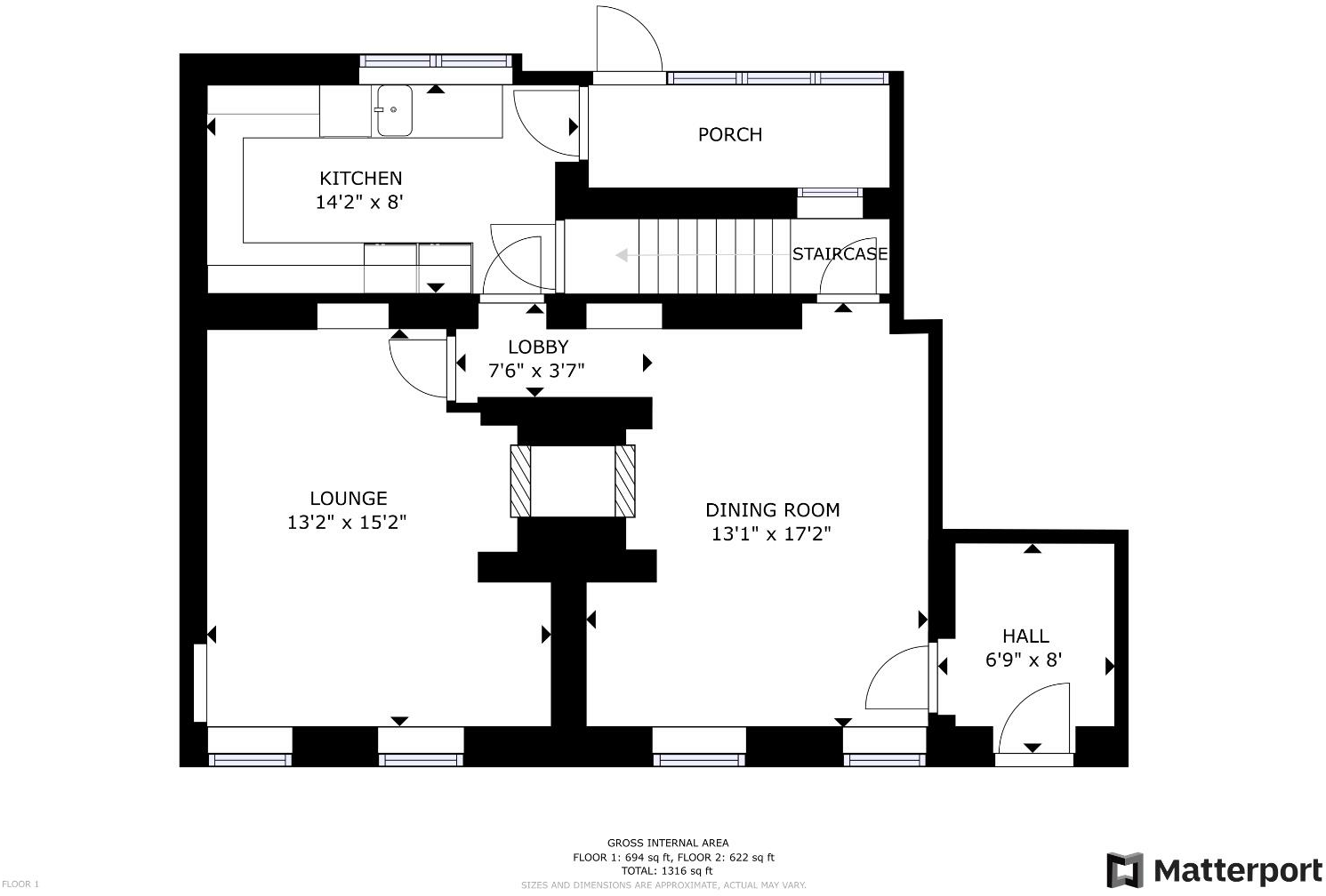
AN ATTRACTIVE DOUBLE FRONTED TWO BEDROOM MID TERRACED HOUSE standing in a conservation area to the centre of this highly regarded residential suburb about 0.5 miles from Ruthin town centre. Having well proportioned living rooms and two large double bedrooms, one with loft room over, it also has l...
Property Oracle says ..
This two-bedroom terraced house on Mwrog Street in Ruthin, Denbighshire, offers a blend of charm and potential. Located in a conservation area, it benefits from a possibly attractive setting within the town. The property features exposed beams and what seems to be a good size garden, which requires maintenance. The interior shows a lived-in style; the kitchen in particular showing its age. Some modernisation would likely increase its market appeal. The property is priced at £190,000, falling within the range of similar properties in the area though a precise comparison is difficult without accurate square footage data for comparable properties. Overall, it presents a reasonable investment opportunity, particularly for buyers who are prepared to undertake some improvements.
Therefore, we give this property 6 / 10. *Disclaimer: This is our option and does constitute a recommendation or financial advice. Do your own research. *
- Price
- 7
- Condition
- 6
- Location
- 7
- Land
- 4
- Bedrooms
- 2
- Bathrooms
- 1
- Sqft (est)
- 1,316.00
The heatmap indicates the level of crime in the area. The color of the heatmap indicates the crime severity and recency.
Metrics Year-on-Year
- Average area value
- 326,418.00 £Decreased by 0.78 %
- Est sale value
- 439,544.00 £Increased by 1.52 %
- Average area rental value
- 1,459.00 £/moIncreased by 29.46 %
- Est letting value
- 1,316.00 £/moUnchanged by 0.00 %
- Est rental Yield
- 5.36 %Increased by 30.41 %
- Crime Rate
- 2.00 %Unchanged by 0.00 %
Agent Activity
Cavendish Residential created the listing.
Nearby Schools
| Name | Type | Ofsted | Distance |
|---|---|---|---|
| Borthyn V.C. Primary School | Welsh Establishment | 0.77 KM | |
| Ysgol Pen Barras | Welsh Establishment | 2.28 KM | |
| Rhos Street C.P. School | Welsh Establishment | 2.38 KM | |
| Ruthin School | Welsh Establishment | 2.80 KM | |
| Ysgol Brynhyfryd | Welsh Establishment | 2.99 KM |
Images
Nearby Streets
| Name | Average Price | Average Sqft | Distance |
|---|---|---|---|
| Stryd Y Wylan | £ 255,000 | 0 | 0.00 KM |
| Castle Street | £ 425,000 | 0 | 0.00 KM |
| Hen Lôn Parcwr | £ 0 | 0 | 0.00 KM |
| Tan-y-Castell | £ 0 | 0 | 0.00 KM |
| Ffordd yr Ysgol | £ 0 | 0 | 0.00 KM |
Nearby Listings
| Address | Price | Type | Score | Distance |
|---|---|---|---|---|
| Mwrog Street, Ruthin | £ 190,000 | BUY | 6 / 10 | 0.00 KM |
| Llanfwrog, Ruthin, Denbighshire | £ 500,000 | BUY | 7 / 10 | 0.19 KM |
| Ffordd Plas Newydd Ruthin | £ 285,000 | BUY | 6 / 10 | 0.21 KM |
| Llanfwrog | £ 585,000 | BUY | 7 / 10 | 0.28 KM |
| Llanfwrog, Ruthin | £ 499,950 | BUY | 7 / 10 | 0.28 KM |
Nearby Properties
| Address | Price | Distance |
|---|---|---|
| 153 Mwrog Street | £ 136,900 | 0.12 KM |
| 125 Mwrog Street | £ 151,250 | 0.12 KM |
| 135 Mwrog Street | £ 122,000 | 0.12 KM |
| 147 Mwrog Street | £ 145,000 | 0.12 KM |
| Hafan Eryri | £ 322,500 | 0.12 KM |