Edge View Crescent, Merrymans Lane, Alderley Edge
By Jordan Fishwick
£ 499,995
Reviews
3 out of 5 stars
Jordan Fishwick says ..
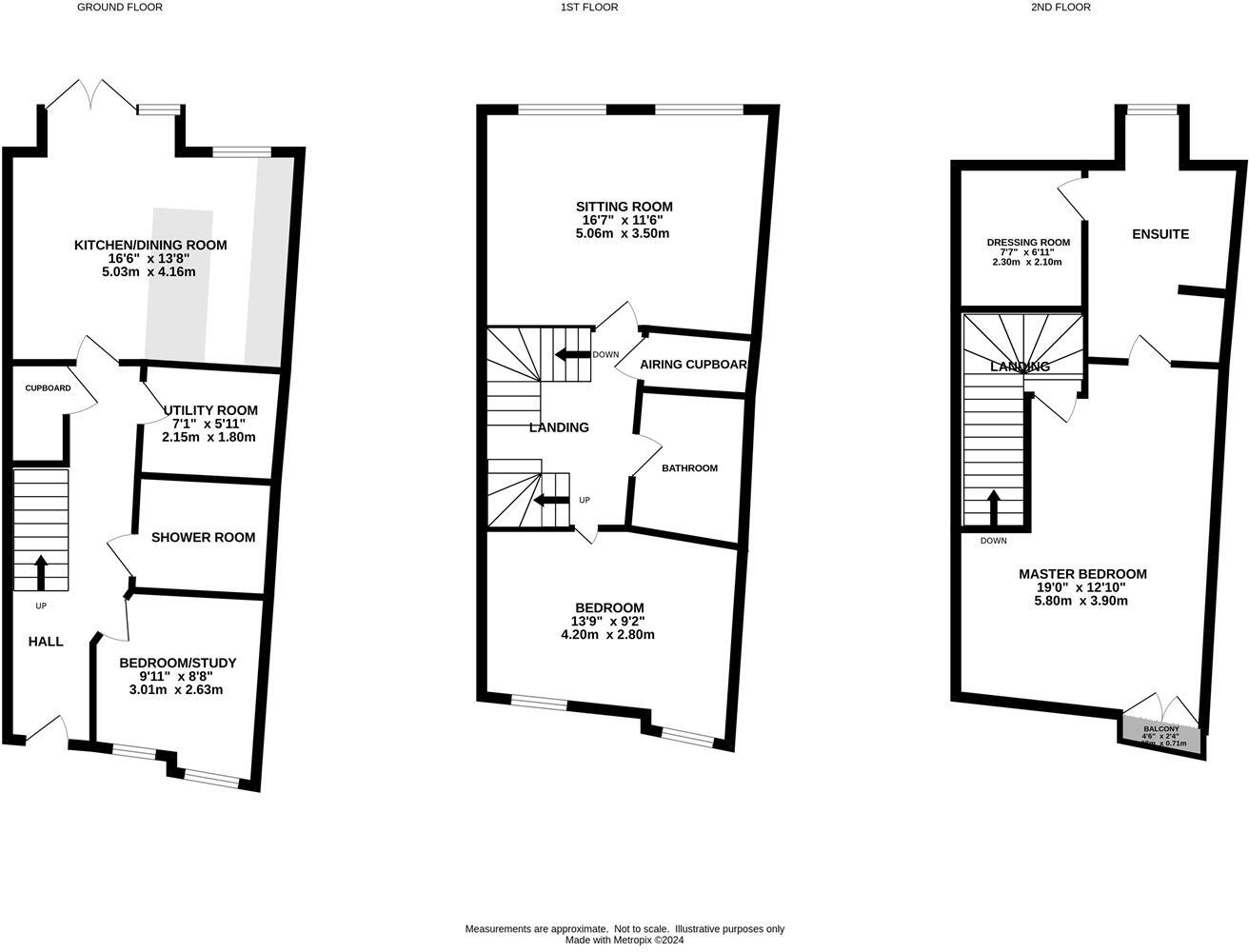
Surrounded by open countryside but only minutes from Alderley Edge and Wilmslow is this three bedroom END townhouse on this small and select gated development. With underground parking along with communal gardens these town houses offer a wealth of modern and contemporary features including under...
Property Oracle says ..
This property is a modern three bedroom terraced house located in Alderley Edge, Cheshire. The property benefits from a modern fitted kitchen and three bathrooms. There is also allocated parking. The location is excellent, with good schools and transport links nearby. However, the plot size is very small.
Therefore, we give this property 7 / 10. *Disclaimer: This is our option and does constitute a recommendation or financial advice. Do your own research. *
- Price
- 6
- Condition
- 10
- Location
- 9
- Land
- 3
- Bedrooms
- 3
- Bathrooms
- 3
- Sqft (est)
- 980.27
The heatmap indicates the level of crime in the area. The color of the heatmap indicates the crime severity and recency.
Metrics Year-on-Year
- Average area value
- 607,999.00 £Decreased by 19.74 %
- Est sale value
- 417,595.02 £Decreased by 8.58 %
- Average area rental value
- 1,708.00 £/moDecreased by 59.57 %
- Est letting value
- 980.27 £/moDecreased by 50.00 %
- Est rental Yield
- 3.37 %Decreased by 49.63 %
- Crime Rate
- 0.00 %
Agent Activity
Jordan Fishwick created the listing.
Nearby Schools
| Name | Type | Ofsted | Distance |
|---|---|---|---|
| David Lewis School | Non-maintained Special School | Good | 1.77 KM |
| The David Lewis Centre | Special Post 16 Institution | Outstanding | 1.77 KM |
| Chelford Cofe Primary School | Voluntary Controlled School | Good | 2.61 KM |
| Lindow Community Primary School | Community School | Good | 2.73 KM |
| The Ryleys School | Other Independent School | 3.17 KM |
Images
Nearby Transport
| Name | NLC | TLC | Distance |
|---|---|---|---|
| Chelford (Cheshire) | 2764 | CEL | 2.57 KM |
| Alderley Edge | 2760 | ALD | 3.96 KM |
| Wilmslow | 2774 | WML | 6.28 KM |
| Styal | 2868 | SYA | 7.18 KM |
| Mobberley | 2849 | MOB | 8.20 KM |
Nearby Listings
| Address | Price | Type | Score | Distance |
|---|---|---|---|---|
| Edge View Crescent, Merrymans Lane, Alderley Edge | £ 499,995 | BUY | 7 / 10 | 0.00 KM |
| Merrymans Lane, Alderley Edge, Cheshire, SK9 | £ 500,000 | BUY | 8 / 10 | 0.01 KM |
| Edge View Crescent, Merrymans Lane, Alderley Edge | £ 595,000 | BUY | 8 / 10 | 0.03 KM |
| Edge View Crescent, Merrymans Lane, Alderley Edge | £ 550,000 | BUY | 7 / 10 | 0.03 KM |
| Edge View Crescent, Merrymans Lane, Alderley Edge | £ 550,000 | BUY | 8 / 10 | 0.15 KM |
Nearby Properties
| Address | Price | Distance |
|---|---|---|
| Dane Villa Farm | £ 1,095,000 | 0.58 KM |
| Swan Bank | £ 770,000 | 0.58 KM |
| Manorfield | £ 425,000 | 0.58 KM |
| Beyond The Edge | £ 2,900,000 | 0.58 KM |
| Kynnersley | £ 685,000 | 0.58 KM |