Old Farm Road, West Drayton, UB7
By Kearns Residential
£ 485,000
Reviews
3 out of 5 stars
Kearns Residential says ..
A fantastic three-bedroom end of terrace town house, within easy walking distance of West Drayton Station.
Property Oracle says ..
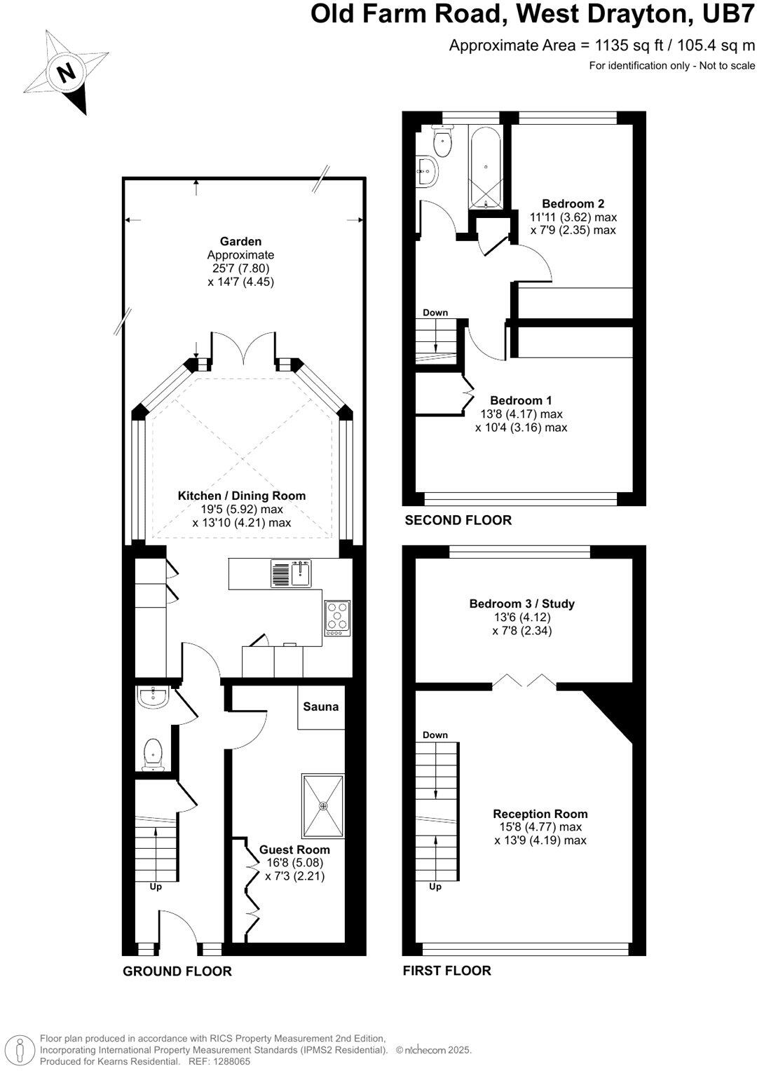
This property is a 3-bedroom, 2-bathroom end of terrace house located in West Drayton, UB7 7LE. The list price is £485,000, and the property has 1,356.20 sqft of living space and a 1,135 sqft plot. The average house price in the area is £497,214, with an average price per sqft of £451. The property benefits from being close to several schools, including St Catherine Catholic Primary School (Good Ofsted rating) and West Drayton Academy (Good Ofsted rating), and is also conveniently located near West Drayton train station providing links to London. The property includes a conservatory and a garden, which adds to its appeal. While some minor cosmetic upgrades could enhance its presentation, the property appears to be generally well-maintained and in good condition. Considering the location, size, and amenities, the asking price appears reasonable compared to similar properties in the area.
Therefore, we give this property 7 / 10. *Disclaimer: This is our option and does constitute a recommendation or financial advice. Do your own research. *
- Price
- 7
- Condition
- 7
- Location
- 8
- Land
- 7
- Bedrooms
- 3
- Bathrooms
- 2
- Sqft (est)
- 1,356.20
- Lot (est)
- 1,135.00
The heatmap indicates the level of crime in the area. The color of the heatmap indicates the crime severity and recency.
Metrics Year-on-Year
- Average area value
- 446,667.00 £Increased by 5.47 %
- Est sale value
- 760,828.20 £Increased by 26.35 %
- Average area rental value
- 1,473.00 £/moDecreased by 14.21 %
- Est letting value
- 1,356.20 £/moUnchanged by 0.00 %
- Est rental Yield
- 3.96 %Decreased by 18.69 %
- Crime Rate
- 10.00 %Unchanged by 0.00 %
Agent Activity
Kearns Residential created the listing.
Nearby Schools
| Name | Type | Ofsted | Distance |
|---|---|---|---|
| St Catherine Catholic Primary School | Voluntary Aided School | Good | 0.39 KM |
| Laurel Lane Primary School | Academy Sponsor Led | Good | 0.73 KM |
| St Matthew'S Cofe Primary School | Academy Converter | Requires improvement | 0.86 KM |
| St Martin'S Church Of England Primary School | Academy Sponsor Led | Good | 0.89 KM |
| West Drayton Academy | Academy Converter | Good | 1.02 KM |
Images
Nearby Streets
| Name | Average Price | Average Sqft | Distance |
|---|---|---|---|
| Avenue Close | £ 0 | 0 | 0.00 KM |
| St Martin's Close | £ 0 | 0 | 0.00 KM |
| Y8 | £ 0 | 0 | 0.00 KM |
| Queens Road | £ 0 | 0 | 0.00 KM |
| Mayfield Park | £ 0 | 0 | 0.00 KM |
Nearby Transport
| Name | NLC | TLC | Distance |
|---|---|---|---|
| West Drayton | 3174 | WDT | 0.64 KM |
| Iver | 3170 | IVR | 3.45 KM |
| Heathrow Terminal 5 | 9846 | HWV | 4.27 KM |
| Heathrow Terminals 2 And 3 (Rail Station Only) | 7090 | HXX | 4.46 KM |
| Hayes And Harlington | 3186 | HAY | 6.09 KM |
Nearby Listings
| Address | Price | Type | Score | Distance |
|---|---|---|---|---|
| Old Farm Road, West Drayton | £ 425,000 | BUY | 5 / 10 | 0.02 KM |
| Old Farm Road, West Drayton, UB7 | £ 950,000 | BUY | 5 / 10 | 0.10 KM |
| Old Farm Road, West Drayton | £ 440,000 | BUY | Unknown | 0.11 KM |
| The Green, West Drayton | £ 745,000 | BUY | 6 / 10 | 0.13 KM |
| The Green, West Drayton | £ 435,000 | BUY | 7 / 10 | 0.14 KM |
Nearby Properties
| Address | Price | Distance |
|---|---|---|
| 44 Swan Road | £ 510,000 | 0.08 KM |
| 60 Swan Road | £ 240,000 | 0.08 KM |
| 68 Swan Road | £ 372,000 | 0.08 KM |
| 43 Swan Road | £ 415,000 | 0.08 KM |
| 56 Swan Road | £ 400,000 | 0.08 KM |