Seymours says ..
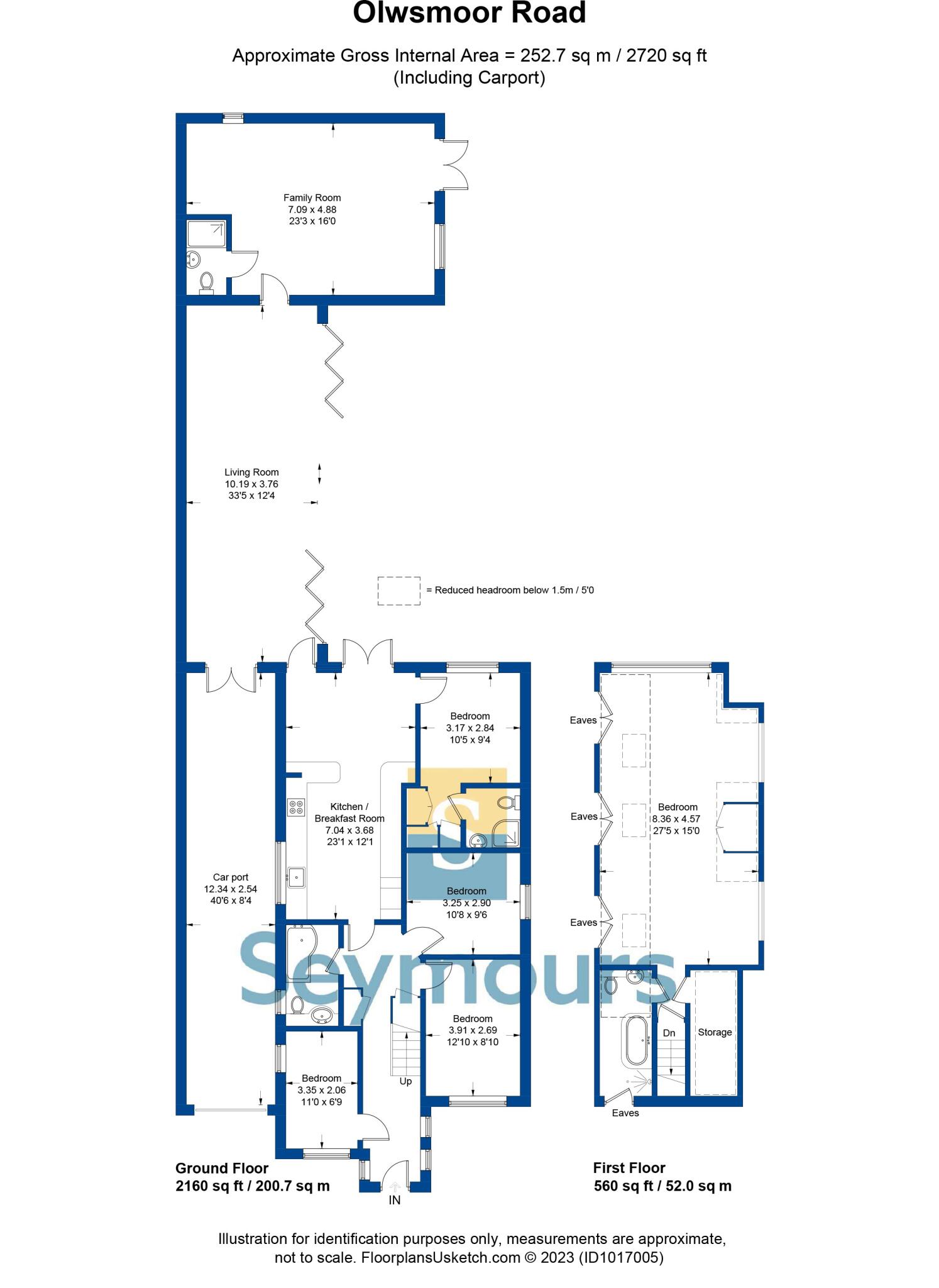
A very deceptively spacious detached chalet which offers wonderful living space as well as five double bedrooms and two bathrooms. The property also includes a large office which could easily be used as an annex and there is a fabulous Living room which is 10 metres in length and has bifold doors...
Property Oracle says ..
Therefore, we give this property 6 / 10. *Disclaimer: This is our option and does constitute a recommendation or financial advice. Do your own research. *
- Price
- 6
- Condition
- 7
- Location
- 7
- Land
- 7
- Bedrooms
- 5
- Bathrooms
- 4
- Sqft (est)
- 2,720.00
The heatmap indicates the level of crime in the area. The color of the heatmap indicates the crime severity and recency.
Metrics Year-on-Year
- Average area value
- 217,143.00 £Decreased by 10.70 %
- Est sale value
- 669,120.00 £Decreased by 12.14 %
- Average area rental value
- 1,267.00 £/moIncreased by 25.57 %
- Est letting value
- 2,720.00 £/moUnchanged by 0.00 %
- Est rental Yield
- 7.00 %Increased by 40.56 %
- Crime Rate
- 12.00 %Unchanged by 0.00 %
from 243,173.00 £
from 761,600.00 £
from 1,009.00 £/mo
from 2,720.00 £/mo
from 4.98 %
from 12.00 %
Agent Activity
Seymours created the listing.
Nearby Schools
| Name | Type | Ofsted | Distance |
|---|---|---|---|
| Owlsmoor Primary School | Community School | Good | 0.65 KM |
| College Town Primary School | Community School | Good | 0.71 KM |
| Alders And Chestnuts Children'S Centre | Children's Centre | 0.76 KM | |
| Wildmoor Heath School | Academy Converter | 1.47 KM | |
| Edgbarrow School | Academy Converter | 1.80 KM |
Images
Nearby Streets
| Name | Average Price | Average Sqft | Distance |
|---|---|---|---|
| Owlsmoor Road | £ 525,000 | 0 | 0.00 KM |
| The Greenway | £ 0 | 0 | 0.00 KM |
| Faversham Road | £ 0 | 0 | 0.00 KM |
| The Greenway | £ 475,000 | 0 | 0.00 KM |
| Alexander Close | £ 275,000 | 0 | 0.00 KM |
Nearby Transport
| Name | NLC | TLC | Distance |
|---|---|---|---|
| Blackwater | 5625 | BAW | 2.34 KM |
| Sandhurst (Berks) | 5646 | SND | 2.58 KM |
| Crowthorne | 5628 | CRN | 4.46 KM |
| Camberley | 5682 | CAM | 4.50 KM |
| Frimley | 5683 | FML | 5.90 KM |
Nearby Listings
| Address | Price | Type | Score | Distance |
|---|---|---|---|---|
| Owlsmoor Road, Owlsmoor | £ 700,000 | BUY | 6 / 10 | 0.00 KM |
| Owlsmoor Road, Sandhurst, Berkshire, GU47 | £ 625,000 | BUY | 7 / 10 | 0.03 KM |
| Owlsmoor Road, Sandhurst, Berkshire, GU47 | £ 700,000 | BUY | 7 / 10 | 0.03 KM |
| Owlsmoor Road, Sandhurst, Berkshire, GU47 | £ 625,000 | BUY | 7 / 10 | 0.03 KM |
| Hormer Close, Owlsmoor, Sandhurst | £ 500,000 | BUY | 6 / 10 | 0.10 KM |
Nearby Properties
| Address | Price | Distance |
|---|---|---|
| 53 Comyns Court | £ 175,000 | 0.08 KM |
| 63 Owlsmoor Road | £ 520,000 | 0.08 KM |
| 53 Owlsmoor Road | £ 139,950 | 0.08 KM |
| 57 Comyns Court | £ 200,000 | 0.11 KM |
| 55 Comyns Court | £ 175,950 | 0.11 KM |