Dingley Place, Old Street, EC1
UR

Dingley Place, Old Street, EC1

By Urban Spaces

£ 1,250,000

Reviews

3 out of 5 stars

Urban Spaces says ..

An authentic, two bedroom loft apartment arranged laterally over the first floor of this iconic warehouse development just of City Road and within easy reach of the City, Islington and fashionable Hoxton.

Property Oracle says ..

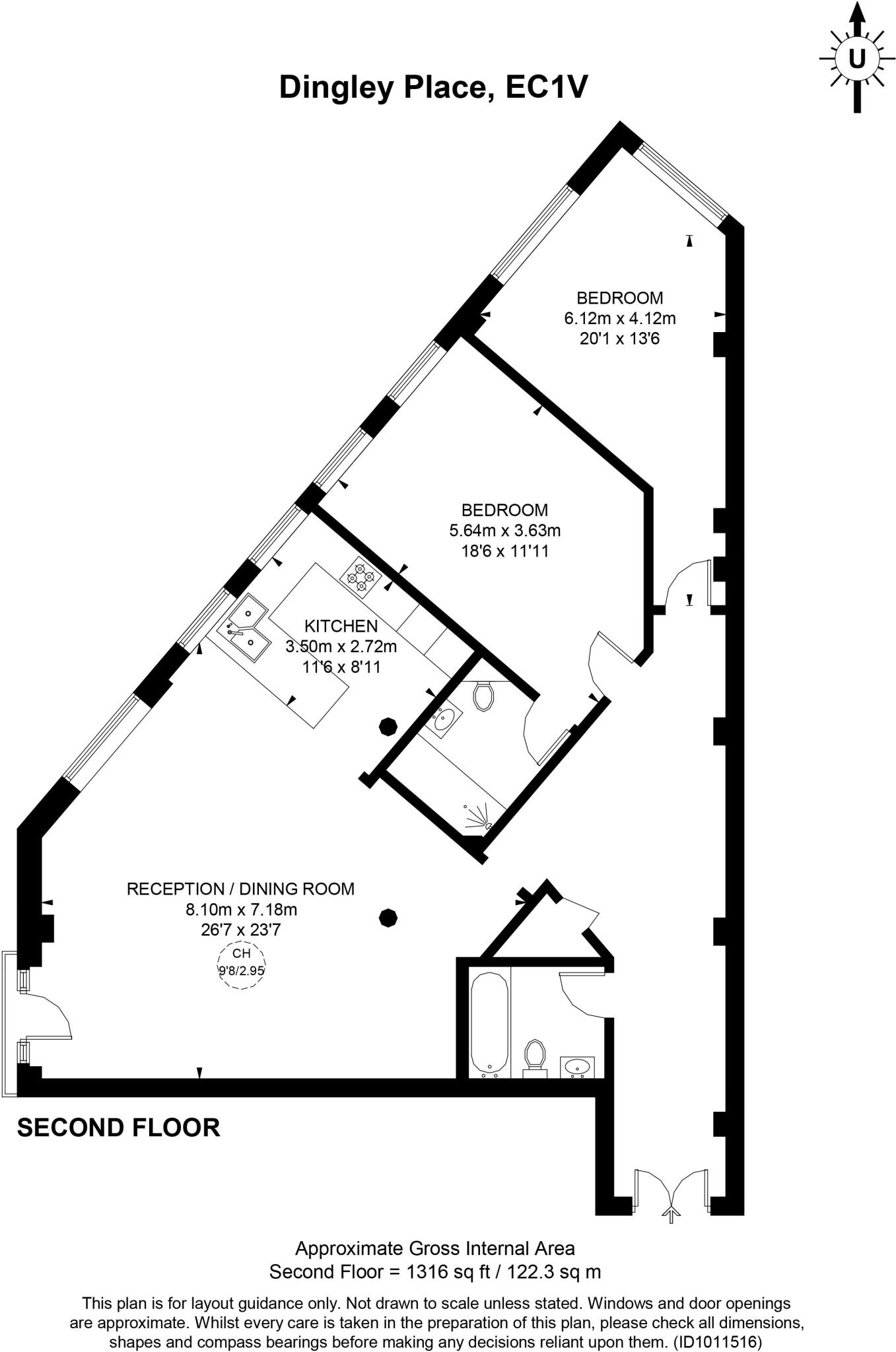
This property is a 2 bedroom, 2 bathroom flat located in the trendy and vibrant Old Street area of London. The property benefits from an excellent location, with multiple transport links nearby, including Old Street underground station (0.62km) and several bus routes. There are also several highly-rated schools within a short distance, making it ideal for families. The flat itself is modern and well-presented, featuring an open-plan living area with high ceilings and exposed brickwork, creating a spacious and stylish feel. The kitchen is modern and well-equipped, and the bathrooms are contemporary. The property is in excellent condition and has been recently renovated. There is no outdoor space. The price is slightly above the average for the area, however, given the property’s size, condition, and location, it represents good value for money.

Therefore, we give this property 7 / 10. *Disclaimer: This is our option and does constitute a recommendation or financial advice. Do your own research. *

Price
8
Condition
9
Location
10
Land
1
Bedrooms
2
Bathrooms
2
Sqft (est)
1,316.43

The heatmap indicates the level of crime in the area. The color of the heatmap indicates the crime severity and recency.

Metrics Year-on-Year

Average area value
822,600.00 £
Decreased by 14.86 %
from 966,215.00 £
Est sale value
1,266,405.66 £
Decreased by 24.73 %
from 1,682,397.54 £
Average area rental value
3,099.00 £/mo
Increased by 2.99 %
from 3,009.00 £/mo
Est letting value
3,949.29 £/mo
Unchanged by 0.00 %
from 3,949.29 £/mo
Est rental Yield
4.52 %
Increased by 20.86 %
from 3.74 %
Crime Rate
7.00 %
Unchanged by 0.00 %
from 7.00 %

Agent Activity

  • Urban Spaces created the listing.

Nearby Schools

NameTypeOfstedDistance
St Luke'S Cofe Primary SchoolVoluntary Aided SchoolGood0.25 KM
New Regent'S CollegePupil Referral UnitGood0.43 KM
Royal Mencap SocietySpecial Post 16 InstitutionRequires improvement0.50 KM
Thomas Fairchild Satellite Children'S CentreChildren's Centre Linked Site0.53 KM
City Of London Primary Academy, IslingtonFree SchoolsOutstanding0.59 KM

Images

September 2023 (13).jpg September 2023 (23).jpg September 2023 (21).jpg September 2023 (3).jpg September 2023 (17).jpg September 2023 (20).jpg September 2023 (12).jpg September 2023 (11).jpg September 2023 (8).jpg September 2023 (15).jpg May 2021 (3).jpg May 2021 (4).jpg September 2023 (25).jpg September 2023 (2).jpg September 2023 (4).jpg May 2021 (15).jpg September 2023 (22).jpg September 2023 (16).jpg May 2021 (19).jpg September 2023 (24).jpg

Nearby Streets

NameAverage PriceAverage SqftDistance
City Road £ 000.00 KM
Thoresby Street £ 385,00000.00 KM
Bollinder Place £ 000.00 KM
Shepherdess Walk £ 820,00000.00 KM
Lizard Street £ 850,00000.00 KM

Nearby Transport

NameNLCTLCDistance
Old Street6003OLD0.62 KM
Moorgate6005MOG1.18 KM
Essex Road6004EXR1.45 KM
Farringdon577ZFD1.54 KM
Liverpool Street6965LST1.75 KM

Nearby Listings

AddressPriceTypeScoreDistance
Dingley Place, Old Street, EC1 £ 1,250,000BUY7 / 100.00 KM
Dingley Place, EC1V £ 1,250,000BUY8 / 100.00 KM
Dingley Place, EC1V £ 1,375,000BUY6 / 100.00 KM
Dingley Place, EC1V £ 1,100,000BUY6 / 100.01 KM
Dingley Place, London, EC1V £ 995,000BUY7 / 100.01 KM

Nearby Properties

AddressPriceDistance
1 Dingley Place £ 995,0000.04 KM
4 Dingley Place £ 1,000,0000.04 KM
152 Lever Street £ 1,060,0000.20 KM
6 Bath Street £ 665,0000.21 KM
16c Shepherdess Walk £ 900,0000.25 KM