ST
Coleman Lodge, Aldridge
By Stratton & King Ltd
£ 285,000
Reviews
3 out of 5 stars
Stratton & King Ltd says ..
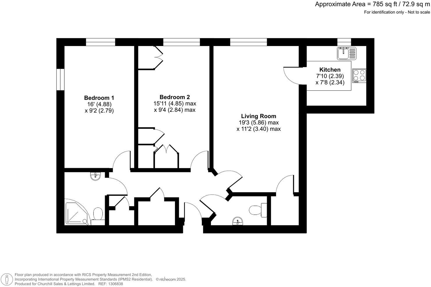
DRAFT PARTICULARS - Awaiting verification from the seller **TWO BEDROOM GROUND FLOOR RETIREMENT APARTMENT** Churchill Sales & Lettings are delighted to be marketing this lovely two bedroom apartment. The property provides spacious accommodation and is presented in good order thr...
Property Oracle says ..
Therefore, we give this property 6 / 10. *Disclaimer: This is our option and does constitute a recommendation or financial advice. Do your own research. *
- Price
- 7
- Condition
- 8
- Location
- 7
- Land
- 4
- Bedrooms
- 2
- Bathrooms
- 2
- Sqft (est)
- 785.00
The heatmap indicates the level of crime in the area. The color of the heatmap indicates the crime severity and recency.
Metrics Year-on-Year
- Average area value
- 364,091.00 £Increased by 2.77 %
- Est sale value
- 243,350.00 £Increased by 4.38 %
- Average area rental value
- 1,098.00 £/moDecreased by 32.01 %
- Est letting value
- 0.00 £/moDecreased by 100.00 %
- Est rental Yield
- 3.62 %Decreased by 33.82 %
- Crime Rate
- 16.00 %Unchanged by 0.00 %
from 354,293.00 £
from 233,145.00 £
from 1,615.00 £/mo
from 785.00 £/mo
from 5.47 %
from 16.00 %
Agent Activity
Stratton & King Ltd created the listing.
Nearby Schools
| Name | Type | Ofsted | Distance |
|---|---|---|---|
| Leighswood Sure Start Children'S Centre | Children's Centre Linked Site | 0.66 KM | |
| Cooper And Jordan Church Of England Primary School | Voluntary Aided School | Good | 0.68 KM |
| Leighswood School | Community School | Good | 0.74 KM |
| St Mary Of The Angels Catholic Primary School | Voluntary Aided School | Good | 0.80 KM |
| St Francis Of Assisi Catholic College | Voluntary Aided School | Good | 0.96 KM |
Images
Nearby Streets
| Name | Average Price | Average Sqft | Distance |
|---|---|---|---|
| Belmont Close | £ 330,000 | 0 | 0.00 KM |
| Greenfields | £ 0 | 0 | 0.00 KM |
| Birch Tree Gardens | £ 607,500 | 0 | 0.00 KM |
| The Green | £ 750,000 | 0 | 0.00 KM |
| Appletree Grove | £ 495,000 | 0 | 0.00 KM |
Nearby Transport
| Name | NLC | TLC | Distance |
|---|---|---|---|
| Walsall | 1216 | WSL | 7.86 KM |
| Blake Street | 1176 | BKT | 7.96 KM |
| Hamstead (Birmingham) | 1145 | HSD | 8.40 KM |
| Tame Bridge Parkway | 1010 | TAB | 8.79 KM |
| Butlers Lane | 1179 | BUL | 8.85 KM |
Nearby Listings
| Address | Price | Type | Score | Distance |
|---|---|---|---|---|
| Coleman Lodge, Aldridge | £ 285,000 | BUY | 6 / 10 | 0.00 KM |
| Coleman Lodge, Aldridge, Walsall | £ 225,000 | BUY | Unknown | 0.03 KM |
| Coleman Lodge, Walsall | £ 275,000 | BUY | 5 / 10 | 0.03 KM |
| Little Aston Road, Aldridge, Walsall | £ 265,000 | BUY | Unknown | 0.03 KM |
| Coleman Lodge, Little Aston Road - Beautifully Presented Flat | £ 275,000 | BUY | Unknown | 0.04 KM |
Nearby Properties
| Address | Price | Distance |
|---|---|---|
| 10 Northgate | £ 160,000 | 0.09 KM |
| 12 Northgate | £ 385,000 | 0.09 KM |
| 17 Northgate | £ 239,000 | 0.09 KM |
| 21 Northgate | £ 234,950 | 0.10 KM |
| 18 Northgate | £ 220,000 | 0.10 KM |