Henry Darlot Drive, Mill Hill
By Real Estates
£ 1,250,000
Reviews
3 out of 5 stars
Real Estates says ..
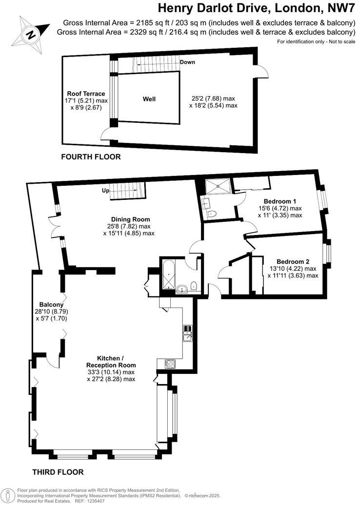
Real Estates are delighted to offer for sale this exceptional double-height vaulted penthouse duplex apartment located on its own private floor which offers over 2,000 sq ft of meticulously designed living space, featuring 3 spacious bedrooms and sweeping 360-degree panoramic views of London. The...
Property Oracle says ..
This property is a modern, stylish apartment located in Mill Hill, Barnet. The images showcase a contemporary interior with a spacious open-plan living area, a well-equipped modern kitchen, and two modern bathrooms. The apartment seems to benefit from large windows offering ample natural light and potentially good views. A key feature is the private roof terrace, ideal for outdoor entertaining and relaxation. The building’s exterior is also modern and well-maintained, as seen in the provided photographs. The location in Mill Hill places it within a generally desirable and well-regarded residential area known for its schools and access to green spaces. However, the lack of details regarding the immediate surroundings of the property and the absence of a garden or private outside space beyond the roof terrace limits a more definitive assessment. The listing price is in line with expectations for a high-quality apartment of this size and standard in the local area; nevertheless, confirmation using more detailed comparative data is needed to fully verify this.
Therefore, we give this property 6 / 10. *Disclaimer: This is our option and does constitute a recommendation or financial advice. Do your own research. *
- Price
- 7
- Condition
- 9
- Location
- 7
- Land
- 1
- Bedrooms
- 3
- Bathrooms
- 2
- Sqft (est)
- 2,329.00
The heatmap indicates the level of crime in the area. The color of the heatmap indicates the crime severity and recency.
Metrics Year-on-Year
- Average area value
- 696,062.00 £Decreased by 2.02 %
- Est sale value
- 1,208,751.00 £Decreased by 10.05 %
- Average area rental value
- 2,443.00 £/moDecreased by 15.35 %
- Est letting value
- 2,329.00 £/moDecreased by 50.00 %
- Est rental Yield
- 4.21 %Decreased by 13.55 %
- Crime Rate
- 3.00 %Unchanged by 0.00 %
Agent Activity
Real Estates created the listing.
Nearby Schools
| Name | Type | Ofsted | Distance |
|---|---|---|---|
| Millbrook Park Primary School | Academy Sponsor Led | Good | 0.48 KM |
| Frith Manor Primary School | Community School | Good | 0.63 KM |
| St Mary'S Cofe Primary School | Voluntary Aided School | Outstanding | 1.42 KM |
| St Vincent'S Catholic Primary School | Voluntary Aided School | Good | 1.80 KM |
| Finchley And Acton Yochien School | Other Independent School | Good | 1.83 KM |
Images
Nearby Streets
| Name | Average Price | Average Sqft | Distance |
|---|---|---|---|
| Inglis Way | £ 0 | 0 | 0.00 KM |
| Harewood Avenue | £ 0 | 0 | 0.00 KM |
| School House Lane | £ 419,500 | 0 | 0.00 KM |
| Vinca Mews | £ 0 | 0 | 0.00 KM |
| Brittacy Hill | £ 477,667 | 0 | 0.00 KM |
Nearby Transport
| Name | NLC | TLC | Distance |
|---|---|---|---|
| Mill Hill Broadway | 1527 | MIL | 4.60 KM |
| Hendon | 1522 | HEN | 5.10 KM |
| Oakleigh Park | 6020 | OKL | 5.28 KM |
| New Barnet | 6018 | NBA | 5.43 KM |
| Cricklewood | 1519 | CRI | 6.21 KM |
Nearby Listings
| Address | Price | Type | Score | Distance |
|---|---|---|---|---|
| Henry Darlot Drive, Mill Hill East | £ 475,000 | BUY | 7 / 10 | 0.00 KM |
| Henry Darlot Drive, Mill Hill | £ 950,000 | BUY | 7 / 10 | 0.00 KM |
| Henry Darlot Drive, Mill Hill | £ 1,250,000 | BUY | 6 / 10 | 0.00 KM |
| Henry Darlot Drive, London, NW7 | £ 600,000 | BUY | 6 / 10 | 0.02 KM |
| Henry Darlot Drive, Mill Hill, NW7 | £ 1,000,000 | BUY | 7 / 10 | 0.02 KM |
Nearby Properties
| Address | Price | Distance |
|---|---|---|
| 6 Maurice Browne Avenue | £ 630,000 | 0.21 KM |
| 52 Thirleby Road | £ 530,000 | 0.24 KM |
| 2 Thirleby Road | £ 590,000 | 0.24 KM |
| 42 Thirleby Road | £ 555,000 | 0.24 KM |
| 8 Thirleby Road | £ 720,000 | 0.24 KM |