Plot 14, Monks Dyke Road Development, Louth
By TES Property (Lincolnshire) Limited
£ 219,995
Reviews
3 out of 5 stars
TES Property (Lincolnshire) Limited says ..
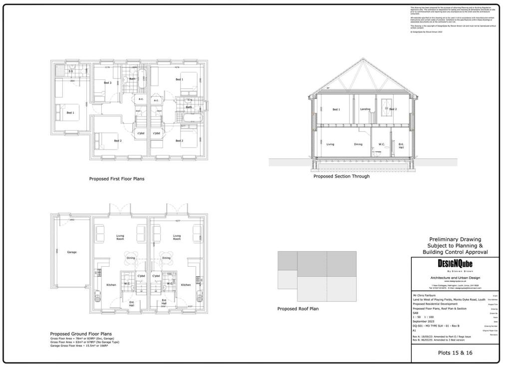
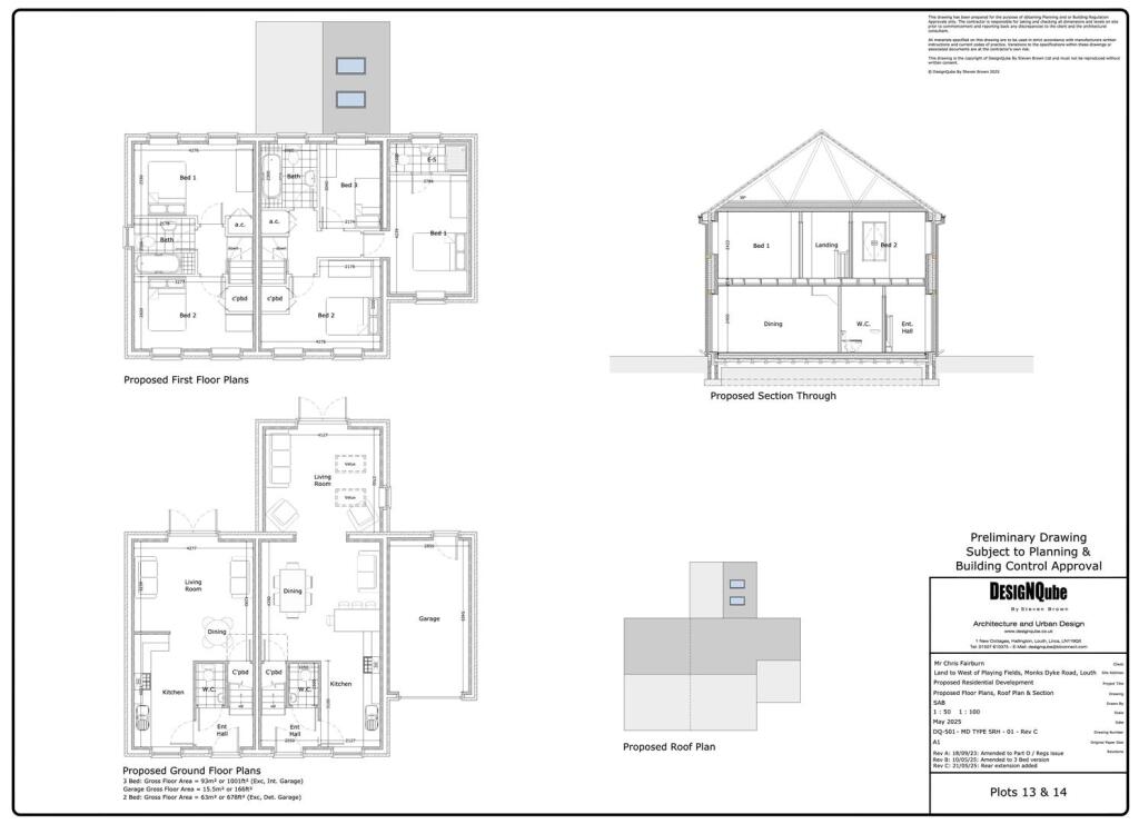
It is a pleasure for TES Property to offer for sale Plot 14, a luxury semi-detached house located on the Monks Dyke Road Development built by the well known C & L Fairburn Properties. This exclusive development offers a variety of semi-detached, mid terrace and end terrace properties, al...
Property Oracle says ..
This new build semi-detached house, located on the Monks Dyke Road Development in Louth, Lincolnshire, presents a potentially attractive option for buyers. The property boasts two bedrooms and two bathrooms, and from the images provided, appears to be finished to a high standard with a modern design. Its proximity to several schools including St Michael’s Church of England School (rated ‘Good’ by Ofsted) and Louth Academy, enhances its family-friendly appeal. The development’s location within close proximity to Orme Lane, which shows a higher average house price, further supports the desirability of the area. The inclusion of a rear garden, although of modest size, adds to the property’s appeal. While precise plot size information is missing, visual inspection of the provided images and floor plans indicates a manageable garden space. A comparative analysis of nearby listed properties suggests that the asking price is within the reasonable range for properties of this type and size in the vicinity. However, the absence of detailed information about transportation links and the lack of precise plot size details makes a complete evaluation difficult. Overall, it shows promise as a modern, well-located home. Buyers should independently verify all details and investigate transportation options thoroughly before making a final decision.
Therefore, we give this property 6 / 10. *Disclaimer: This is our option and does constitute a recommendation or financial advice. Do your own research. *
- Price
- 7
- Condition
- 8
- Location
- 7
- Land
- 4
- Bedrooms
- 2
- Bathrooms
- 2
- Sqft (est)
- 1,447.75
The heatmap indicates the level of crime in the area. The color of the heatmap indicates the crime severity and recency.
Metrics Year-on-Year
- Average area value
- 197,200.00 £Decreased by 6.39 %
- Est sale value
- 322,848.25 £Decreased by 6.69 %
- Average area rental value
- 547.00 £/moDecreased by 9.88 %
- Est letting value
- 0.00 £/mo
- Est rental Yield
- 3.33 %Decreased by 3.76 %
- Crime Rate
- 6.00 %Unchanged by 0.00 %
Agent Activity
TES Property (Lincolnshire) Limited created the listing.
Nearby Schools
| Name | Type | Ofsted | Distance |
|---|---|---|---|
| St Michael'S Church Of England School, Louth | Voluntary Controlled School | Good | 0.16 KM |
| Louth Academy | Academy Sponsor Led | 0.22 KM | |
| Louth Kidgate Primary Academy | Academy Converter | Outstanding | 0.51 KM |
| Eastfield Infants And Nursery Academy | Academy Converter | 0.72 KM | |
| Greenwich House School | Other Independent School | Good | 0.81 KM |
Images
Nearby Streets
| Name | Average Price | Average Sqft | Distance |
|---|---|---|---|
| Orme Lane | £ 256,424 | 0 | 0.00 KM |
| Priory Close | £ 239,950 | 0 | 0.00 KM |
| Tennyson Road | £ 172,000 | 0 | 0.00 KM |
| Millers Court | £ 0 | 0 | 0.00 KM |
| Railway Walk | £ 0 | 0 | 0.00 KM |
Nearby Listings
| Address | Price | Type | Score | Distance |
|---|---|---|---|---|
| Plot 14, Monks Dyke Road Development, Louth | £ 219,995 | BUY | 6 / 10 | 0.00 KM |
| Plot 11, Monks Dyke Road Development, Louth | £ 287,495 | BUY | 6 / 10 | 0.02 KM |
| Plot 21, Monks Dyke Road Development | £ 312,495 | BUY | 6 / 10 | 0.03 KM |
| Plot 23, Monks Dyke Road Development, Louth | £ 229,995 | BUY | 6 / 10 | 0.03 KM |
| Plot 25, Monks Dyke Road Development, Louth | £ 219,995 | BUY | 6 / 10 | 0.03 KM |
Nearby Properties
| Address | Price | Distance |
|---|---|---|
| 21 Monks Dyke Road | £ 86,000 | 0.05 KM |
| 27 Monks Dyke Road | £ 63,000 | 0.05 KM |
| 29 Little Lane | £ 28,250 | 0.13 KM |
| 23 Little Lane | £ 130,000 | 0.13 KM |
| 27 Little Lane | £ 118,750 | 0.13 KM |