JTM Homes says ..
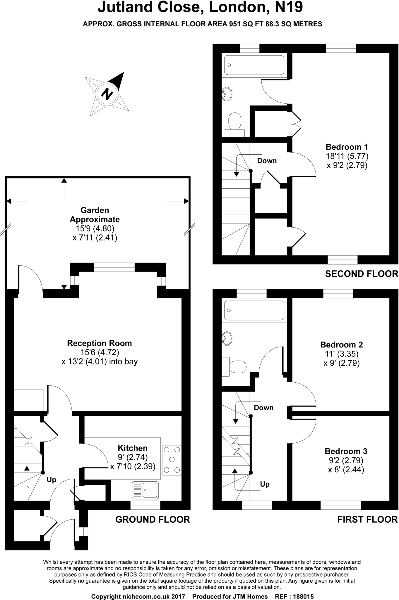
We are pleased to offer his spacious three storey, three double bedroom, two bathroom modern house. It is located optimally within a private gated development. In addition, this property is within a short walking distance of Archway Station (Northern Line) and Upper Holloway Station (Overground...
Property Oracle says ..
This three-bedroom, two-bathroom terraced house in Islington, London is listed at £775,000. The property benefits from a modern kitchen and bathrooms, and a small, manageable garden. The location is convenient, with good access to local schools and transportation links. However, the list price is significantly higher than the average price per square foot for the area. While the property is in good condition and has desirable features, the price may be considered high relative to comparable properties in the neighborhood.
Therefore, we give this property 6 / 10. *Disclaimer: This is our option and does constitute a recommendation or financial advice. Do your own research. *
- Price
- 5
- Condition
- 8
- Location
- 9
- Land
- 4
- Bedrooms
- 3
- Bathrooms
- 2
- Sqft (est)
- 624.03
- Lot (est)
- 951.00
The heatmap indicates the level of crime in the area. The color of the heatmap indicates the crime severity and recency.
Metrics Year-on-Year
- Average area value
- 770,833.00 £Increased by 10.52 %
- Est sale value
- 707,025.99 £Increased by 19.14 %
- Average area rental value
- 2,248.00 £/moDecreased by 5.39 %
- Est letting value
- 1,872.09 £/moUnchanged by 0.00 %
- Est rental Yield
- 3.50 %Decreased by 14.43 %
- Crime Rate
- 8.00 %Unchanged by 0.00 %
Agent Activity
JTM Homes created the listing.
Nearby Schools
| Name | Type | Ofsted | Distance |
|---|---|---|---|
| Duncombe Primary School | Community School | Good | 0.07 KM |
| St Mark'S Cofe Primary School | Voluntary Aided School | Good | 0.48 KM |
| Margaret Mcmillan Nursery School | Local Authority Nursery School | Good | 0.55 KM |
| Margaret Mcmillan Nursery School And Children'S Centre | Children's Centre | 0.55 KM | |
| City Of London Academy, Highgate Hill | Free Schools | 0.60 KM |
Images
Nearby Streets
| Name | Average Price | Average Sqft | Distance |
|---|---|---|---|
| Porter Square | £ 0 | 0 | 0.00 KM |
| Pegasus Court | £ 475,000 | 0 | 0.00 KM |
| Shaftesbury Road | £ 730,000 | 0 | 0.00 KM |
| Hillrise Mansions | £ 425,000 | 0 | 0.00 KM |
| Axminster Road | £ 0 | 0 | 0.00 KM |
Nearby Transport
| Name | NLC | TLC | Distance |
|---|---|---|---|
| Upper Holloway | 1524 | UHL | 0.74 KM |
| Crouch Hill | 7406 | CRH | 0.88 KM |
| Finsbury Park | 6119 | FPK | 1.99 KM |
| Harringay | 6012 | HGY | 2.36 KM |
| Hornsey | 6015 | HRN | 2.50 KM |
Nearby Listings
| Address | Price | Type | Score | Distance |
|---|---|---|---|---|
| Jutland Close, N19 | £ 775,000 | BUY | 6 / 10 | 0.00 KM |
| Jutland Close, London, N19 | £ 485,000 | BUY | 5 / 10 | 0.04 KM |
| Jutland Close, Sussex Way, London, N19 | £ 425,000 | BUY | 6 / 10 | 0.06 KM |
| Sussex Way, London, N19 | £ 550,000 | BUY | 8 / 10 | 0.08 KM |
| Fairbridge Road, London, N19 | £ 625,000 | BUY | 5 / 10 | 0.09 KM |
Nearby Properties
| Address | Price | Distance |
|---|---|---|
| 11 Jutland Close | £ 185,000 | 0.00 KM |
| 7 Jutland Close | £ 542,000 | 0.00 KM |
| 2 Jutland Close | £ 145,000 | 0.00 KM |
| 15 Jutland Close | £ 450,000 | 0.00 KM |
| 22 Jutland Close | £ 635,000 | 0.00 KM |