Grove Avenue, Leysdown-On-Sea, Sheerness
By James Perry Estate Agents
£ 110,000
Reviews
2 out of 5 stars
James Perry Estate Agents says ..
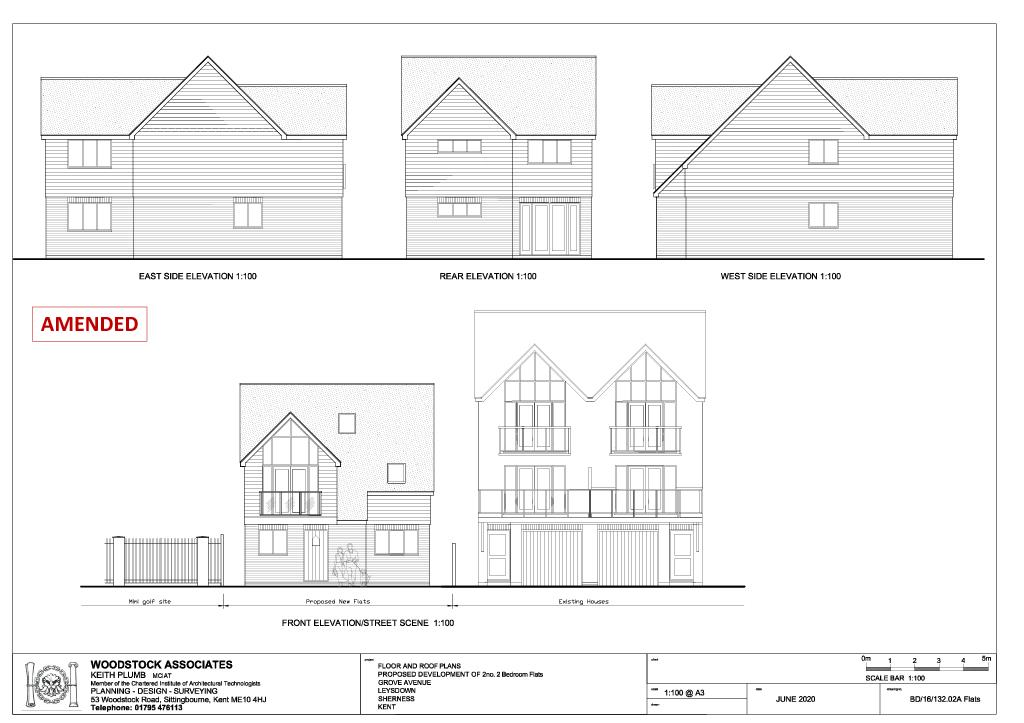
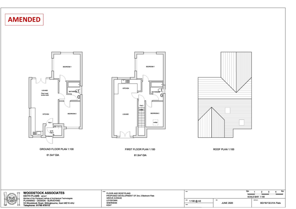
£110,000 Guide Price Full Planning Permission Granted on Grove Avenue in the charming coastal village of Leysdown-On-Sea, Sheerness, this exceptional building plot presents a remarkable opportunity for those looking to invest in a new development. With full planning permission already granted...
Property Oracle says ..
This is a plot of land in Leysdown-on-Sea with planning permission for two 2-bedroom flats. The location offers proximity to the beach, but is relatively far from schools and other amenities. The property requires full construction, so its current condition is poor. The price seems reasonable for a plot of land in this area with planning permission. This would be a good investment for someone looking to build new properties.
Therefore, we give this property 4 / 10. *Disclaimer: This is our option and does constitute a recommendation or financial advice. Do your own research. *
- Price
- 9
- Condition
- 1
- Location
- 5
- Land
- 1
- Bedrooms
- 2
- Bathrooms
- 1
The heatmap indicates the level of crime in the area. The color of the heatmap indicates the crime severity and recency.
Metrics Year-on-Year
- Average area value
- 325,889.00 £Decreased by 6.05 %
- Average area rental value
- 1,650.00 £/moDecreased by 17.50 %
- Est rental Yield
- 6.08 %Decreased by 12.14 %
- Crime Rate
- 83.00 %Unchanged by 0.00 %
Agent Activity
James Perry Estate Agents created the listing.
Nearby Schools
| Name | Type | Ofsted | Distance |
|---|---|---|---|
| Beaches Children'S Centre | Children's Centre | 1.35 KM | |
| Eastchurch Church Of England Primary School | Academy Converter | 6.91 KM | |
| Graveney Primary School | Academy Converter | Good | 8.88 KM |
| Queen Elizabeth'S Grammar School | Academy Converter | Outstanding | 9.53 KM |
| Davington Primary School | Community School | Good | 9.60 KM |
Images
Nearby Streets
| Name | Average Price | Average Sqft | Distance |
|---|---|---|---|
| The Promenade | £ 0 | 0 | 0.00 KM |
Nearby Listings
| Address | Price | Type | Score | Distance |
|---|---|---|---|---|
| Grove Avenue, Leysdown-On-Sea, Sheerness | £ 110,000 | BUY | 4 / 10 | 0.00 KM |
| Leysdown Road, Leysdown-On-Sea, Sheerness, Kent | £ 250,000 | BUY | 7 / 10 | 0.25 KM |
| Manor Way, Leysdown on Sea | £ 65,000 | BUY | 5 / 10 | 0.27 KM |
| Sheppey Beach Villas, Manor Way, Leysdown-on-Sea, Sheerness, ME12 | £ 85,000 | BUY | 6 / 10 | 0.30 KM |
| Sheppey Beach Villas, Manor Way, Leysdown-on-Sea, Sheerness, ME12 | £ 85,000 | BUY | 5 / 10 | 0.34 KM |
Nearby Properties
| Address | Price | Distance |
|---|---|---|
| 2 Eastern Road | £ 85,000 | 0.15 KM |
| 1 Eastern Road | £ 150,000 | 0.16 KM |
| Cartref | £ 165,000 | 0.16 KM |
| 4 Eastern Road | £ 84,000 | 0.16 KM |
| 25 Leysdown Road | £ 200,000 | 0.27 KM |