Breakey & Co says ..
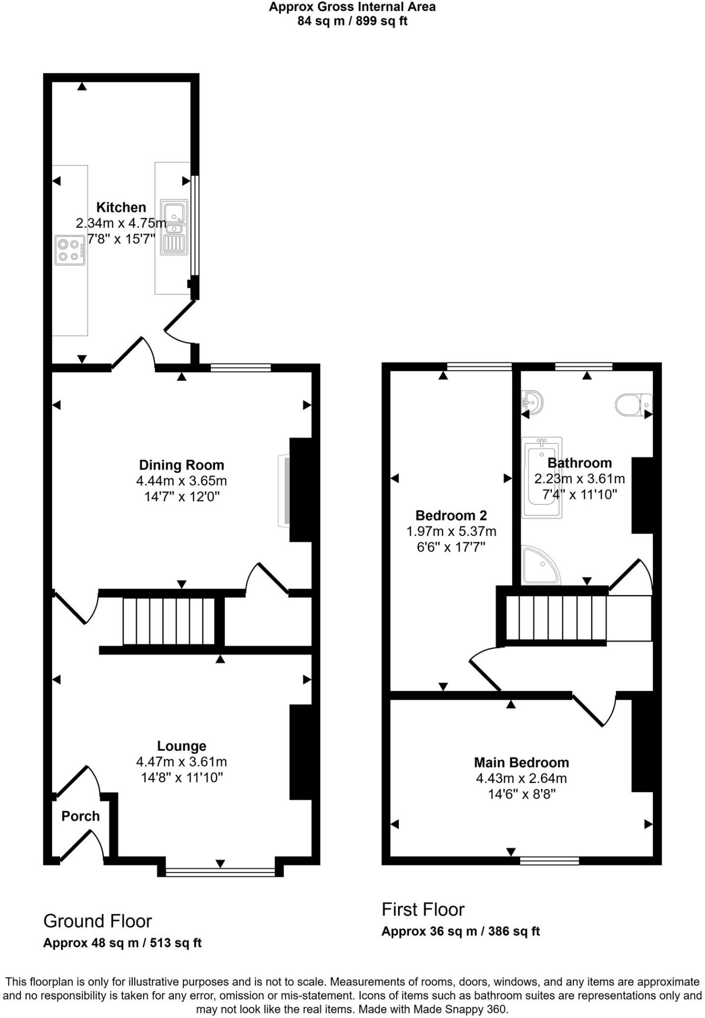
Well-presented 2-bed terraced home in Springfield cul-de-sac. Spacious lounge, dining room, kitchen, low-maintenance yard, 4-piece bathroom. Near schools, parks, shops, and canal walks.
Property Oracle says ..
This is a two-bedroom terraced house located on Kimberley Street in Wigan. The property is listed with Breakey & Co. The house offers 793.89 sqft of living space. The property benefits from its proximity to local schools and transportation links. The interior appears to be in good condition, with a modern kitchen and bathroom. The property includes a small, low-maintenance rear garden/yard. The asking price of £140,000 seems reasonable when compared to the average price per square foot in the area.
Therefore, we give this property 6 / 10. *Disclaimer: This is our option and does constitute a recommendation or financial advice. Do your own research. *
- Price
- 8
- Condition
- 7
- Location
- 7
- Land
- 5
- Bedrooms
- 2
- Bathrooms
- 1
- Sqft (est)
- 793.89
The heatmap indicates the level of crime in the area. The color of the heatmap indicates the crime severity and recency.
Metrics Year-on-Year
- Average area value
- 177,800.00 £Increased by 0.95 %
- Est sale value
- 168,304.68 £Increased by 23.98 %
- Average area rental value
- 902.00 £/moIncreased by 19.47 %
- Est letting value
- 793.89 £/mo
- Est rental Yield
- 6.09 %Increased by 18.48 %
- Crime Rate
- 2.00 %Unchanged by 0.00 %
Agent Activity
Breakey & Co created the listing.
Nearby Schools
| Name | Type | Ofsted | Distance |
|---|---|---|---|
| Wigan St Andrew'S Cofe Junior And Infant School | Voluntary Aided School | Good | 0.40 KM |
| Sacred Heart Catholic Primary School | Voluntary Aided School | Good | 0.70 KM |
| Beech Hill & Sacred Heart Children'S Centre | Children's Centre Linked Site | 0.81 KM | |
| Beech Hill Community Primary School | Community School | Good | 0.83 KM |
| St John Fisher Catholic High School | Voluntary Aided School | Good | 0.83 KM |
Images
Nearby Streets
| Name | Average Price | Average Sqft | Distance |
|---|---|---|---|
| Waterloo Street | £ 0 | 0 | 0.00 KM |
| Pagefield Close | £ 0 | 0 | 0.00 KM |
| Railway Street | £ 0 | 0 | 0.00 KM |
| Beresford Street | £ 150,000 | 0 | 0.00 KM |
| Saint Andrew's Drive | £ 235,000 | 0 | 0.00 KM |
Nearby Transport
| Name | NLC | TLC | Distance |
|---|---|---|---|
| Wigan Wallgate | 2406 | WGW | 1.74 KM |
| Wigan North Western | 2363 | WGN | 1.80 KM |
| Pemberton | 2403 | PEM | 3.60 KM |
| Ince (Manchester) | 2236 | INC | 4.19 KM |
| Gathurst | 2397 | GST | 5.32 KM |
Nearby Listings
| Address | Price | Type | Score | Distance |
|---|---|---|---|---|
| Kimberley Street, Wigan, WN6 | £ 140,000 | BUY | 6 / 10 | 0.00 KM |
| Kimberley Street, Wigan, WN6 | £ 130,000 | BUY | 6 / 10 | 0.03 KM |
| Kimberley Street, Wigan, WN6 | £ 130,000 | BUY | 6 / 10 | 0.05 KM |
| Park Road, Wigan | £ 169,950 | BUY | 7 / 10 | 0.08 KM |
| Stratford Street, Wigan, WN6 | £ 140,000 | BUY | 5 / 10 | 0.09 KM |
Nearby Properties
| Address | Price | Distance |
|---|---|---|
| 32 Kimberley Street | £ 166,000 | 0.04 KM |
| 11 Kimberley Street | £ 140,000 | 0.04 KM |
| 27 Kimberley Street | £ 22,000 | 0.04 KM |
| 21 Kimberley Street | £ 130,000 | 0.04 KM |
| 5 Kimberley Street | £ 70,000 | 0.04 KM |