Ashtons Estate Agency says ..
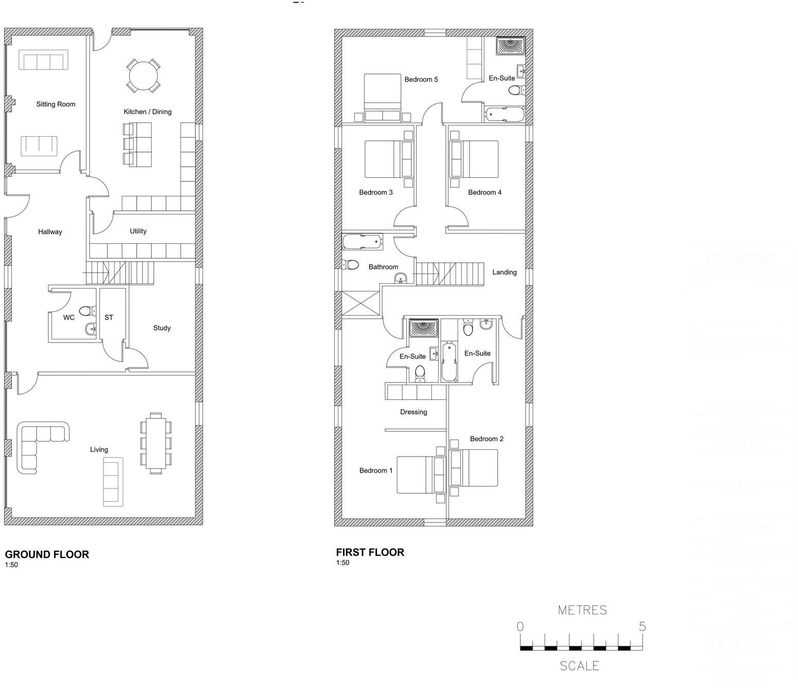
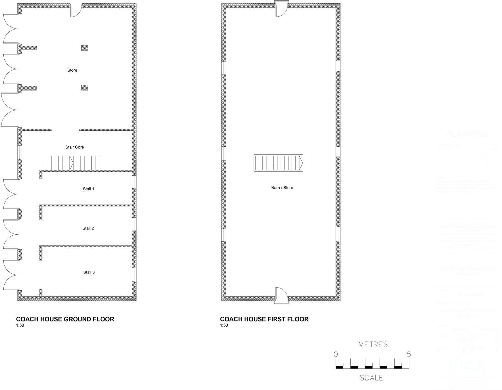
Rare opportunity to convert a detached coach house within the grounds of the historic Moore Hall estate. Planning permission granted for the conversion of this spacious 5-bed house. With a tranquil setting overlooking Bridgewater canal and a plot of over an acre it also has convenient access to m...
Property Oracle says ..
This property is a barn conversion located in Moore, Cheshire, with a list price of £779,000. It boasts 5 bedrooms and 4 bathrooms across 1,291.67 sqft. The plot size is not specified. The property appears to be a modern conversion of what was likely an older barn. The conversion seems high quality and well-maintained, based on the provided images. The surrounding land is extensive, including a large grassy area and mature trees, offering a tranquil and private setting. The property’s proximity to a canal adds to its appeal. The average house price in the area is £222,105, significantly lower than the list price of this property. However, this average is likely skewed by smaller properties, and the list price reflects the unique nature of a barn conversion, its size, features, and the substantial land surrounding it. The average price per sqft in the area is £240, while this property’s price per sqft is higher, reflecting the premium associated with its unique features and location. The nearby properties, while varying in price, suggest that £779,000 is within the range of prices for larger, more unique properties in the area. The proximity to several train stations and schools adds to the desirability and likely justifies the higher price point. Given the apparent high-quality conversion, substantial land, and desirable location, the property seems to offer good value, though this is subjective and depends on individual buyer preferences and priorities.
Therefore, we give this property 7 / 10. *Disclaimer: This is our option and does constitute a recommendation or financial advice. Do your own research. *
- Price
- 7
- Condition
- 9
- Location
- 7
- Land
- 8
- Bedrooms
- 5
- Bathrooms
- 4
- Sqft (est)
- 1,291.67
The heatmap indicates the level of crime in the area. The color of the heatmap indicates the crime severity and recency.
Metrics Year-on-Year
- Average area value
- 290,444.00 £Increased by 45.57 %
- Est sale value
- 426,251.10 £Increased by 74.60 %
- Average area rental value
- 1,060.00 £/moIncreased by 29.74 %
- Est letting value
- 1,291.67 £/mo
- Est rental Yield
- 4.38 %Decreased by 10.79 %
- Crime Rate
- 7.00 %Unchanged by 0.00 %
Agent Activity
Ashtons Estate Agency created the listing.
Nearby Schools
| Name | Type | Ofsted | Distance |
|---|---|---|---|
| Moore Primary School | Community School | Good | 1.11 KM |
| Daresbury Primary School | Academy Converter | 1.87 KM | |
| Sandymoor Ormiston Academy | Free Schools | 2.98 KM | |
| Evelyn Street Community Primary School | Academy Converter | 3.77 KM | |
| Penketh South Community Primary School | Academy Converter | 3.98 KM |
Images
Nearby Streets
| Name | Average Price | Average Sqft | Distance |
|---|---|---|---|
| Hobb Lane | £ 0 | 0 | 0.00 KM |
| Poplar View | £ 140,000 | 0 | 0.00 KM |
| Conifer Grove | £ 140,000 | 0 | 0.00 KM |
| Hatter's Close | £ 0 | 0 | 0.00 KM |
Nearby Transport
| Name | NLC | TLC | Distance |
|---|---|---|---|
| Warrington West | 6583 | WAW | 4.49 KM |
| Warrington Bank Quay | 2384 | WBQ | 4.67 KM |
| Sankey For Penketh | 2388 | SNK | 4.79 KM |
| Runcorn East | 2294 | RUE | 4.93 KM |
| Warrington Central | 2390 | WAC | 5.84 KM |
Nearby Listings
| Address | Price | Type | Score | Distance |
|---|---|---|---|---|
| Hobb Lane, Moore, WA4 | £ 779,000 | BUY | 7 / 10 | 0.00 KM |
| Hobb Lane, Moore, WA4 | £ 1,750,000 | BUY | 7 / 10 | 0.19 KM |
| Hobb Lane, Moore, WA4 | £ 350,000 | BUY | 6 / 10 | 0.20 KM |
| Runcorn Road, Moore, WA4 | £ 230,000 | BUY | 5 / 10 | 0.24 KM |
| Hobb Lane, Moore, Warrington | £ 400,000 | BUY | 7 / 10 | 0.33 KM |
Nearby Properties
| Address | Price | Distance |
|---|---|---|
| Moore Lodge | £ 1,080,000 | 0.01 KM |
| Hobcroft | £ 357,000 | 0.01 KM |
| The Rookery | £ 405,000 | 0.01 KM |
| Courtyard House | £ 881,641 | 0.02 KM |
| Tawny Cottage | £ 137,500 | 0.02 KM |