St. Marys Road, Doncaster
Horton Knights logo

St. Marys Road, Doncaster

By Horton Knights

£ 225,000

Reviews

3 out of 5 stars

Horton Knights says ..

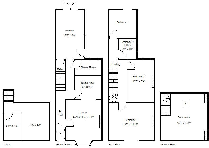
*** GUIDE PRICE £225,000 - £235,000 *** BEAUTIFUL PERIOD STYLE TERRACED HOUSE / SPACIOUS LIVING ACROSS THREE FLOORS / MANY PERIOD FEATURES / LARGE FITTED KITCHEN / GROUND FLOOR SHOWER ROOM / BEAUTIFUL 4 PIECE BATHROOM SUITE / OFF ROAD PARKING / SOUTH-WESTERLY FACING REAR GARDEN / VIEWING RECO...

Property Oracle says ..

The property is located on St. Marys Road in Doncaster, South Yorkshire. Based on the provided images, the property appears to be a well-maintained terraced house. The interior is presented in good order, with modern updates to the bathrooms and kitchen. The property benefits from a garden, although it appears to be somewhat overgrown and in need of some landscaping.

Doncaster is a town with good transport links, including a train station approximately 1.96km away. Several schools are within a reasonable distance, including Hall Cross Academy which has a ‘Good’ Ofsted rating. The proximity to these amenities makes the location reasonably desirable.

The list price of £225,000 seems reasonable when considering comparable properties in the area. While precise square footage data for nearby properties is missing, the provided prices and types of properties on St Marys Road and nearby streets suggest that the list price is competitive. The property’s condition and the presence of a garden further support this assessment. However, the lack of precise square footage data for comparable properties prevents a definitive conclusion on price per square foot.

Therefore, we give this property 7 / 10. *Disclaimer: This is our option and does constitute a recommendation or financial advice. Do your own research. *

Price
7
Condition
8
Location
7
Land
6
Bedrooms
4
Bathrooms
2
Sqft (est)
1,194.07

The heatmap indicates the level of crime in the area. The color of the heatmap indicates the crime severity and recency.

Metrics Year-on-Year

Average area value
371,130.00 £
Increased by 2.62 %
from 361,672.00 £
Est sale value
511,061.96 £
Increased by 32.10 %
from 386,878.68 £
Average area rental value
1,597.00 £/mo
Increased by 9.08 %
from 1,464.00 £/mo
Est letting value
1,194.07 £/mo
Unchanged by 0.00 %
from 1,194.07 £/mo
Est rental Yield
5.16 %
Increased by 6.17 %
from 4.86 %
Crime Rate
5.00 %
Unchanged by 0.00 %
from 5.00 %

Agent Activity

  • Horton Knights created the listing.

Nearby Schools

NameTypeOfstedDistance
Town Field Primary SchoolCommunity SchoolRequires improvement0.48 KM
Wheatley Children'S CentreChildren's Centre0.49 KM
Hall Cross AcademyAcademy ConverterGood0.70 KM
Doncaster UtcUniversity Technical College1.45 KM
Hospital Teaching ServiceMiscellaneous1.59 KM

Images

ACCOMMODATION LOUNGE BATHROOM ENTRANCE HALL ENTRANCE HALL LOUNGE DINING AREA GROUND FLOOR SHOWER ROOM GROUND FLOOR SHOWER ROOM KITCHEN FIRST FLOOR LANDING BEDROOM 1 BEDROOM 2 BEDROOM 4/ OFFICE BATHROOM REAR GARDEN REAR ELEVATION REAR ELEVATION

Nearby Streets

NameAverage PriceAverage SqftDistance
Highfield Road £ 85,00000.00 KM
Town Field Villas £ 210,00000.00 KM
Park Road £ 94,99800.00 KM
Town Fields £ 220,00000.00 KM
King Street £ 000.00 KM

Nearby Transport

NameNLCTLCDistance
Doncaster6417DON1.96 KM
Bentley (South Yorkshire)8352BYK3.46 KM
Kirk Sandall6527KKS6.71 KM
Adwick8353AWK7.92 KM

Nearby Listings

AddressPriceTypeScoreDistance
St Marys Road, Doncaster, DN1 £ 385,000BUY6 / 100.02 KM
Baxter Avenue, Doncaster £ 190,000BUY5 / 100.07 KM
Baxter Avenue, Doncaster, South Yorkshire, DN1 £ 110,000BUYUnknown0.11 KM
Baxter Avenue, Wheatley, Doncaster, DN1 £ 100,000BUY5 / 100.12 KM
Baxter Avenue, Doncaster £ 50,000BUYUnknown0.13 KM

Nearby Properties

AddressPriceDistance
13 St Marys Road £ 175,0000.05 KM
29 St Marys Road £ 99,9500.05 KM
49 St Marys Road £ 119,9500.05 KM
47 St Marys Road £ 247,0000.05 KM
70 Baxter Avenue £ 16,5000.09 KM