CL
116 Red Burn Wynd, Helensburgh, G84 7EH
By Clyde Property
£ 240,000
Reviews
3 out of 5 stars
Clyde Property says ..
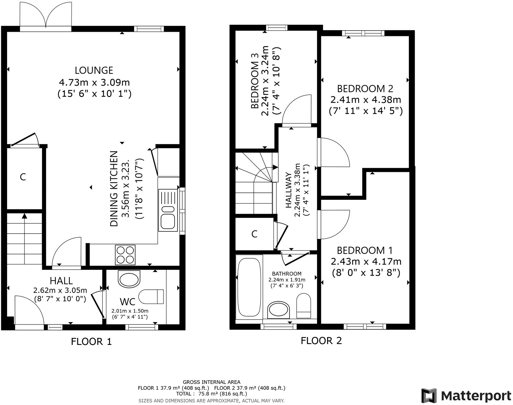
Located in the ever popular Alder Gate development which was recently completed by Bellway Homes, this beautiful, modern and stylish end terrace villa enjoys a quiet position within the development.
Property Oracle says ..
Therefore, we give this property 7 / 10. *Disclaimer: This is our option and does constitute a recommendation or financial advice. Do your own research. *
- Price
- 8
- Condition
- 9
- Location
- 7
- Land
- 7
- Bedrooms
- 3
- Bathrooms
- 2
- Sqft (est)
- 827.85
The heatmap indicates the level of crime in the area. The color of the heatmap indicates the crime severity and recency.
Metrics Year-on-Year
- Average area value
- 283,333.00 £Decreased by 37.45 %
- Est sale value
- 274,846.20 £Increased by 2.15 %
- Average area rental value
- 1,195.00 £/moDecreased by 32.68 %
- Est letting value
- 827.85 £/moUnchanged by 0.00 %
- Est rental Yield
- 5.06 %Increased by 7.66 %
- Crime Rate
- 0.00 %
from 452,952.00 £
from 269,051.25 £
from 1,775.00 £/mo
from 827.85 £/mo
from 4.70 %
from 0.00 %
Agent Activity
Clyde Property created the listing.
Images
Nearby Streets
| Name | Average Price | Average Sqft | Distance |
|---|---|---|---|
| Camis Eskan Wynd | £ 0 | 0 | 0.00 KM |
| Red Burn Wynd | £ 0 | 0 | 0.00 KM |
| Waverley Avenue | £ 0 | 0 | 0.00 KM |
| Old Barn Cottage | £ 0 | 0 | 0.00 KM |
| Marmion Avenue | £ 185,000 | 0 | 0.00 KM |
Nearby Transport
| Name | NLC | TLC | Distance |
|---|---|---|---|
| Craigendoran | 9970 | CGD | 1.55 KM |
| Helensburgh Central | 9981 | HLC | 4.09 KM |
| Helensburgh Upper | 9982 | HLU | 4.13 KM |
| Cardross | 9969 | CDR | 6.15 KM |
| Bogston | 9668 | BGS | 6.53 KM |
Nearby Listings
| Address | Price | Type | Score | Distance |
|---|---|---|---|---|
| 116 Red Burn Wynd, Helensburgh, G84 7EH | £ 240,000 | BUY | 7 / 10 | 0.00 KM |
| 8 Red Burn Wynd, Helensburgh, G84 7EH | £ 275,000 | BUY | Unknown | 0.12 KM |
| 77 Red Burn Wynd, Helensburgh, G84 7EG | £ 330,000 | BUY | 7 / 10 | 0.13 KM |
| Red Burn Wynd, Helensburgh, G84 | £ 465,000 | BUY | 7 / 10 | 0.31 KM |
| Camis Eskan Farm, Helensburgh, G84 | £ 555,000 | BUY | 7 / 10 | 0.48 KM |