Trevor Drive, Allington, Maidstone ME16
By Hatch Batten Estates
£ 375,000
Reviews
3 out of 5 stars
Hatch Batten Estates says ..
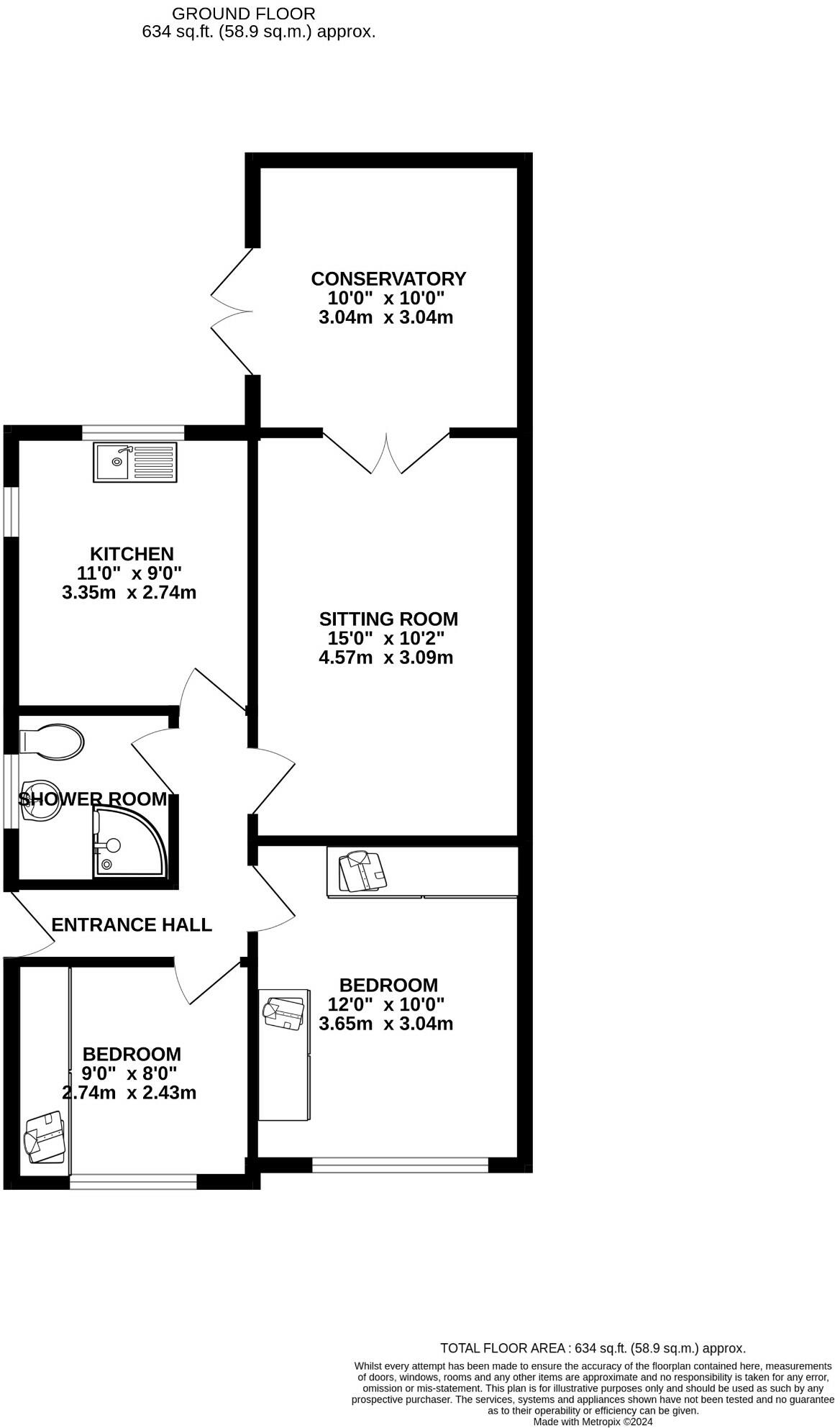
WELL PRESENTED SEMI-DETACHED BUNGALOW.TWO BEDROOMS.MODERN KITCHEN AND BATHROOM.LIVING ROOM AND CONSERVATORY.DRIVEWAY. GARAGE AND GARDENS.NO FORWARD CHAIN.
Property Oracle says ..
This two-bedroom semi-detached bungalow in Allington, Maidstone, is presented in good condition. The property boasts a modern kitchen and bathroom, suggesting recent updates and renovations. The interior is clean and appears well-maintained. Images reveal a decent-sized garden with a decked patio area, providing additional outdoor space. The property is located within reasonable proximity to primary schools (a key factor for families) and various Southeastern train stations, improving commutability. Whilst the exact plot size is unavailable, and the lack of details of energy efficiency and other specifics, the asking price of £375,000 appears competitive given the presented details and nearby property valuations. Potential buyers should factor in their own assessments of the condition, plot size, and other factors relevant to their personal needs before making a decision. The lack of precise plot size information limits the overall evaluation.
Therefore, we give this property 6 / 10. *Disclaimer: This is our option and does constitute a recommendation or financial advice. Do your own research. *
- Price
- 7
- Condition
- 7
- Location
- 7
- Land
- 6
- Bedrooms
- 2
- Bathrooms
- 1
- Sqft (est)
- 633.99
The heatmap indicates the level of crime in the area. The color of the heatmap indicates the crime severity and recency.
Metrics Year-on-Year
- Average area value
- 444,370.00 £Decreased by 0.41 %
- Est sale value
- 346,792.53 £Increased by 35.06 %
- Average area rental value
- 1,706.00 £/moIncreased by 21.86 %
- Est letting value
- 1,267.98 £/moIncreased by 100.00 %
- Est rental Yield
- 4.61 %Increased by 22.61 %
- Crime Rate
- 2.00 %Unchanged by 0.00 %
Agent Activity
Hatch Batten Estates marked this listing as sold.
Hatch Batten Estates created the listing.
Nearby Schools
| Name | Type | Ofsted | Distance |
|---|---|---|---|
| Palace Wood Primary School | Community School | Good | 0.50 KM |
| Allington Primary School | Academy Converter | 0.84 KM | |
| St Francis' Catholic Primary School, Maidstone | Voluntary Aided School | Good | 0.92 KM |
| St Simon Stock Catholic School | Academy Converter | Good | 1.06 KM |
| West Borough Children'S Centre | Children's Centre | 1.31 KM |
Images
Nearby Streets
| Name | Average Price | Average Sqft | Distance |
|---|---|---|---|
| Cornfield Way | £ 0 | 0 | 0.00 KM |
| Conference Way | £ 350,000 | 0 | 0.00 KM |
| The Russets | £ 500,000 | 0 | 0.00 KM |
| Pearwood Road | £ 350,000 | 0 | 0.00 KM |
| Espalier Road | £ 395,000 | 0 | 0.00 KM |
Nearby Transport
| Name | NLC | TLC | Distance |
|---|---|---|---|
| Barming | 5133 | BMG | 1.45 KM |
| Maidstone Barracks | 5237 | MDB | 2.53 KM |
| East Farleigh | 5234 | EFL | 2.93 KM |
| Maidstone West | 5222 | MDW | 2.93 KM |
| Maidstone East | 5115 | MDE | 3.33 KM |
Nearby Listings
| Address | Price | Type | Score | Distance |
|---|---|---|---|---|
| Trevor Drive, Allington, Maidstone, Kent | £ 350,000 | BUY | 7 / 10 | 0.05 KM |
| Howard Drive, Allington, Maidstone ME16 | £ 425,000 | BUY | 7 / 10 | 0.11 KM |
| Howard Drive, Allington, Maidstone ME16 | £ 350,000 | BUY | Unknown | 0.11 KM |
| Leonard Close, Maidstone | £ 425,000 | BUY | 6 / 10 | 0.13 KM |
| Leonard Close, Allington, Maidstone ME16 | £ 375,000 | BUY | 6 / 10 | 0.13 KM |
Nearby Properties
| Address | Price | Distance |
|---|---|---|
| 80 Trevor Drive | £ 280,000 | 0.00 KM |
| 108 Trevor Drive | £ 310,000 | 0.00 KM |
| 88 Trevor Drive | £ 270,000 | 0.00 KM |
| 100 Trevor Drive | £ 170,000 | 0.00 KM |
| 86 Trevor Drive | £ 380,000 | 0.00 KM |