Pearsons says ..
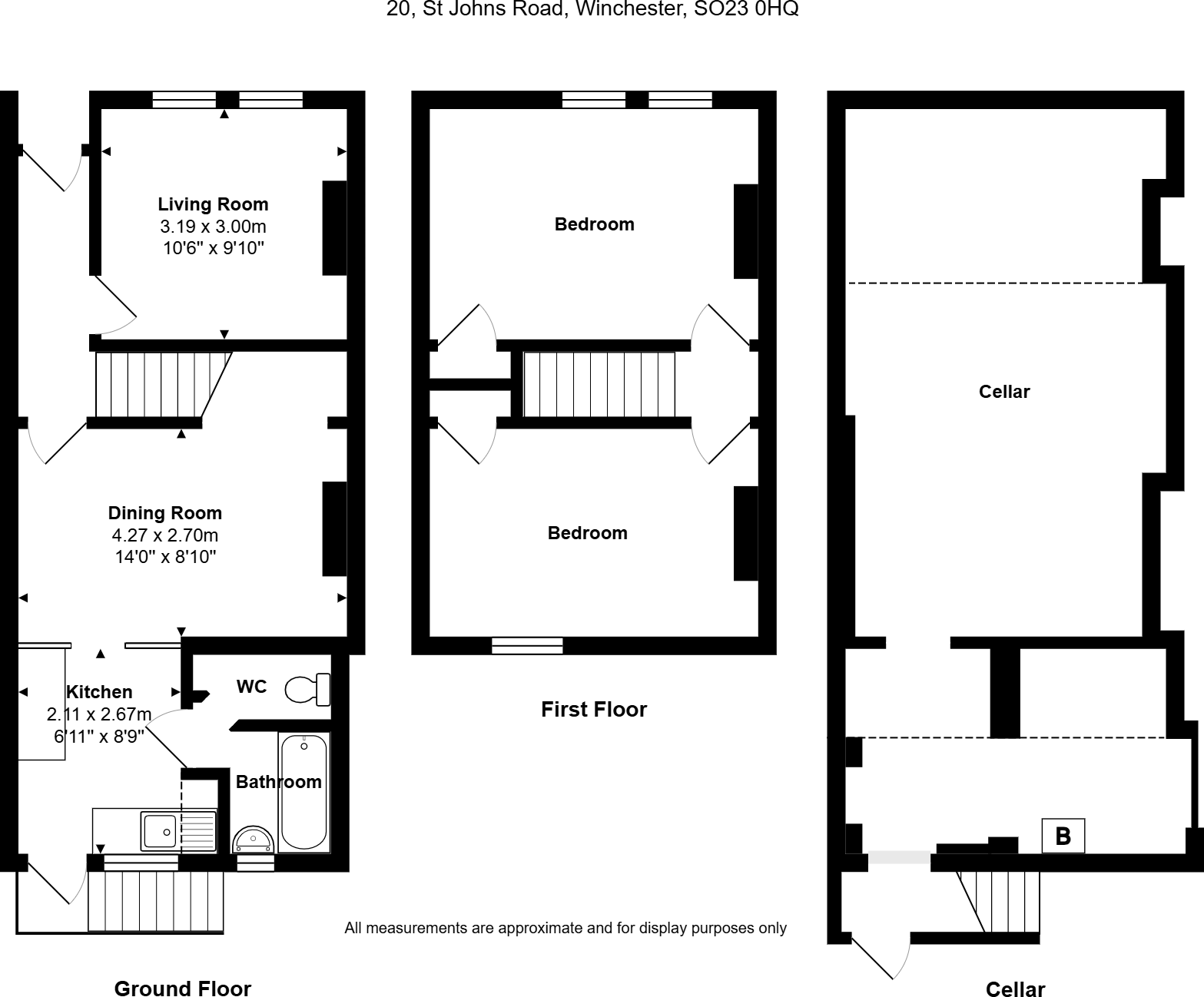
A period mid-terrace house, within walking distance of the city centre. Offering two bedrooms, two reception rooms, large cellar space and a garden of over 100 feet. There is excellent precedent on the road for extension and loft conversion (subject to relevant permissions).
Property Oracle says ..
Therefore, we give this property 5 / 10. *Disclaimer: This is our option and does constitute a recommendation or financial advice. Do your own research. *
- Price
- 3
- Condition
- 4
- Location
- 8
- Land
- 7
- Bedrooms
- 2
- Bathrooms
- 1
- Sqft (est)
- 287.72
The heatmap indicates the level of crime in the area. The color of the heatmap indicates the crime severity and recency.
Metrics Year-on-Year
- Average area value
- 439,167.00 £Decreased by 17.83 %
- Est sale value
- 111,347.64 £Decreased by 24.41 %
- Average area rental value
- 1,143.00 £/moDecreased by 14.64 %
- Est letting value
- 287.72 £/moUnchanged by 0.00 %
- Est rental Yield
- 3.12 %Increased by 3.65 %
- Crime Rate
- 9.00 %Unchanged by 0.00 %
from 534,492.00 £
from 147,312.64 £
from 1,339.00 £/mo
from 287.72 £/mo
from 3.01 %
from 9.00 %
Agent Activity
Pearsons created the listing.
Nearby Schools
| Name | Type | Ofsted | Distance |
|---|---|---|---|
| Winnall Primary School | Community School | Good | 0.37 KM |
| Sparklers And The Carroll Children'S Centre | Children's Centre | 0.42 KM | |
| All Saints Church Of England Primary School | Voluntary Controlled School | Good | 0.64 KM |
| St Bede Church Of England Primary School | Voluntary Controlled School | Outstanding | 0.88 KM |
| Winchester College | Other Independent School | 1.14 KM |
Images
Nearby Streets
| Name | Average Price | Average Sqft | Distance |
|---|---|---|---|
| Alresford Road | £ 775,000 | 0 | 0.00 KM |
| Durngate Terrace | £ 635,000 | 0 | 0.00 KM |
| Saint John's Almhouses | £ 0 | 0 | 0.00 KM |
| Cossack Lane | £ 0 | 0 | 0.00 KM |
| Saint Georges Street | £ 0 | 0 | 0.00 KM |
Nearby Transport
| Name | NLC | TLC | Distance |
|---|---|---|---|
| Winchester | 5924 | WIN | 1.81 KM |
| Shawford | 5929 | SHW | 5.32 KM |
Nearby Listings
| Address | Price | Type | Score | Distance |
|---|---|---|---|---|
| St. John's Street, Winchester | £ 435,000 | BUY | 5 / 10 | 0.00 KM |
| Winchester | £ 525,000 | BUY | Unknown | 0.02 KM |
| St. Johns Road, Winchester, Hampshire, SO23 | £ 500,000 | BUY | 7 / 10 | 0.03 KM |
| Winchester | £ 500,000 | BUY | 7 / 10 | 0.03 KM |
| St Johns Road, Winchester, Hampshire, SO23 | £ 525,000 | BUY | 6 / 10 | 0.04 KM |
Nearby Properties
| Address | Price | Distance |
|---|---|---|
| 33 St Johns Road | £ 124,000 | 0.01 KM |
| 19 St Johns Road | £ 490,000 | 0.01 KM |
| 43 St Johns Road | £ 527,500 | 0.01 KM |
| 22 St Johns Road | £ 250,000 | 0.01 KM |
| 42 St Johns Road | £ 265,000 | 0.01 KM |