Sherwood House, 70 New North Road
By Martin & Co
£ 85,000
Reviews
3 out of 5 stars
Martin & Co says ..
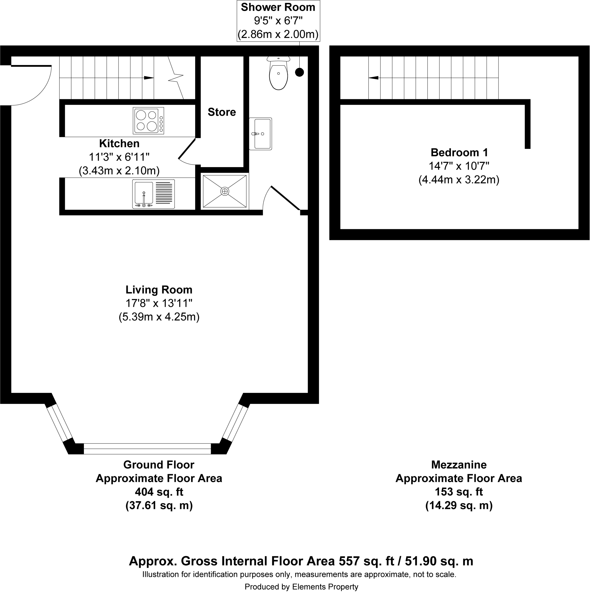
Martin and Co are pleased to offer for sale this delightful ground floor flat located within this beautiful listed building close to Huddersfield town centre. Boasting vacant possession and no vendor chain involved. Comp: Communal Hall, Hall, Kitchen, Lounge, Shower Room, Mezzanine Bedroom Area,...
Property Oracle says ..
The property is located in Greenhead, Kirklees, West Yorkshire. The area benefits from relatively close proximity to several primary and secondary schools, including the outstanding-rated Birkby Infant And Nursery School and Greenhead College. Transport links appear good, with Huddersfield train station less than a kilometre away, offering connections via TransPennine Express and Northern Trains. Based on the provided images, the property appears to be a well-maintained apartment within a larger period property. The interior shows a modern, updated kitchen and bathroom, and the property benefits from high ceilings and period features such as ornate cornicing. While there is some evidence of traditional features, the overall condition suggests the property is in good order and does not require significant renovation. The property includes a small, shared courtyard area. There is no private garden. The list price of £85,000 is significantly below the average price for the area (£205,361). However, the average price per square foot is not a reliable comparison point due to the lack of square footage information for this property. Considering the property’s location, condition, and lack of private outdoor space, the list price may represent good value, although further information regarding the property’s size would be needed for a more conclusive assessment. The nearby listings show a wide range of prices, reflecting the diverse property types in the area. The lower price of this property compared to the others in the area may be due to its size (which is currently unknown) and the lack of a private garden.
Therefore, we give this property 6 / 10. *Disclaimer: This is our option and does constitute a recommendation or financial advice. Do your own research. *
- Price
- 7
- Condition
- 8
- Location
- 7
- Land
- 3
- Bedrooms
- 1
- Bathrooms
- 1
- Sqft (est)
- 557.00
- Lot (est)
- 404.00
The heatmap indicates the level of crime in the area. The color of the heatmap indicates the crime severity and recency.
Metrics Year-on-Year
- Average area value
- 235,309.00 £Increased by 10.69 %
- Est sale value
- 106,387.00 £Decreased by 6.37 %
- Average area rental value
- 740.00 £/moDecreased by 3.14 %
- Est letting value
- 0.00 £/mo
- Est rental Yield
- 3.77 %Decreased by 12.53 %
- Crime Rate
- 4.00 %Unchanged by 0.00 %
Agent Activity
Martin & Co created the listing.
Nearby Schools
| Name | Type | Ofsted | Distance |
|---|---|---|---|
| Brambles Primary Academy | Free Schools | 0.13 KM | |
| Greenhead College | Further Education | Outstanding | 0.50 KM |
| Es Independent School Kirklees | Other Independent School | 0.51 KM | |
| Birkby Infant And Nursery School | Community School | Outstanding | 0.57 KM |
| Huddersfield Central Children'S Centre | Children's Centre Linked Site | 0.74 KM |
Images
Nearby Streets
| Name | Average Price | Average Sqft | Distance |
|---|---|---|---|
| Back Fitzwilliam Street | £ 0 | 0 | 0.00 KM |
| Dorset Street | £ 0 | 0 | 0.00 KM |
| Back Greenhead Road | £ 0 | 0 | 0.00 KM |
| Clare Hill | £ 0 | 0 | 0.00 KM |
| Lee Head | £ 0 | 0 | 0.00 KM |
Nearby Transport
| Name | NLC | TLC | Distance |
|---|---|---|---|
| Huddersfield | 8437 | HUD | 0.89 KM |
| Lockwood | 8443 | LCK | 2.07 KM |
| Berry Brow | 8431 | BBW | 3.37 KM |
| Deighton | 8441 | DHN | 4.86 KM |
| Honley | 8436 | HOY | 4.95 KM |
Nearby Listings
| Address | Price | Type | Score | Distance |
|---|---|---|---|---|
| Sherwood House, 70 New North Road | £ 85,000 | BUY | 6 / 10 | 0.00 KM |
| Highfields Road, HUDDERSFIELD | £ 120,000 | BUY | 6 / 10 | 0.07 KM |
| Highfields Road, HUDDERSFIELD | £ 125,000 | BUY | 6 / 10 | 0.07 KM |
| New North Road, Huddersfield, HD1 | £ 375,000 | BUY | 6 / 10 | 0.07 KM |
| Highfields Court, Highfield Road, Huddersfield | £ 99,950 | BUY | 5 / 10 | 0.07 KM |
Nearby Properties
| Address | Price | Distance |
|---|---|---|
| 82a New North Road | £ 455,000 | 0.09 KM |
| 2 Norfolk Close | £ 323,000 | 0.09 KM |
| 3 Norfolk Close | £ 485,000 | 0.09 KM |
| 4 Norfolk Close | £ 378,000 | 0.09 KM |
| 84 New North Road | £ 495,000 | 0.11 KM |