Modern Move says ..
4/5 Bedrooms - 2/3 Reception rooms - Versatile accommodation - Good sized level garden - Garage - Driveway parking - Wood burning stove - Quiet location - Gas central heating - EPC D
Property Oracle says ..
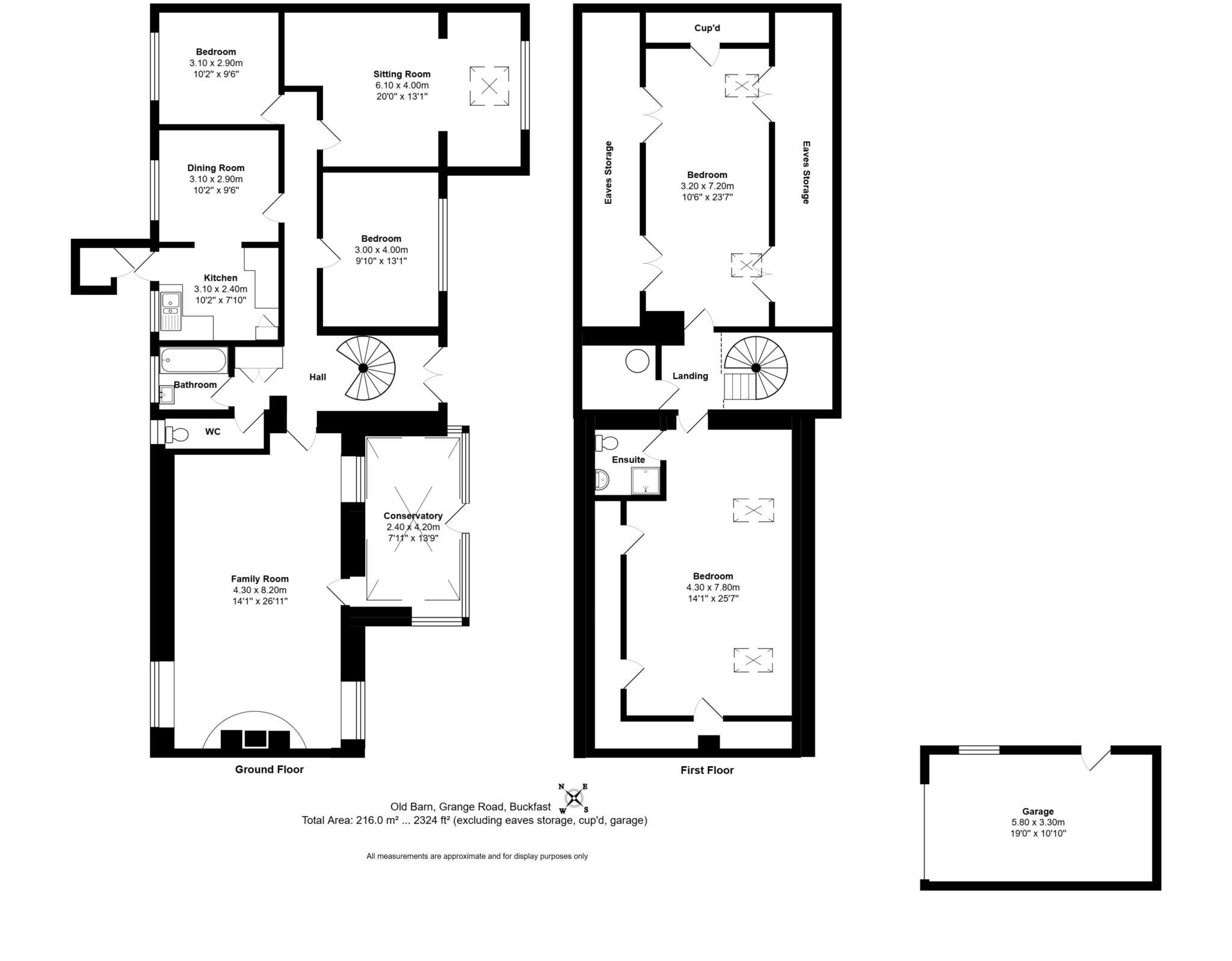
This is a four-bedroom semi-detached property located in Buckfast, Devon. The property offers spacious accommodation with two bathrooms and a large garden. While the property is generally in good order, some areas would benefit from modernisation. The property includes a garage. The location is convenient for local schools and amenities. Overall, this property presents a good opportunity for families looking for a spacious home in a desirable location.
Therefore, we give this property 7 / 10. *Disclaimer: This is our option and does constitute a recommendation or financial advice. Do your own research. *
- Price
- 7
- Condition
- 6
- Location
- 7
- Land
- 8
- Bedrooms
- 4
- Bathrooms
- 2
- Sqft (est)
- 2,325.00
The heatmap indicates the level of crime in the area. The color of the heatmap indicates the crime severity and recency.
Metrics Year-on-Year
- Average area value
- 347,013.00 £Decreased by 8.81 %
- Est sale value
- 655,650.00 £Increased by 12.35 %
- Average area rental value
- 940.00 £/moIncreased by 0.53 %
- Est letting value
- 0.00 £/mo
- Est rental Yield
- 3.25 %Increased by 10.17 %
- Crime Rate
- 0.00 %
Agent Activity
Modern Move created the listing.
Nearby Schools
| Name | Type | Ofsted | Distance |
|---|---|---|---|
| St Mary'S Catholic Primary School, Buckfast | Academy Converter | Good | 0.48 KM |
| Buckfastleigh Primary School | Academy Converter | Requires improvement | 1.30 KM |
| Abc Ashburton And Buckfastleigh Children'S Centre | Children's Centre | 1.36 KM | |
| Ashburton Primary School | Academy Converter | Good | 4.03 KM |
| Sands School | Other Independent School | 4.03 KM |
Images
Nearby Streets
| Name | Average Price | Average Sqft | Distance |
|---|---|---|---|
| Oaklands Close | £ 0 | 0 | 0.00 KM |
| Stormsdown Cottages | £ 0 | 0 | 0.00 KM |
| New Road | £ 0 | 0 | 0.00 KM |
| Pioneer Terrace | £ 350,000 | 0 | 0.00 KM |
| Stroud Road | £ 0 | 0 | 0.00 KM |
Nearby Listings
| Address | Price | Type | Score | Distance |
|---|---|---|---|---|
| Grange Road, Buckfast | £ 495,000 | BUY | 7 / 10 | 0.00 KM |
| Abbey Grange Close, Buckfast | £ 475,000 | BUY | 6 / 10 | 0.06 KM |
| Abbey Grange Close, Buckfast | £ 435,000 | BUY | 5 / 10 | 0.07 KM |
| Buckfast, Devon | £ 460,000 | BUY | 6 / 10 | 0.10 KM |
| St Bernards Close, Buckfast | £ 400,000 | BUY | 6 / 10 | 0.15 KM |
Nearby Properties
| Address | Price | Distance |
|---|---|---|
| 8 St Bernards Close | £ 295,000 | 0.12 KM |
| 7 St Bernards Close | £ 354,000 | 0.12 KM |
| 1 St Bernards Close | £ 250,000 | 0.12 KM |
| 12 St Bernards Close | £ 310,000 | 0.12 KM |
| 4 St Bernards Close | £ 345,000 | 0.12 KM |