Lydcott, Washington, Tyne and Wear, NE38
By EweMove
£ 320,000
Reviews
3 out of 5 stars
EweMove says ..
EweMove is thrilled to present this spacious and beautifully maintained four-bedroom detached home, perfectly situated in the highly desirable and family-friendly neighborhood of Teal Farm.
Property Oracle says ..
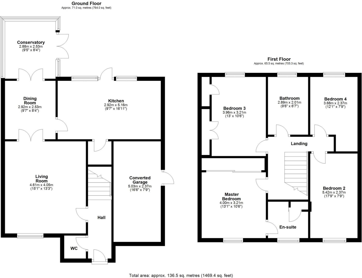
This is a well-presented, four-bedroom detached house in Washington, Tyne and Wear. The property benefits from a good-sized garden, a garage, and a conservatory. The interior is well-maintained and the property appears to be in good condition. The property is located close to local schools and amenities, and is within easy reach of transport links. The property is listed for £320,000, which is reasonable for a property of this size and condition in this location.
Therefore, we give this property 7 / 10. *Disclaimer: This is our option and does constitute a recommendation or financial advice. Do your own research. *
- Price
- 7
- Condition
- 8
- Location
- 7
- Land
- 7
- Bedrooms
- 4
- Bathrooms
- 2
- Sqft (est)
- 1,469.27
The heatmap indicates the level of crime in the area. The color of the heatmap indicates the crime severity and recency.
Metrics Year-on-Year
- Average area value
- 216,545.00 £Decreased by 10.40 %
- Est sale value
- 301,200.35 £Decreased by 18.00 %
- Average area rental value
- 725.00 £/moDecreased by 14.10 %
- Est letting value
- 0.00 £/mo
- Est rental Yield
- 4.02 %Decreased by 4.06 %
- Crime Rate
- 24.00 %Unchanged by 0.00 %
Agent Activity
EweMove created the listing.
Nearby Schools
| Name | Type | Ofsted | Distance |
|---|---|---|---|
| Barmston Village Primary School | Community School | Good | 1.67 KM |
| Columbia Grange School | Community Special School | Outstanding | 1.92 KM |
| John F Kennedy Primary School | Academy Converter | Good | 2.15 KM |
| New Penshaw Academy | Academy Sponsor Led | Good | 2.34 KM |
| Marlborough Primary School | Community School | Good | 2.49 KM |
Images
Nearby Streets
| Name | Average Price | Average Sqft | Distance |
|---|---|---|---|
| William Foster Close | £ 0 | 0 | 0.00 KM |
| Appleby Close | £ 275,000 | 0 | 0.00 KM |
| Hugh Street | £ 0 | 0 | 0.00 KM |
Nearby Transport
| Name | NLC | TLC | Distance |
|---|---|---|---|
| Heworth | 7766 | HEW | 9.14 KM |
Nearby Listings
| Address | Price | Type | Score | Distance |
|---|---|---|---|---|
| Lydcott, Washington, Tyne and Wear, NE38 | £ 320,000 | BUY | 7 / 10 | 0.00 KM |
| Lydcott, Washington, Tyne and Wear, NE38 | £ 375,000 | BUY | 6 / 10 | 0.03 KM |
| Lydcott, Teal Farm, Washington, NE38 | £ 325,000 | BUY | 7 / 10 | 0.07 KM |
| Burghley Close, Washington | £ 125,000 | BUY | Unknown | 0.17 KM |
| Otterington, Teal farm, Washington, Tyne and Wear, NE38 8TE | £ 200,000 | BUY | 7 / 10 | 0.25 KM |
Nearby Properties
| Address | Price | Distance |
|---|---|---|
| 9 Lydcott | £ 247,500 | 0.03 KM |
| 14 Lydcott | £ 275,000 | 0.03 KM |
| 15 Lydcott | £ 215,000 | 0.03 KM |
| 17 Lydcott | £ 261,000 | 0.03 KM |
| 4 Lydcott | £ 108,000 | 0.03 KM |